這個室內設計充分體現了客戶的需求——一對年輕夫婦,他們重視功能性,不需要奢華。它既穩重,又平衡,某種意義上是簡樸的,但也很優雅。麵積為180平方米的公寓由兩個合並的房間組成。由於承重牆的位置,狹窄的走廊無法避免,因此被用作私人和公共區域的分界點,光線效果和鏡子的使用使空間視覺上得到了擴大。

 

Refresh Architecture & Design,大平層設計,大平層設計案例,俄羅斯,大平層,中性色調

Refresh Architecture & Design,大平層設計,大平層設計案例,俄羅斯,大平層,中性色調

Refresh Architecture & Design,大平層設計,大平層設計案例,俄羅斯,大平層,中性色調

 

這是一個關於現代室內設計與70年代風格元素對話的故事,設計師解釋道。 — 我們對一些曆史細節很感興趣,這些細節在我們的記憶中根深蒂固。因此,在室內設計中出現了餐廳區的玻璃磚、帶有扶手的木腿椅子、浴室中的小尺寸瓷磚和幾何圖案、廚房的金屬立麵以及沒有那個時代典型光澤的牆麵貼麵。單色調的解決方案在空間中通過白色和灰色的質感對比來構建,簡潔地以土黃色作為點綴。精致細膩的呈現方式使室內裝飾變得純淨且具有建築整體感。

 

Refresh Architecture & Design,大平層設計,大平層設計案例,俄羅斯,大平層,中性色調

Refresh Architecture & Design,大平層設計,大平層設計案例,俄羅斯,大平層,中性色調

Refresh Architecture & Design,大平層設計,大平層設計案例,俄羅斯,大平層,中性色調

Refresh Architecture & Design,大平層設計,大平層設計案例,俄羅斯,大平層,中性色調

Refresh Architecture & Design,大平層設計,大平層設計案例,俄羅斯,大平層,中性色調

Refresh Architecture & Design,大平層設計,大平層設計案例,俄羅斯,大平層,中性色調

 

廚房特別引人注目。台麵采用Negresco天然英石,表麵為半啞光天鵝絨質感。緞麵處理賦予其柔和的絲光光澤。金屬麵板與胡桃木飾麵相結合,使整體效果更顯深邃和富有表現力,而折疊式滑動門係統則能創造出清潔區域的效果,隱藏所有工作空間。

 

Refresh Architecture & Design,大平層設計,大平層設計案例,俄羅斯,大平層,中性色調

Refresh Architecture & Design,大平層設計,大平層設計案例,俄羅斯,大平層,中性色調

Refresh Architecture & Design,大平層設計,大平層設計案例,俄羅斯,大平層,中性色調

Refresh Architecture & Design,大平層設計,大平層設計案例,俄羅斯,大平層,中性色調

Refresh Architecture & Design,大平層設計,大平層設計案例,俄羅斯,大平層,中性色調

 

還值得一提的是帶有底部燈光的“懸浮”床。玻璃腿幫助實現了所需的效果。床頭櫃上的內置開關和插座是定製的,由木工工作室製作。為了裝飾窗戶,我們決定不使用普通的百葉窗,而是設計了滑動麵板,這些麵板可以美麗地折射光線,為空間創造特殊的明暗對比,同時,衣帽間區域的美學與整體室內裝飾的氛圍相協調,通過皮革裝飾得到了強調。

 

Refresh Architecture & Design,大平層設計,大平層設計案例,俄羅斯,大平層,中性色調

Refresh Architecture & Design,大平層設計,大平層設計案例,俄羅斯,大平層,中性色調

Refresh Architecture & Design,大平層設計,大平層設計案例,俄羅斯,大平層,中性色調

Refresh Architecture & Design,大平層設計,大平層設計案例,俄羅斯,大平層,中性色調

Refresh Architecture & Design,大平層設計,大平層設計案例,俄羅斯,大平層,中性色調

Refresh Architecture & Design,大平層設計,大平層設計案例,俄羅斯,大平層,中性色調

Refresh Architecture & Design,大平層設計,大平層設計案例,俄羅斯,大平層,中性色調

 

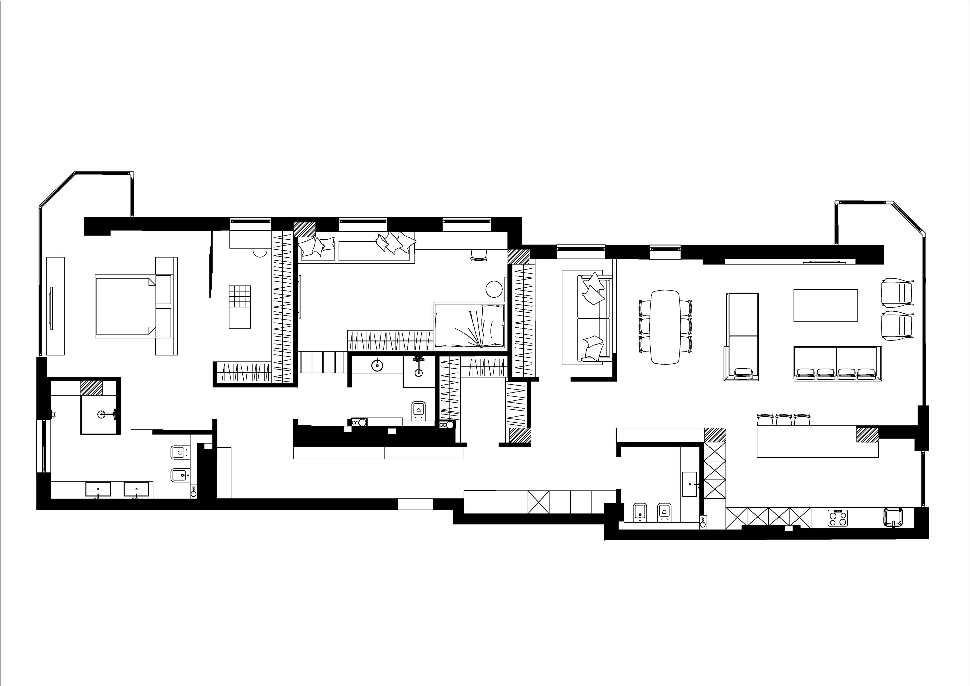
∇ 平麵圖

Refresh Architecture & Design,大平層設計,大平層設計案例,俄羅斯,大平層,中性色調

 

 

高清圖庫下載

百度雲下載

[/rihide]

 

相關文章推薦
  • 共舍空間設計 | 230㎡,廣州珠江新城大平層
  • 陌邸設計/夏末秋初 | 255㎡,蘇州湖景大平層-光的禮讚
  • A&ES | 莫斯科兩套統一又獨立得溫馨中性色公寓
  • Sinitsa Buro | 俄羅斯新庫茲涅茨卡亞Tempus腕表零售店
  • A01 Studio | 64㎡,俄羅斯莫斯科設計師自宅-中性色極簡主義公寓
  • CCD鄭中設計 | 229㎡,西安璽宸上院 – 靜雅時光,柔性美學
  • Ortega Diago | 西班牙極簡主義大平層-安靜與沉思
  • Hubarch Studio | 俄羅斯聖彼得堡Bazilio眼鏡店-光學沙龍
  • EYEN易觀設計事務所 | 220㎡,河北秦皇島香璽海住宅-[海嶼 光輪]
  • 越設計 | 260㎡,福建三明大平層-光隅棲心
  • CCD鄭中設計 | 560㎡,成都金融城8號頂奢大平層
  • 共構空間設計 | 170㎡,廣州大平層-秩序與感性



  • 聲明:本站所有文章,如無特殊說明或標注,均為本站原創發布。任何個人或組織,在未征得本站同意時,禁止複製、盜用、采集、發布本站內容到任何網站、書籍等各類媒體平台。如若本站內容侵犯了原著者的合法權益,可聯係我們進行處理。