Dseesion工作室的設計師設計了位於莫斯科哈莫夫尼基的Roza Rossa豪華住宅中的218.5㎡的頂層公寓。這個為年輕人設計的室內裝飾遵循了建築的法則:所有的空間都組織成具有明確比例的體積序列。保持平衡是至關重要的:室內裝飾不應過於突出或變成概念的展示——它的角色是為生活創造一個舒適的環境。

 

Dseesion,頂層公寓設計,頂層公寓設計案例,俄羅斯,莫斯科,藝術公寓

Dseesion,頂層公寓設計,頂層公寓設計案例,俄羅斯,莫斯科,藝術公寓

 

最初,頂層公寓計劃有三間臥室,但在項目實施過程中,其中一間被改造成台球室,”設計師們說道。“廚房和餐廳被設計成一個統一的建築體積,在這個空間中,島台和餐桌不被視為家具,而是被視為空間的固定元素。它們的沉重感由燈具平衡,這些燈具不僅是光源,也是定義垂直節奏的空間構成的一部分。承重結構——支柱——有機地融入空間,作為玻璃展示櫃,通過這些展示櫃引入陽光。彩色玻璃在一天的不同時間給室內帶來不同的光影效果,賦予其獨特的性格。

 

Dseesion,頂層公寓設計,頂層公寓設計案例,俄羅斯,莫斯科,藝術公寓

Dseesion,頂層公寓設計,頂層公寓設計案例,俄羅斯,莫斯科,藝術公寓

Dseesion,頂層公寓設計,頂層公寓設計案例,俄羅斯,莫斯科,藝術公寓

Dseesion,頂層公寓設計,頂層公寓設計案例,俄羅斯,莫斯科,藝術公寓

 

空間的主要理念是利用天然材料的原始表現力:木材、石材、金屬和玻璃展現自然紋理和自然的不均勻性。木材作為室內設計的基礎,以溫暖和質感柔化幾何形狀,而石材則帶來重量和深度。啞光和反射表麵的結合——玻璃、鏡子、拋光金屬——增強了空間的複雜性,通過反射和折射光線進行遊戲。

 

Dseesion,頂層公寓設計,頂層公寓設計案例,俄羅斯,莫斯科,藝術公寓

Dseesion,頂層公寓設計,頂層公寓設計案例,俄羅斯,莫斯科,藝術公寓

Dseesion,頂層公寓設計,頂層公寓設計案例,俄羅斯,莫斯科,藝術公寓

Dseesion,頂層公寓設計,頂層公寓設計案例,俄羅斯,莫斯科,藝術公寓

Dseesion,頂層公寓設計,頂層公寓設計案例,俄羅斯,莫斯科,藝術公寓

Dseesion,頂層公寓設計,頂層公寓設計案例,俄羅斯,莫斯科,藝術公寓

 

樓梯是項目的關鍵元素之一。它作為一個獨立的雕塑物體,嵌入玻璃體積中。其輕盈感不是通過視覺效果實現的,而是通過精確的工程邏輯和形式的極簡主義來實現的。樓梯成為連接各層的紐帶,同時為整個室內設計賦予了垂直動感。

 

Dseesion,頂層公寓設計,頂層公寓設計案例,俄羅斯,莫斯科,藝術公寓

Dseesion,頂層公寓設計,頂層公寓設計案例,俄羅斯,莫斯科,藝術公寓

Dseesion,頂層公寓設計,頂層公寓設計案例,俄羅斯,莫斯科,藝術公寓

Dseesion,頂層公寓設計,頂層公寓設計案例,俄羅斯,莫斯科,藝術公寓

 

最重要的階段是尋找一位藝術家,其作品將成為室內意義和視覺的核心。這不僅僅是選擇作者的問題,而是形成空間的DNA——一種與客戶個人藝術語言相共鳴,同時又能保持建築意圖完整性的獨特藝術語言。安德烈·貝格成為這樣的作者:他已經在全球範圍內與建築表麵合作了二十多年。在他的項目中,他將景觀視為一個充滿意義、記憶和聯想的空間。

 

Dseesion,頂層公寓設計,頂層公寓設計案例,俄羅斯,莫斯科,藝術公寓

Dseesion,頂層公寓設計,頂層公寓設計案例,俄羅斯,莫斯科,藝術公寓

Dseesion,頂層公寓設計,頂層公寓設計案例,俄羅斯,莫斯科,藝術公寓

Dseesion,頂層公寓設計,頂層公寓設計案例,俄羅斯,莫斯科,藝術公寓

Dseesion,頂層公寓設計,頂層公寓設計案例,俄羅斯,莫斯科,藝術公寓

Dseesion,頂層公寓設計,頂層公寓設計案例,俄羅斯,莫斯科,藝術公寓

 

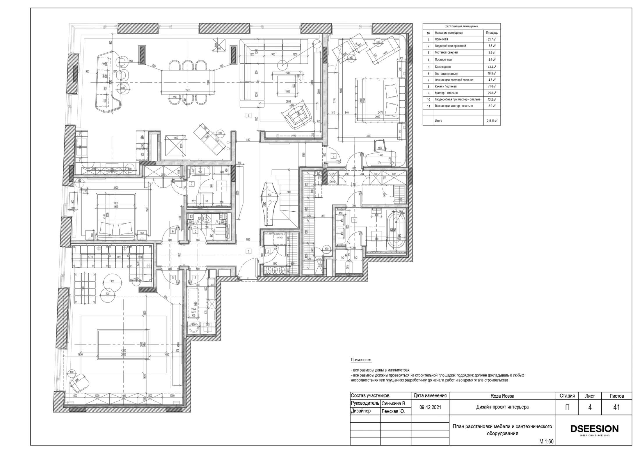
∇ 平麵圖

Dseesion,頂層公寓設計,頂層公寓設計案例,俄羅斯,莫斯科,藝術公寓

 

 

高清圖庫下載

百度雲下載

[/rihide]

 

相關文章推薦
  • Refresh Architecture & Design | 180㎡,俄羅斯利佩茨克兩套打通的大平層公寓
  • A&ES | 莫斯科兩套統一又獨立得溫馨中性色公寓
  • Sinitsa Buro | 俄羅斯新庫茲涅茨卡亞Tempus腕表零售店
  • A01 Studio | 64㎡,俄羅斯莫斯科設計師自宅-中性色極簡主義公寓
  • Yanina Bryukhnova | 152㎡,莫斯科極簡主義Embody女裝零售店
  • Hubarch Studio | 俄羅斯聖彼得堡Bazilio眼鏡店-光學沙龍
  • Sinitsa Buro | 莫斯科內衣品牌Lavarice零售店
  • KIDZ | 莫斯科Studio 29服裝店
  • Workstead | 紐約布魯克林極簡主義頂層複式公寓
  • Sveta Khabeeva Studio|80㎡,莫斯科白色+原木色公寓
  • Tatyana Alenina Design | 侘寂 x 當代藝術,莫斯科鄉村度假別墅
  • Daschamay Interiors|112㎡,莫斯科原木色溫馨公寓



  • 聲明:本站所有文章,如無特殊說明或標注,均為本站原創發布。任何個人或組織,在未征得本站同意時,禁止複製、盜用、采集、發布本站內容到任何網站、書籍等各類媒體平台。如若本站內容侵犯了原著者的合法權益,可聯係我們進行處理。