數字體驗設計工作室 Tectonic 想要一個開放式工作空間,滿足簡單辦公需求的同時也提供娛樂空間 – 實現工作和娛樂的結合。他們租下的辦公室位於西雅圖國會山附近的一棟六層混合建築的四樓。空間不大,占地麵積約305㎡。
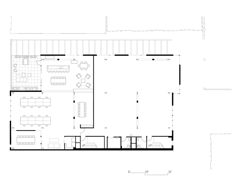
除了工作位之外,辦公室還有兩個會議空間(大型會議實本身也是開放式辦公室的一部分,而另一個會議室則提供私密的選項),辦公室還包含有一個娛樂區,標誌性得從工作位的層麵上抬高出了兩個台階。娛樂區包括一個廚房/酒吧,休閑休息區,還有一張沙發和隨意椅,通往室外露台,俯瞰周邊地區的景色。
Photos © Rafael Soldi.
版權聲明:本站所有文章除投稿授權發布外,其他文字內容均為原創,享有著作權保護,未經許可不得以任何形式進行轉載(包括且不限於:媒體、網站、公眾號等)。所有項目照片/設計圖形版權歸原作者所有。本站部分內容源自網絡公開資源或用戶分享,如若侵犯了原作者的合法權益,可聯係我們進行處理。





















