這棟位於台灣彰化狹長型透天厝,有著35年歲月,久沒人住呈現一片老舊荒蕪狀態,屋主打算重新整理一番,變成爸爸偶爾暫時休憩、孩子回鄉聚會的舒適宅,也或許日後可以成為開放大家居住的民宿,找來 時冶設計 全麵翻修,為老屋帶來新氣象,呈現帶有文青感的簡約舒適樣貌。擁有老舊透天格局慣有通病,空間本身狹窄,樓梯又太過靠近入口,整體顯得過於狹隘壓迫,因此設計師則先改善基礎工程補強漏水、管線維修,為了增加采光,大門牆壁改成玻璃磚,形成穿透效果,中央樓梯扶手也用玻璃取代,將樓梯存在感降至最低,透過材質改變形成前方大門與後方窗戶串連狀態,通風與采光問題也被改善。
基本資料
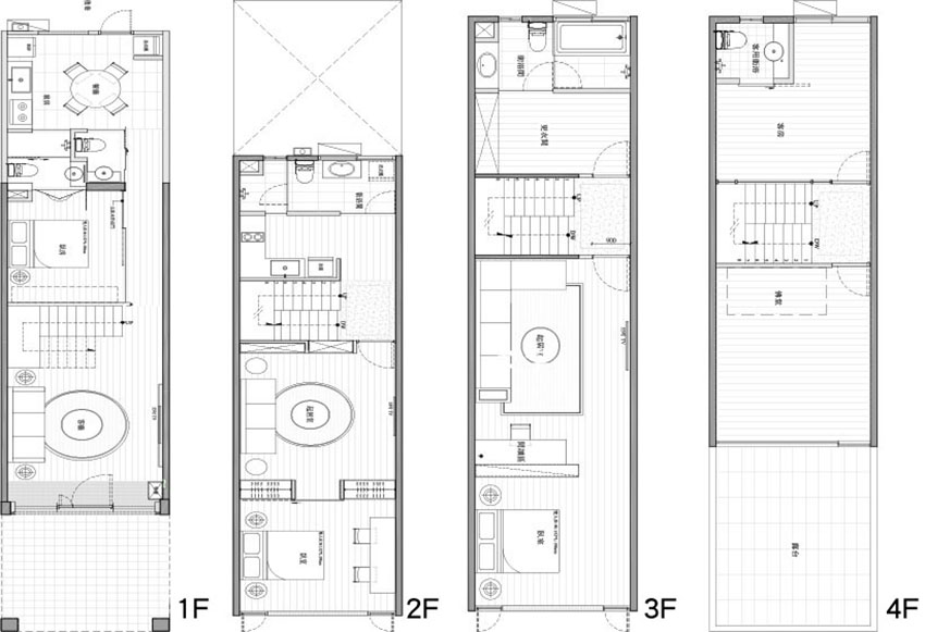
中國台灣彰化/屋齡35年/室內麵積237.6㎡(共4層)/戶型格局5房2廳4衛/居住人數3大
<需求>
很久無人居住,房屋狀況不佳急需改善。
增加采光與通風,讓室內更明亮。
以後有成為民宿的打算。
<各別空間>
1.外觀設計:
保留部分老房子磚牆,拆除舊式鐵窗,重新以玻璃磚搭配黑色大門,呈現簡約舒適氛圍,透過玻璃磚除了能增加內部采光,也可形成保有隱私遮蔽效果。外部騎樓地板則鋪設六角蜂巢磚與花磚,像是地毯一般,卻更好清潔,創造有層次感的視覺體驗。
2.客廳設計:
進入室內,延續外部地麵的花磚設計,少了隔間依舊保有玄關,也可減少灰塵與木地板接觸。拿掉原本鐵製雕花扶手,改以玻璃材質取代,並大量塗刷白色油漆,一改原先陰暗感受,空間本身則為了降低壓迫感,減少家具擺放,偌大空間裏僅有沙發、茶幾與壁麵展示櫃,回歸到幹淨純粹生活質感。
3.餐廚設計:
一樓空間透過超耐磨木地板延伸串連至尾端的餐廳與廚房區域,同樣白色語彙搭配超強透過效果的玻璃磚,可遮蔽掉後方原先臭水溝視覺,考慮不常開啟窗戶,幹脆直接配置成玻璃磚牆。由於廚房坪數占地較小,以現代化簡約感圓桌取代方桌,增加彈性移動靈活運用的可能,若真的人數較多,則可移到客廳用餐。
4.臥室設計:
從一樓到四樓都各自配有 1-2 間不等的臥室,思考到日後可能成為民宿,盡量先設立出房間框架,家具等到日後再來自行配置。位於二樓主臥室,由於姊姊偶爾會帶著孩子入住,因此規劃小客廳親子區,滿足孩子安全活動的條件,以大量木頭材質成為地板與隔間,營造出無印良品風格的質感生活,透過拉門與睡眠區形成界定,創造互不幹擾的使用機能。
5.藝廊設計:
位於三樓的暫時性空間,設計師先定調為小藝廊,簡單白色牆麵塗刷與超耐磨木地板,提供最幹淨的平台,讓擺放其中的畫作自己發聲,加上玻璃磚穿透效果,即便不開燈依舊擁有好采光。
6.陽台設計:
頂樓陽台原先和室內空間以生鏽鐵架區隔,設計師同樣運用玻璃取代,保留兩側欄杆,營造懷舊又舒適的氛圍,同時順利讓陽光入室,創造藍天與綠意共存的好景致!此外在原本荒廢的陽台區域,放置盆栽造景,空間除了曬衣還擁有更多運用可能。
7.浴室設計:
以灰色耐髒的灰泥材質鋪成,同時也呼應空間本身簡約氛圍,采用幹濕分離設計,加裝能放鬆舒適的泡澡浴缸,在一日緊湊的生活後,享受愜意的沐浴時光。
8.收納規劃:
由於基地本身較為狹隘,收納則以各空間櫃體擺放為主,像是廚房一字型櫥櫃與臥室係統櫃,此外再搭配畸零區域的巧妙規劃,譬如說在樓梯下方加設門板收納櫃,即可擺放大量日常生活用品。
9.動線規劃:
四層樓的活動動線依靠中央樓梯貫穿,考慮預算問題,維持原本位置不動,把扶手改為玻璃材質,讓巨大樓梯量體盡量輕盈,原本梯麵的磨石子地板,透過再次拋光打磨繼續沿用,也同時展現傳統建材的特有風貌。
10.建材挑選:
建立在好清潔、容易維護的基礎下,盡量使用一次性材料,包括油漆、係統櫃、超耐磨木地板、玻璃磚、磨石子地板、花磚等,並藉由建材改善空間本身狹隘與壓迫,創造舒適生活。
11.家具配置:
為了讓白色空間不顯無趣,客廳家具選擇色彩鮮明的主題,好比藍色係 L 型沙發與壁麵展示櫃,帶有層次的視覺效果,即便隻有簡單擺放幾樣也不單調,與地麵花磚材質搭配,讓客廳更顯熱鬧。
12.色彩計劃:
老房子本身希望多些采光,於是大量塗刷白色油漆,使家本身加倍明亮,展現幹淨整齊的畫麵,搭配舒適柔和的自然光、陽台綠意點綴,加上木頭溫潤色彩質地,成為屋主心目中最幸福的退休宅樣貌。
design & photos @ 時冶設計





























