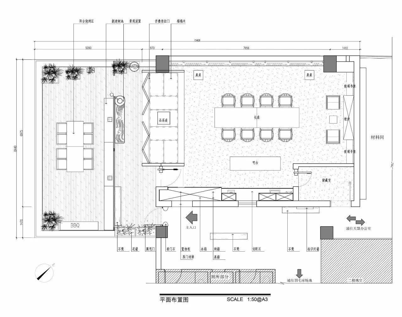
慧舍是慧空間設計的一部分,位於寧波市高新區華之大廈的三樓,由75㎡的室內空間和45㎡的露台組成。慧舍空間裏室內有一個茶室,一個8個人座的長條茶桌,一個吧台,一個儲藏室,一個酒精壁爐牆麵,室外露台有個8個桌位的戶外長桌和一個BBQ。整個功能分區主要分室內空間和露台空間,中間用一個抬高300mm的榻榻米茶室過渡。
設計師把一個方形的鐵盒子置入茶舍和露台之間,取代了原先的封閉牆麵,通過可以完全打開的折疊門,完成這個空間的延續。於是,從茶舍進入露台的經曆又添驚喜——穿過空間的過程多了榻榻米式的茶室,靜謐而又靈動,一個開放空間一個封閉空間,在形成室內外對話的過程中,綠意,陽光,氧氣和匠心親密的融合在了一起。特別在現代化的辦公樓空間裏,白天用遮光簾,空氣用新風係統,人們穿行在高層的住宅和辦公空間裏,完全與自然隔離了。
由於慧舍的周邊大樹環繞,讓慧舍裏麵的空氣充滿了氧氣,坐在慧舍裏喝茶,人自然便得到了放鬆。若談笑間,風滿座,得水聲入耳,豈不妙哉?為此設計師養竹造景,用近3000mm的舊馬槽,舊時的石墨和當地的竹筒,做成水循環,空間裏有了潺潺水聲,送錦鯉入池,空間便幾分添生趣。再配上有幾百年曆史的石凳,點綴在全新的空間裏,形成對比,讓全新的空間裏有曆史的痕跡。
版權聲明:本站所有文章除投稿授權發布外,其他文字內容均為原創,享有著作權保護,未經許可不得以任何形式進行轉載(包括且不限於:媒體、網站、公眾號等)。所有項目照片/設計圖形版權歸原作者所有。本站部分內容源自網絡公開資源或用戶分享,如若侵犯了原作者的合法權益,可聯係我們進行處理。




























