Shinichi Ogawa&Associates在位於泰國Prachuap Khiri Khan省華濱區的華濱海灘設計了這座迷人的度假海濱酒店別墅,於2017年竣工。該別墅將成為周末的休閑場所,客人在這裏可以度過一段閑暇的時光,遠離市區日常生活的喧囂,而且幸運的是,從主街到海灘近在咫尺。
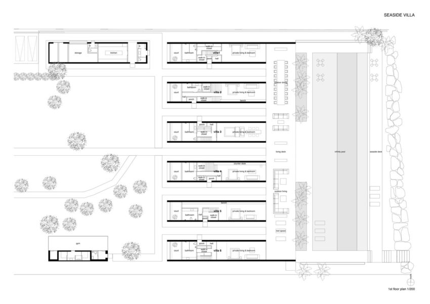
這個度假海濱酒店別墅包括六間臥室,一個住戶家庭的六名成員分別用於個人活動。每個房間都分布在一個獨立的空間內,以LOFT閣樓式結構呈現。高高的玻璃牆讓自然光線以及沙灘的景色進入房間。入口處的第一個空間是起居室,采用淺色調的簡約裝飾,以增強室內通透的視覺效果。通過狹窄的樓梯到達閣樓,閣樓上是一張床和一間浴室。還有戶外用餐區,戶外生活區,遊泳池,健身房,桑拿浴室和廚房。
photos © Shinichi Ogawa & Associates
版權聲明:本站所有文章除投稿授權發布外,其他文字內容均為原創,享有著作權保護,未經許可不得以任何形式進行轉載(包括且不限於:媒體、網站、公眾號等)。所有項目照片/設計圖形版權歸原作者所有。本站部分內容源自網絡公開資源或用戶分享,如若侵犯了原作者的合法權益,可聯係我們進行處理。













































