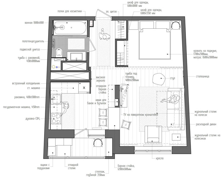
InteriorNI設計項目位於莫斯科,建築麵積為45㎡,項目的主要目標是創建一個清新、舒適、溫馨、功能齊全的居住空間。由於業主對儲藏空間的需求量比較大,所以設計師巧妙的增加了很多功能性的儲藏空間。重新劃分後的空間主要包括:入戶、客廳、臥室、衛生間、廚房、吧台、休息陽台等。
Photos © Int2
Content Copyright © www.online4teile.com
版權聲明:本站所有文章除投稿授權發布外,其他文字內容均為原創,享有著作權保護,未經許可不得以任何形式進行轉載(包括且不限於:媒體、網站、公眾號等)。所有項目照片/設計圖形版權歸原作者所有。本站部分內容源自網絡公開資源或用戶分享,如若侵犯了原作者的合法權益,可聯係我們進行處理。























