這是一間位於澳大利亞墨爾本維多利亞的舊倉庫改造項目,由RTEdgar事務所設計。
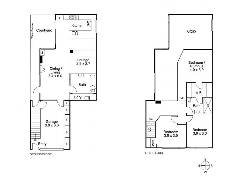
設計師在原有的挑高空間中利用鋼結構加建了一層空間,使原來的建築分為上下兩層,並保留了部分紅磚牆的原始牆麵。改造後的建築一層空間主要包括:車庫、客廳、廚房、休息區、衛生間、生活陽台、樓梯,二層空間主要包括:兩間臥室、一間兼具娛樂功能的臥室、衛生間、儲藏間。
RTEdgar事務所官方網站:RTEdgar
Photos © RTEdgar
Content Copyright © www.online4teile.com
版權聲明:本站所有文章除投稿授權發布外,其他文字內容均為原創,享有著作權保護,未經許可不得以任何形式進行轉載(包括且不限於:媒體、網站、公眾號等)。所有項目照片/設計圖形版權歸原作者所有。本站部分內容源自網絡公開資源或用戶分享,如若侵犯了原作者的合法權益,可聯係我們進行處理。


















