這個占地362平方米的翻修工程坐落在瀑布的東部山麓,將改造了一個世紀的工作穀倉,變成了一間三居室。建築被恢複了原貌,目的是營造一個舒適的家,同時保留它原有的形態、特色和曆史。建築的外觀保留了原有的大部分原始風格,但增加了一個深簷的門廊和巨大的可操作窗戶和門。
結構、防水和隔熱要求使之成為了一個幾乎完整的新建築,包括一個新的基礎和框架,新的側壁和天氣障礙,以及在整個過程中添加絕緣材料。 最後,一種全新的屋頂結構必須在現有裝飾屋頂結構上,以使其符合規範。現有的框架和壁板被小心地移除,並作為暴露的內部框架元素重新使用。客廳的壁爐是由熱軋鋼製成的。
天花,地板,甚至是固定裝置和門都是從原來的建築或者是被搶救的庭院裏得到的。 在鄰近的場地上發現的生鏽的齒輪、杠杆和金屬絲包被改造成了一個啞鈴和壁爐阻尼器。餐廳裏有一個定製的固定裝置,由一根廢棄的鐵絲柵欄圍起來。蘋果板條箱被小心翼翼地分成了樓梯側麵的壁板。一個現存的木畜欄被小心翼翼地從穀倉中移走,並重建為儲存室和一個寵物喂養區。
廚房無疑是現代的:熱軋鋼板上有一個灰砧板。作為穀倉,照明並不是最重要的;但作為居住空間,引入日光是至關重要的,大範圍的使用玻璃,其中包括三扇滑動門,將小門打開進入一個陽光門廊,以及將原先的海鴿棚和穀倉門改造成一個大的玻璃幕牆。
新的措施被認為具有現代美學,同時在這個原始的調色板中運行。這個項目更新了一個老化的穀倉,而沒有失去它的曆史記憶。
—總平麵圖
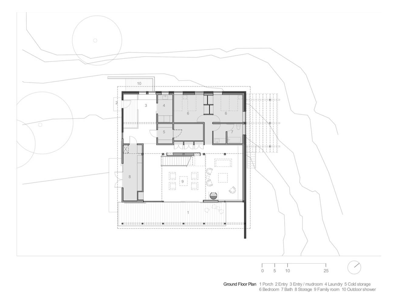
—一層平麵圖
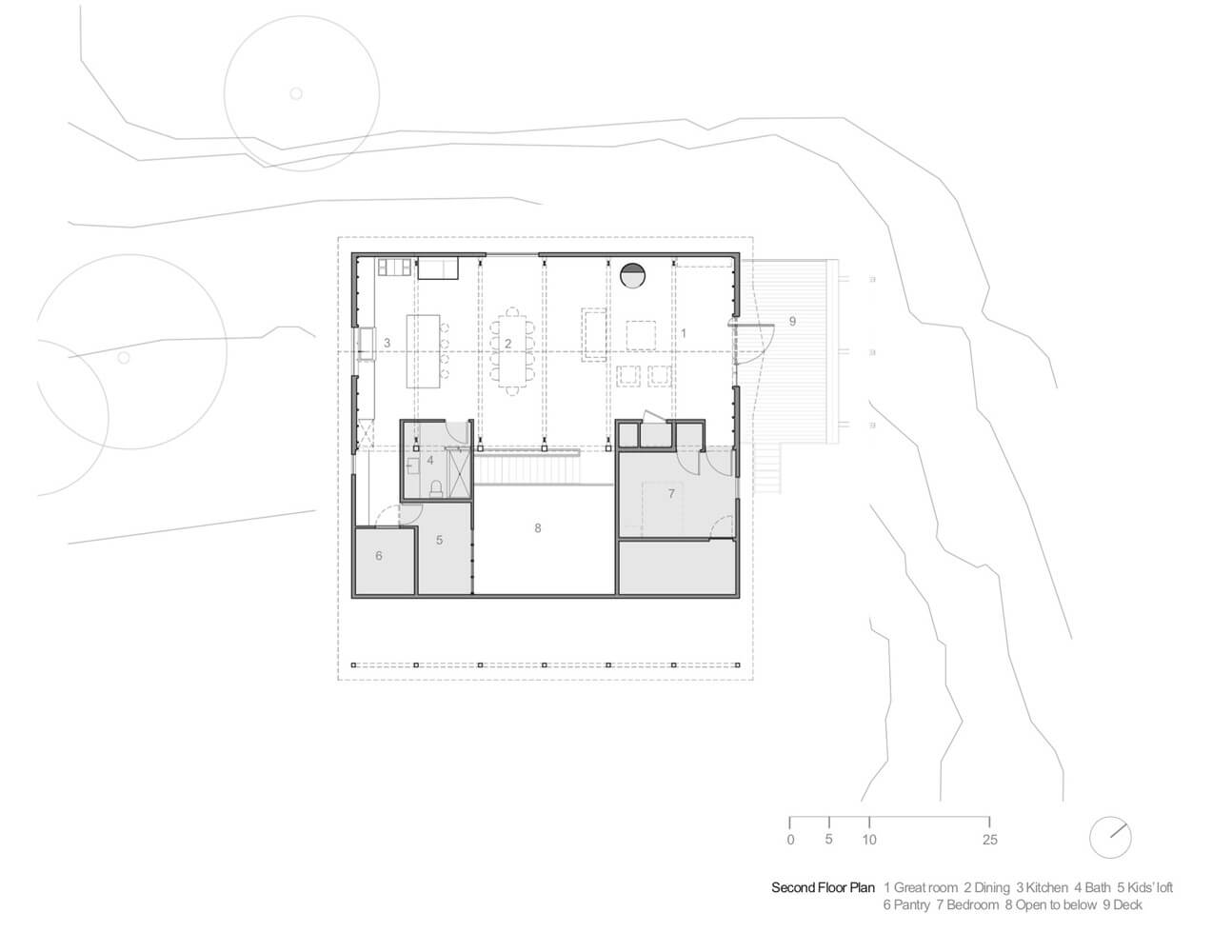
—二層平麵圖
—立麵圖01
—立麵圖02
—室內
—節點圖
—軸測圖
—起居室
—水槽
—燈具
—軸測圖
室內樓梯
photos © Tim Bies Photography
版權聲明:本站所有文章除投稿授權發布外,其他文字內容均為原創,享有著作權保護,未經許可不得以任何形式進行轉載(包括且不限於:媒體、網站、公眾號等)。所有項目照片/設計圖形版權歸原作者所有。本站部分內容源自網絡公開資源或用戶分享,如若侵犯了原作者的合法權益,可聯係我們進行處理。

































