Adobe對創意、創新和社區的關注體現了它的設計方法——整個過程中鮮活而有目的地利用顏色,把每個空間的修飾最少化,將策劃的藝術裝置與當地製作的家具和環保可持續的材料結合在一起——從而創造出表達公司品牌理念和體現下一代創新工作場所的公司總部。
Adobe總部已然成其公司品牌延伸的實體表現,代表公司的創造力和創新精神。把員工當作公司的最大財富的Adobe理念,通過經改造的垂直園區表達出來,旨在為Adobe員工創造出開放和充滿活力的工作環境以增進員工間的合作和創造力。新的開放式工作空間、眾多的會議區域,包括設置了座椅和“起居室”的露台會議空間,以及室外協作空間與創意會議室和設施,讓員工以多樣化的方式進行溝通。
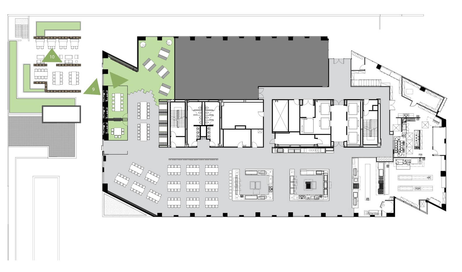
公司總部的設計表達了對這座城市的過往與現今的敬意。利用從當地購置的果園包裝箱擺出 Adobe 標誌性的“A”字母藝術裝置,是一種對城市過去農業曆史的頌揚。設計定製的屋頂棚架創造了一個外部空間,吸引員工在室外進行臨時會議,或在背靠城市輪廓的場景裏品嚐雞尾酒。而當地製造的地毯、家具和裝飾品則展示了當地社區藝術家和製作者的才華。
photos © Emily Hagopian Photography
版權聲明:本站所有文章除投稿授權發布外,其他文字內容均為原創,享有著作權保護,未經許可不得以任何形式進行轉載(包括且不限於:媒體、網站、公眾號等)。所有項目照片/設計圖形版權歸原作者所有。本站部分內容源自網絡公開資源或用戶分享,如若侵犯了原作者的合法權益,可聯係我們進行處理。








































