Part 01 氣
/ 有形之氣 自由之息 /
Tangible breath breath of freedom
最無形的力量 最有型的能量
在空間中感受氣的流轉
體會自然萬物的力量之美
一直以來,艾肯工業以“技術創新和智能製造”為企業核心競爭力,立足於軍工、高鐵設備和蒸汽係統成套設備製造經驗,為用戶提供蒸汽能源高效利用和節能解決方案。
設計概念立足於蒸汽工作原理,“汽化”成氣,聚天地純陽,呈生命之氣,與企業精神之氣相聚合,凝聚在空間中並綻放感性生命力量,孕育氣韻凜然的理想共場,尋真實,靜謐自我。
Part 02 韻
/ 優雅留白 韻外之致 /
Elegant white space and extravagant charm
韻並不是漫無邊際的聯想
而是客觀存在 與氣不同
一種是力度 一種是美感
整體一層大廳,以氣成韻,融合未來新生態,利用10m挑高優勢,通過靈動飄逸的曲線從接待區延展到頂麵將上下兩層聯動。感性的走向、優雅的留白,依托曲線的張力使得空間更具立體感和動態美感,以彙聚、循環、開放逐層遞進的狀態展開空間敘事主線。
此外,一層展示區利用數字化科技打造,將企業文化以最新的方式循序漸進地傳達給到訪者。以氣載道以虛轉實,觀其韻,滲透企業博遠與深邃。
以視覺感官為初,觸達身心深處。除了優越的造型外觀,一層的展廳入口更是以科技倉為概念,靜置時如同藝術裝置,營造強烈的視覺衝擊力和未來感。當有來訪者,科技+生態體融合成通往未來的鑰匙,將感知力一點點重啟,喚醒身心“重置新生“的力量。
Part 03 凜
/ 凜然平和 溫情自得 /
Awe- inspiring peaceful warm and contented
關乎自然的呈現與持續運作
將生命本真歸根複命
“氣”有一萬種狀態,在智慧裏、在意境裏、更在精神裏,艾肯工業立足使命:低碳能源智能管理促進人與自然和諧共生,方正威凜,不能側目。
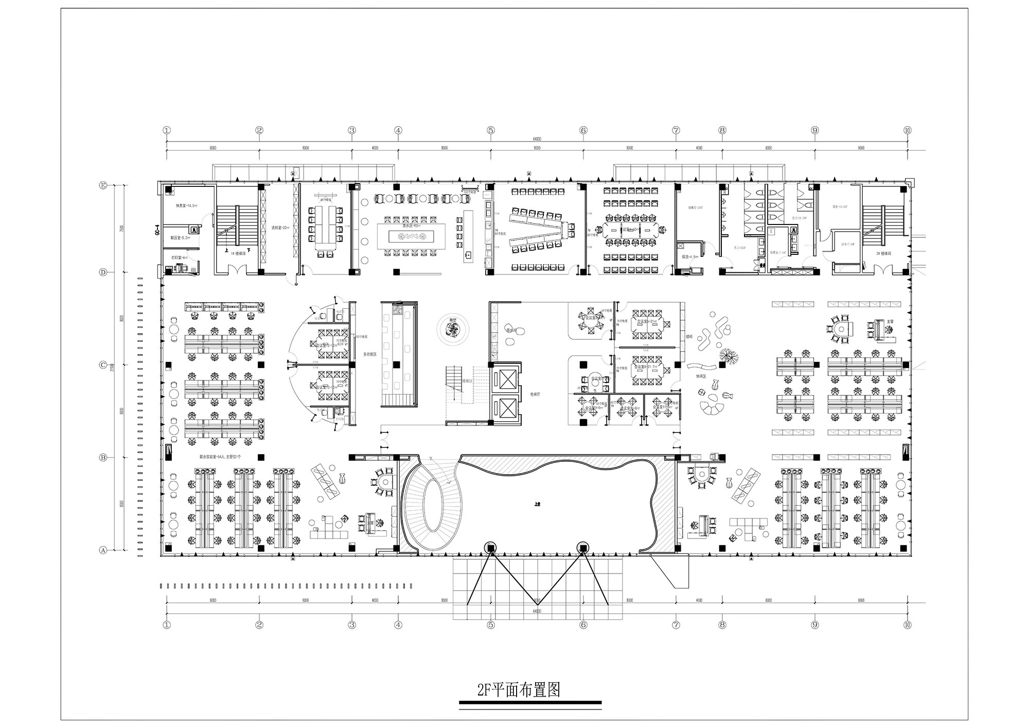
作為主要辦公的二三四層區域以曲線鏈接各個分區,以實用性為出發點,動線與區域的劃分一目了然,逐步放大藝術對辦公空間的潛在總價值。
會議室承載重要決策的價值突圍,浪漫的科技線條,材料尺度的生態環白,帶來一種糅合理性和感性的之美。
Part 04 然
/ 禮與自然 不止共生 /
Etiquette and nature are more than symbiotic
舍棄繁雜
永續是自然規律的共生
氣雖無形,卻謂療愈。休息區的多維體驗,以啟發式的空間設計,呈現獨特美學,象征藝術及自然融合帶來的巨大動力。在紛繁冗亂的都市中,構建一處自在平和的空間,悠然無拘、心靜祥和、溫情而自得。
∇ 1F平麵圖
∇ 2F平麵圖
∇ 3F平麵圖
∇ 4F平麵圖
項目信息
項目名稱|艾肯工業總部辦公
項目地址|江蘇常州
項目麵積|14000㎡
項目類型|辦公·展廳




































