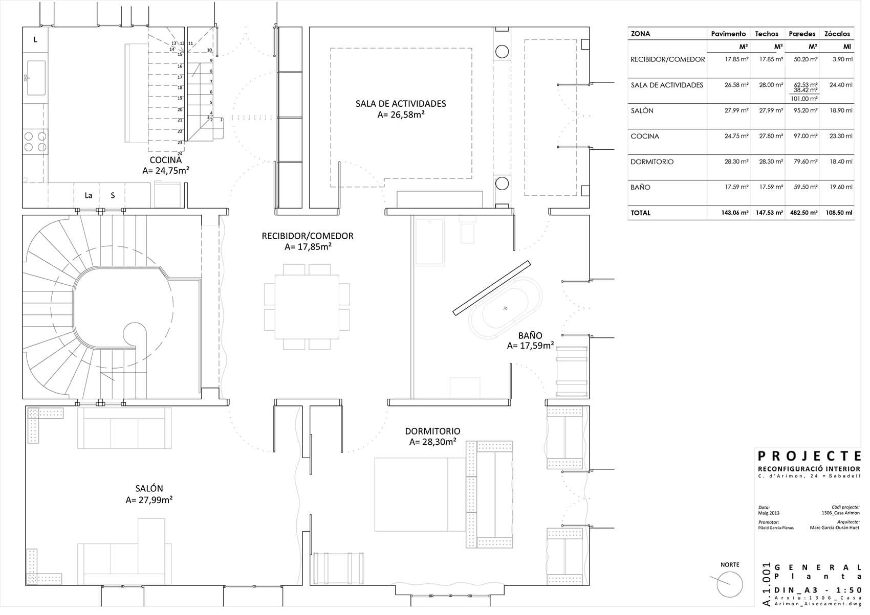
García-Durán & Equipo對這間位於西班牙薩瓦德爾的Arimon住宅進行了翻新設計,該住宅現在的主人是PlàcidGarcia-Planas。該住宅有著幾次不同曆史層次的修複,而此次整修項目的重點部分在於如何融入舒適的現代化元素。
本次的翻修是Marc García-Durán與其之前的建築師們進行的一次精彩對話。我們的客戶這樣寫道:“建築本質上是對光的找尋。這就是建築師Marc García-Durán在翻新我們這棟老住宅時所做的。”
“這棟住宅最初是由城市規劃師兼數學家Josep Oriol iBernadet 在1858年所建造的。此後,在1911年,Josep Oriol i Bernadet又將其改造為現代風格的住宅。此外,建築師Santiago Casulleras i Forteza在1945年還對該住宅進行了部分整修。而在2008年,設計師Marta Domenel和Núria Bartomeu為住宅的主樓梯設計了樓梯扶手。”
“在與先前的建築師們進行對話之後,建築師MarcGarcía-Durán用畫筆劈開了牆壁,並解構了樓梯的構造。其設計理念不單單隻是創造新空間或發掘舊空間,而是在發掘的同時進行創造。去衝淡時間的印記,特別是去找尋光。”
“建築師不僅在與時間對話,同時還與這裏的空間,以及住宅旁的工廠展開了對話。另外,他還與該住宅曾使用過的一些紋理傳統進行了交流。其成果是,他將羊毛填入玻璃夾層,將舊木盒改造成櫥櫃。”
“這棟住宅的外觀被正式認定為文化遺產。在建築師MarcGarcía-Durán對室內進行改造之後,我相信有一天這些改造的部分也能成為文化遺產。”
photos © Adrià Goula
版權聲明:本站所有文章除投稿授權發布外,其他文字內容均為原創,享有著作權保護,未經許可不得以任何形式進行轉載(包括且不限於:媒體、網站、公眾號等)。所有項目照片/設計圖形版權歸原作者所有。本站部分內容源自網絡公開資源或用戶分享,如若侵犯了原作者的合法權益,可聯係我們進行處理。























