北京城裏的時間軸,記憶的延續與疊加
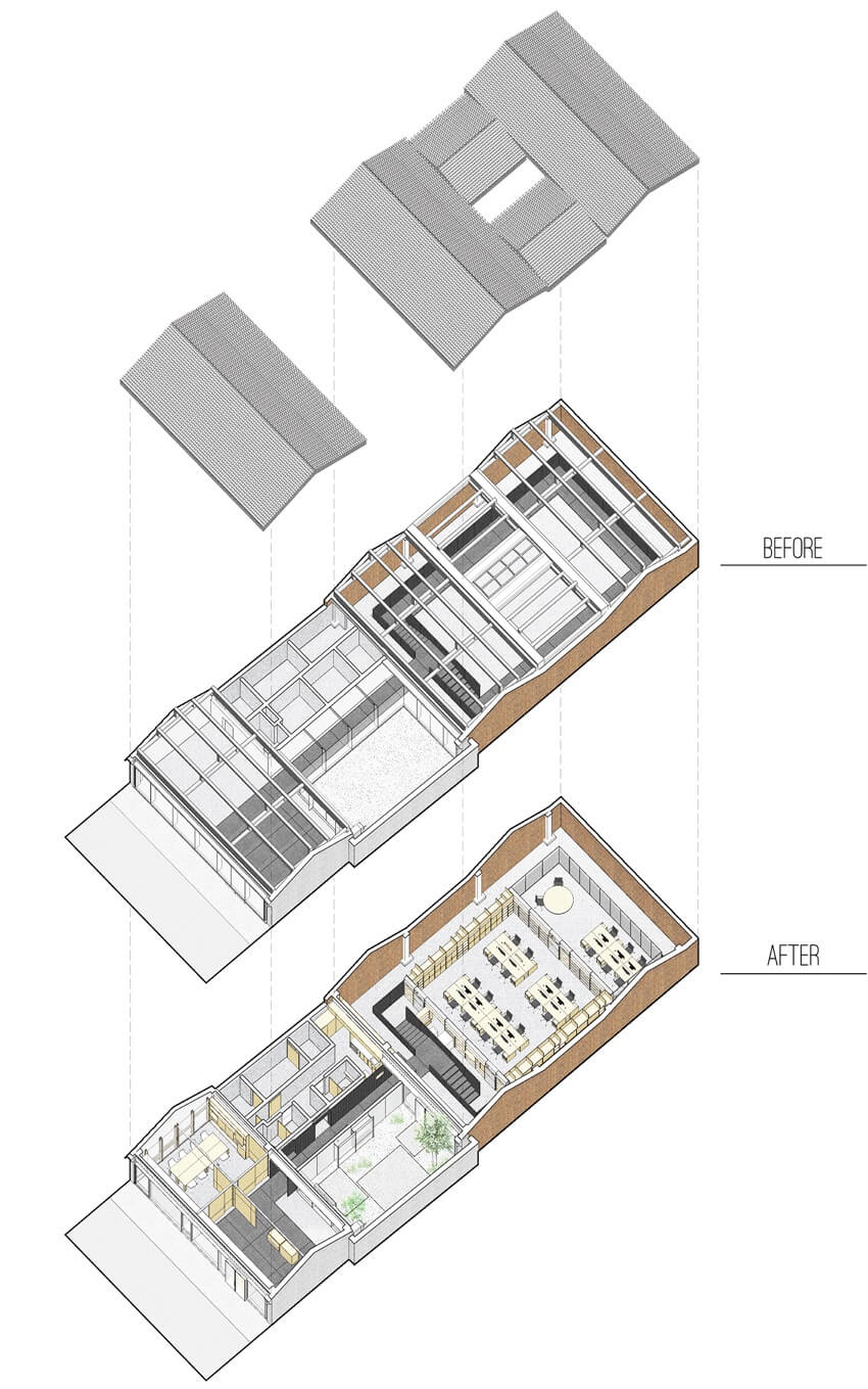
北京的胡同如同曆史的載體,各個時期的痕跡在此揉雜交錯。 隨著現代化發展, 胡同區域的功能也變得更加多元且多變。如同這個院落,曾經是住宅,在1998年被作為旅館經營,在2014年的舊城更新中被改造成鋼結構建築,主要功能為小劇場,如今的新功能則為PAGEONE書店的辦公室和藝文展示場所, 而這個功能也不會長久存在。
胡同裏有著豐富的生活,生命力是飽滿且相互包容的。麵對“二次更新”的項目,以及考慮未來繼續變化生長的可能性, 我們在保留主體結構的條件下采用“輕”“彈性”的態度和方式去植入設計,保留部分場所記憶,並延續城市與胡同的活力, 在有限的空間和時間內企圖凝聚更多的層次與胡同體驗。在既有的空間構成框架下,我們通過重新定義空間內容與界麵材料,借由新舊材料對話、空間尺度與光影明暗的把控,嚐試在原有的胡同風景中創造獨特的場所經驗與空間感受。
從胡同街道至辦公場所,劇場空間再詮釋
原先要作為小劇場使用的下沉空間、天光與庭院已是胡同裏有趣的存在,透過適度的設計,讓人從生動的胡同街道穿過層層光影與尺度漸變的空間,感受不同的情境,亦如穿梭劇場。
入口展間延續胡同街景是明快、舒暢的,接著是位於院子東側的連廊,被改造為一條安靜的黑色展廊,它與院子的對話被限定在其中向庭院伸出的一個個人的閱讀空間。 展廊在空間路徑上連接了入口展間與辦公區兩個不同屬性的空間,用光轉化使用者感受:由外部喧鬧到逐漸沉靜的過渡。
原有的下沉空間與天光被重新定義為辦公場所,植入一層金屬拉伸網界麵懸浮於辦公區域上方,除了界定辦公空間、柔化來自天窗的直射光,也解決了辦公照明和海報吊軌的需求,並微調空間尺度至舒適的辦公環境。
辦公空間四周的地麵層環廊為供訪客參觀的環形展廊,保留了從入口地麵延伸至辦公區的壓紋黑鋼板,在走向辦公區的過程中,鋼板地麵獨有的觸感,以及由豎立的黑鋼板與新植入的金屬衝孔板所營造的多層次辦公空間,對於訪客猶如步入舞台,無意間暗示了曾經的功能。單元化設計的辦公櫃體沿空間長向布置 ,除了提供辦公區充足的收納,向上生長後,不僅成為展廊的展示書架和訪客的讀寫空間,也形成一道訪客與辦公人員視線觀看的界麵。
打開胡同,創造自由的空間
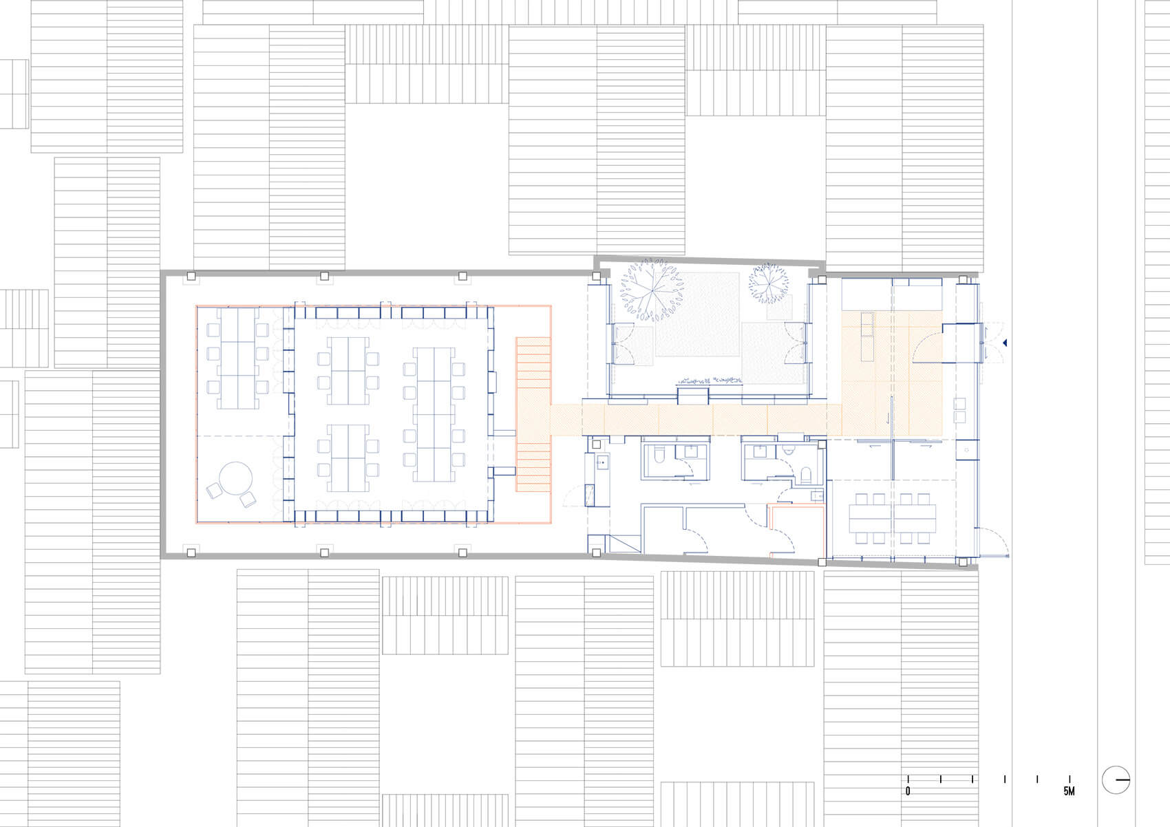
入口和院子的南北兩側立麵是聯係胡同街道與整個空間的三道透明界麵,透過界麵視線可以將空間串聯 —— 胡同、展間、庭院直至辦公空間。空間既是彼此獨立,也相互交疊。當打開三道立麵上經對位設計的推拉門,將有一條直接路徑使空間流動。
入口空間為展示與會議空間,除了辦公需求外,在這裏將定期發生展覽活動,並和街道以及對麵的社區圖書館互動。 我們在現有鋼梁下植入新的係統,由膠合木板材(歐鬆板)與鋼構件組成的十字型活動牆,可彈性劃分空間。 借由牆體推移,空間東側圍合出的兩個小會議室可相互合並為一個大會議室,亦可開敞成為西側入口展間的延伸。
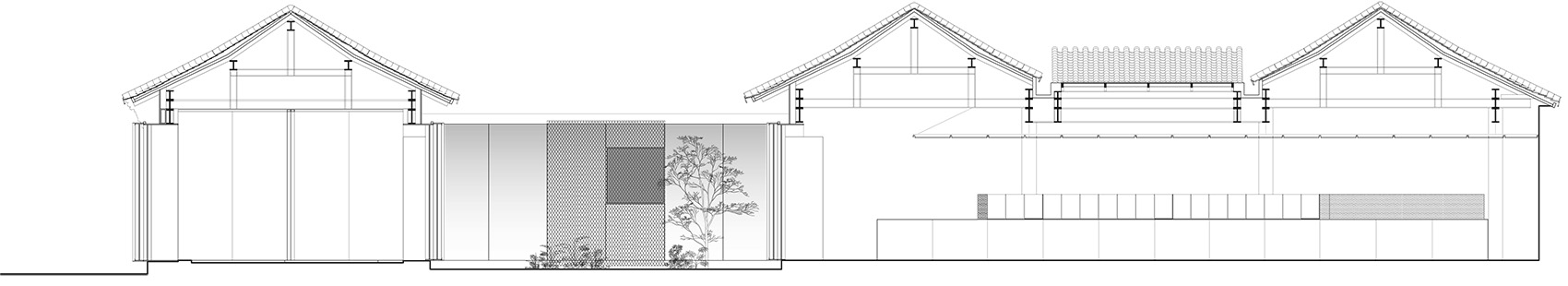
改造中所選用的材料為可快速施工組裝的多層板和歐鬆板,以及在胡同區域“私搭亂建”中經常會出現的鍍鋅鋼板、金屬網和陽光板, 我們試著用經濟的方式將這些胡同裏的日常材料重新在合適的場所空間內展現材料可顯現的氛圍與質感。
胡同紋理是複雜甚至破碎的,如同當今現代城市的發展進程,之於大環境的變動,我們的設計也是瞬息萬變的一部分,因此,從設計、施工至使用,生成的過程與創造的場所都是我們企圖打造的自由空間,讓人們在快速的城市發展中,擁有機會累積自己的場所記憶,進而集結為城市的胡同記憶。
design © 即作建築 MINOR lab
photos © 陳顥、王藝祺、趙丹















































