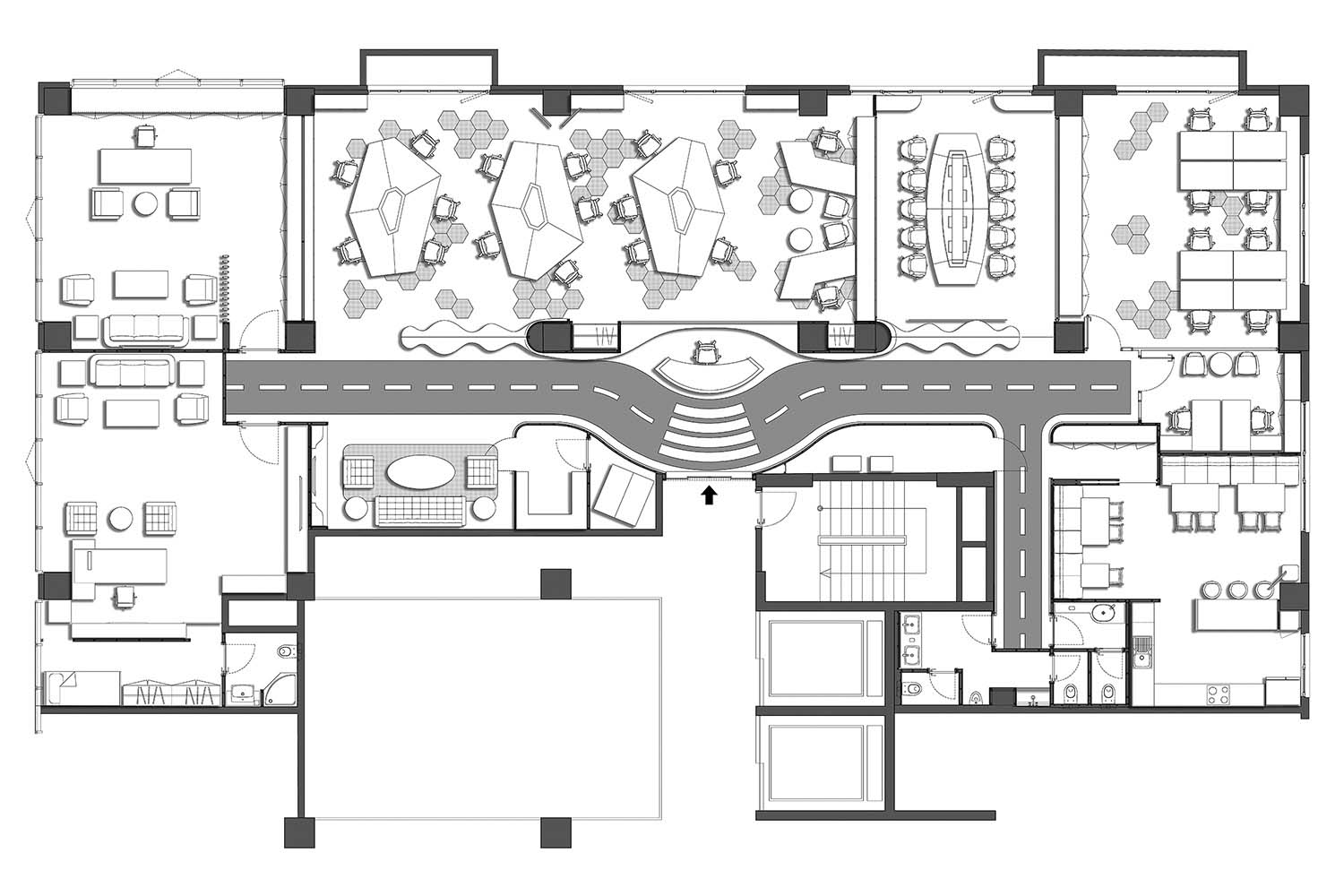
Transbatur辦公項目位於伊斯坦布爾Beylikduzu,占地500平方米。這個辦公室是為一家國際物流公司設計的。從他們的業務領域開始,內部概念的設計與物流理念相關。因此,我們將道路和集裝箱的相同形式和材料運用到入口大廳的內部空間中。此外,入口大廳的彎曲貨架由透明玻璃支撐,為微型軌道的展覽而設計。總體布局計劃設計為開放式辦公室和私人房間的組合。
design © Bayık
photos © OSO Mimarlık
版權聲明:本站所有文章除投稿授權發布外,其他文字內容均為原創,享有著作權保護,未經許可不得以任何形式進行轉載(包括且不限於:媒體、網站、公眾號等)。所有項目照片/設計圖形版權歸原作者所有。本站部分內容源自網絡公開資源或用戶分享,如若侵犯了原作者的合法權益,可聯係我們進行處理。

























