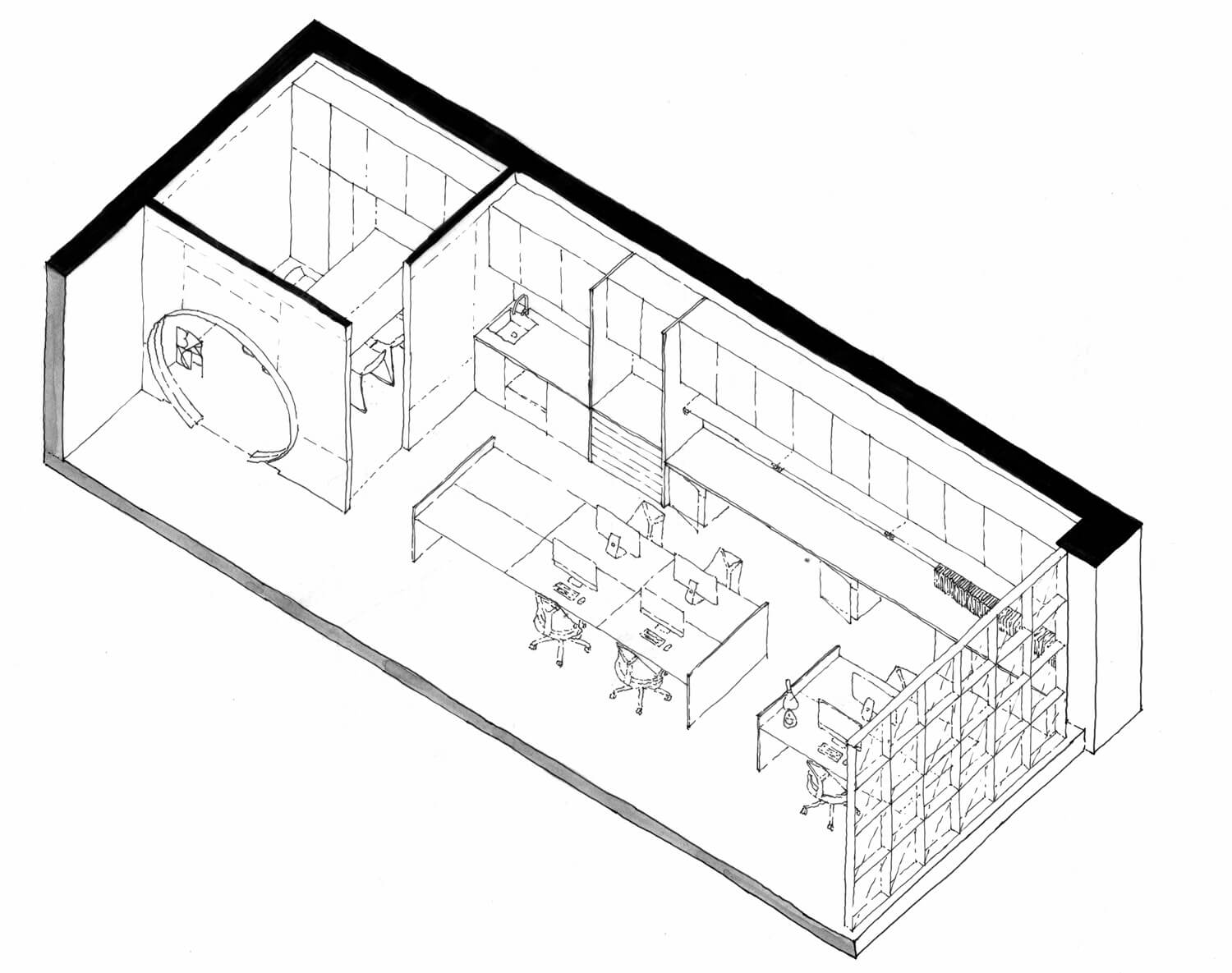
位於墨爾本最具社會和環境可持續性的多住宅建築之一——維多利亞州不倫瑞克的夜鶯1號——Branch Studio的新工作空間占地45平方米。該空間目前可容納兩名董事、一名助理和兩名全職員工,有足夠的擴張空間。工作室還包括會議室、小廚房、模特區、掛飾牆和足夠的實體模型和書籍存儲空間。
混凝土和鋼材等原始飾麵與天然澳大利亞木材的溫暖,柔軟的牆麵飾麵和精細調整的細節形成鮮明對比。書桌和細木工結合了實用的厚層和自然紋理黑對接貼麵。粗黑鋼在整個過程中都很受歡迎,並以務實的方式加以提煉,創造出可拆卸的書架,以適應未來增長所需的額外工作站。
design © Branch Studio Architects
photos © Peter Clarke
版權聲明:本站所有文章除投稿授權發布外,其他文字內容均為原創,享有著作權保護,未經許可不得以任何形式進行轉載(包括且不限於:媒體、網站、公眾號等)。所有項目照片/設計圖形版權歸原作者所有。本站部分內容源自網絡公開資源或用戶分享,如若侵犯了原作者的合法權益,可聯係我們進行處理。






















