在北京CBD國貿商圈,有著成百上千的時尚店鋪,讓這裏成為了潮男潮女們聚集地。一處獨特的空間在滿足其功能的同時,成為了商圈內一件醒目的公共藝術品。
當人們走近這處僻靜之地,縹緲的雲層疊加於玻璃幕牆之上,環抱整個空間,二維的景像在此折射成為三維空間。
一片玫瑰金色的天頂從雲層升騰,為來往行人帶來超現實的視覺體驗,吸引你進入,享受如夢般的蛻變。
進入它,金色的河流從雲層中升起,徐徐淌於天頂,又在某處順流至地麵。立麵的雲霧巧妙的成為了二維空間轉向三維空間的介質,仿佛時空在這裏倒轉,一個超現實的空間就此誕生。
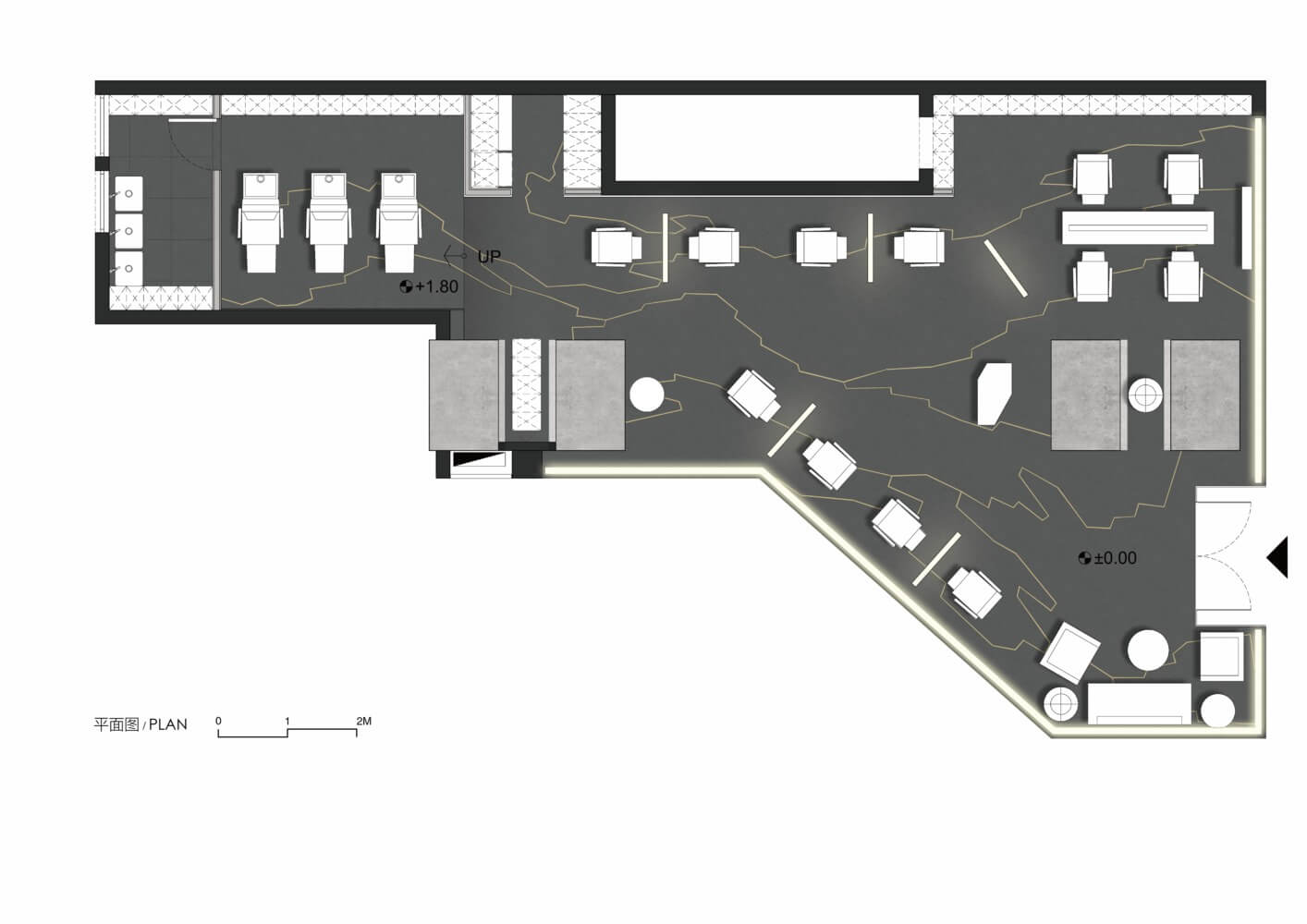
原始地基在空間上有著與眾不同的特質:入口處寬,向內逐漸階梯式收縮,四根支撐330米超高層建築的方形混凝土結構呈V字形兩兩分布;
由於地處大樓核心管井處,數根核心管道由此通過並縱向貫穿大樓,將屋頂切分成了複雜的層級。而這特殊的構造,使用麵積僅百平米的不規則空間讓劉昊威見狀直呼過癮,決定要把空間玩轉一把。
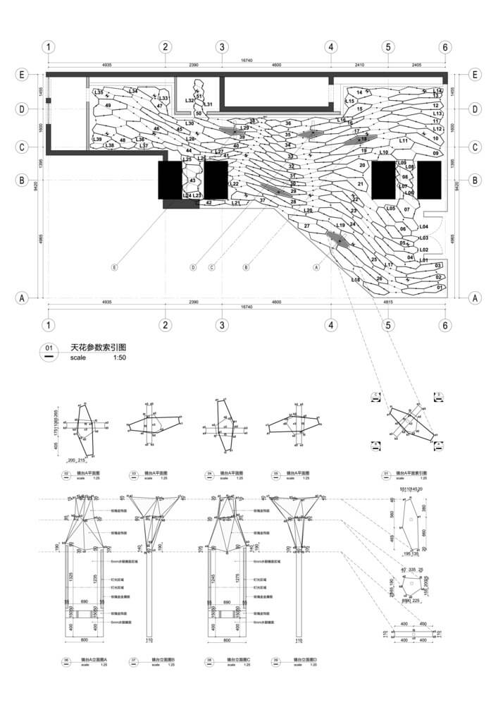
讓特殊的頂部構造成為焦點,像河流般流淌於天際。獨特的造型通過參數化設計實現,模擬出水流的抽象形態。
時而平緩流向遠方,時而如瀑布般流淌地麵,帶有功能的鏡麵由此而生,渾然天成。為呈現出水波瀲灩的視覺效果,頂部天花造型選用反射率極高的鏡麵不鏽鋼完成,CAA團隊通過對材質與反射的反複的研究和驗證, 使玫瑰金色的鏡麵所折射的光線變得更加溫和。環繞立麵玻璃的地燈將玻璃用光線由下至上洗刷,整個空間如同置身雲中。
而這精彩的背後,是巨大的施工挑戰。超過300個形態各異的的六邊形金屬幾何折麵,從放線到製作全部手工完成。
而鏡麵不鏽鋼對劃痕的零容忍,焊接複雜的金屬幾何的方法無法被實施,安裝手法不得不另尋他徑。作品安裝過程中無數次的探討與細節推敲不斷考驗著設計師與工人的專業素養和追求卓越品質的精神,作品的呈現是各種匠人精神結晶。
身處喧囂的商業核心區,這片流淌於雲上的金色河流是CAA創造的一處超現實秘境,為這片繁華增添了一筆獨特的未來都市印記。
完整項目信息
項目名稱:北京 MQ時尚造型工作室
項目類型:美容美發店、造型工作室
項目地點:北京
設計單位:CAA建築事務所
主創設計:劉昊威
設計團隊:劉雪薇,趙星雲,任卓穎,Shevaun Mistry,肖天樂
項目麵積:150㎡
項目年份:2018
攝 影 師:Felix Amiss






































