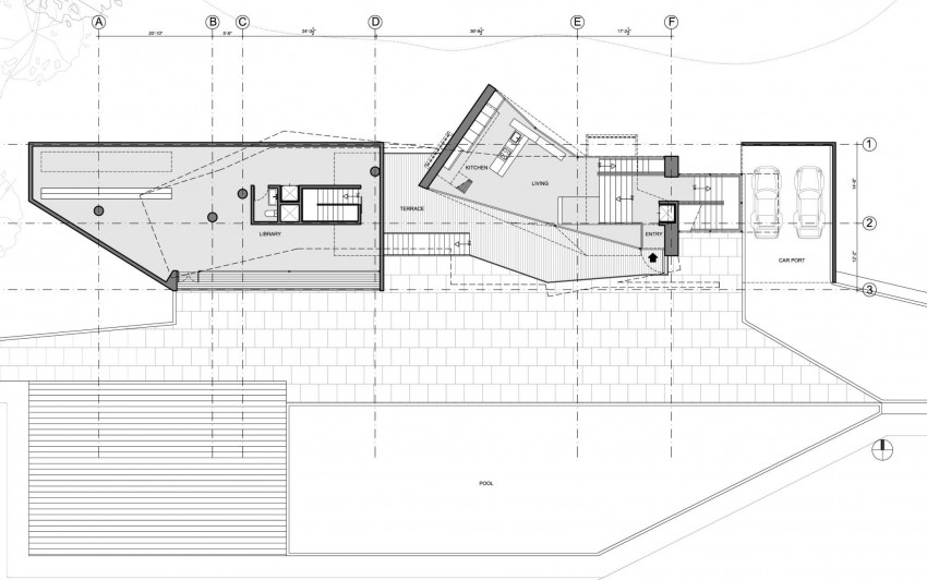
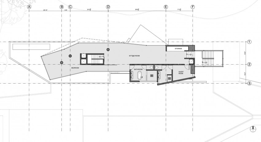
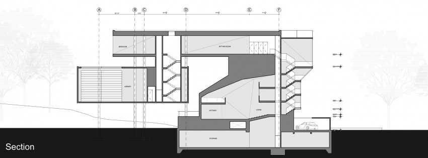
飛行員別墅位於紐約Duchess County的一個湖旁邊,由紐約本地設計工作室 Urban Office Architecture設計。別墅是為一位退伍飛行員設計,具有極具表現力和視覺衝擊力的建築形態,建築外形的設計靈感來源於比利時軍用飛機的外觀。
Urban Office Architecture官方網站:Urban Office Architecture
Photos © Urban Office Architecture
Content Copyright © www.online4teile.com
版權聲明:本站所有文章除投稿授權發布外,其他文字內容均為原創,享有著作權保護,未經許可不得以任何形式進行轉載(包括且不限於:媒體、網站、公眾號等)。所有項目照片/設計圖形版權歸原作者所有。本站部分內容源自網絡公開資源或用戶分享,如若侵犯了原作者的合法權益,可聯係我們進行處理。




























