來自意大利的EDB工作室將這個位於巴黎le marais的小公寓打造成了一個專屬於建築師的多功能空間。設計師在有限的空間內實現了對所有現代化設施的布置,將兩張床與與一個大工作台融入到這個僅有16㎡的空間中。
challenged to create a multifunctional space in 16 square meters, enrico bona and elisa nobile of italian EDB STUDIO have designed an apartment in the heart of le marais, paris, which easily turns into an architectural studio. the limited space features all the mod cons — even two beds and a large working table.
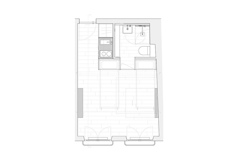
房間中央的白色櫃子包含了這個空間所需的一些功能——公寓的兩張床可以收進櫃子裏,使空間更加整體。掛在牆上的折疊式桌子有一個內置的灰色腿來支撐結構。小廚房則坐落在盒子另一側的小壁龕裏,裏麵有水槽、電爐和櫥櫃,還配有抽屜、冰箱和儲物櫃。
a white box in the center of the room contains all the necessary features — two beds disappear in its surface, while a secret door between them leads to a hidden space, the bathroom. hanging on the wall, a fold-down table has a built-in grey leg to support the structure. the kitchenette is nestled in a small niche on the other side of the box, with a sink, electric hob, and cabinet, also equipped with drawers, a fridge and a larder.
EDB還精心修複保留了該區特有的精神及其原始材料,如石灰石和裸露的木梁。在這個公寓設計方案中,建築師使用了由FENIX製作的小巧家具,這種家具材料具有防指紋光潔度的創新功能,同時家具設計款式比較簡潔,比如去掉手柄,家具顏色以白色為主色,以此達到空間簡潔的目的。
EDB STUDIO’s careful restoration preserves the spirit of le marais, along with the original materials, such as limestone and wooden beams on the authentic ceiling. in this setting, the architects have used the minimal furnishings made of FENIX, an innovative material with an anti-fingerprint finish. the properties of this material allowed them to opt for almost entirely invisible solutions, like eliminating the handles and using white as the dominant color.
完整項目信息
項目名稱:16 sqm of apartment renovation
項目位置:巴黎
項目類型:公寓改造
項目麵積:16㎡
使用材料:石灰石、木材
設計公司:EDB工作室























