PETSHOP IT部門的辦公室位於聖彼得堡的Chkalovsky大道上,這座建築可以追溯到二十世紀五六十年代的蘇聯工業建築,屋頂天花板、混凝土柱高4米多,俯瞰彼得格勒一側的巨大窗戶,這些都是對這家現代活力公司的空間很好的介紹。
The office for IT department of the PETSHOP company is located in St. Petersburg, on Chkalovsky avenue, in a Soviet industrial building of 50th – 60th years of the 20th century. Ridge ceiling and concrete columns more than 4 meters high, the top floor and huge windows overlooking the Petrograd Side – these are a fine introduction of space for the creative department of the modern dynamic company.
建築風格的基礎和靈感的主要來源是包豪斯美學——簡潔的形式、功利主義的方法和功能主義的思想曾經在建築界掀起了一場革命。現在設計師把這種美學運用到室內設計中,但僅僅是它的裝飾部分。現代紐約聯合辦公和辦公空間的室內風格也對該室內空間產生了很大影響。
The aesthetics of Bauhaus (the higher school in Dessau and the architectural direction of the first third of 20th century) has become a basis of style and the main source of inspiration. Simple laconic forms, utilitarian approach and the ideas of functionalism once has made a revolution in architecture. Now we transfer this esthetics to interior design, but only its decorative part. The interior stylistics of co-working and office spaces of modern New York also had a great influence on this interior mix.
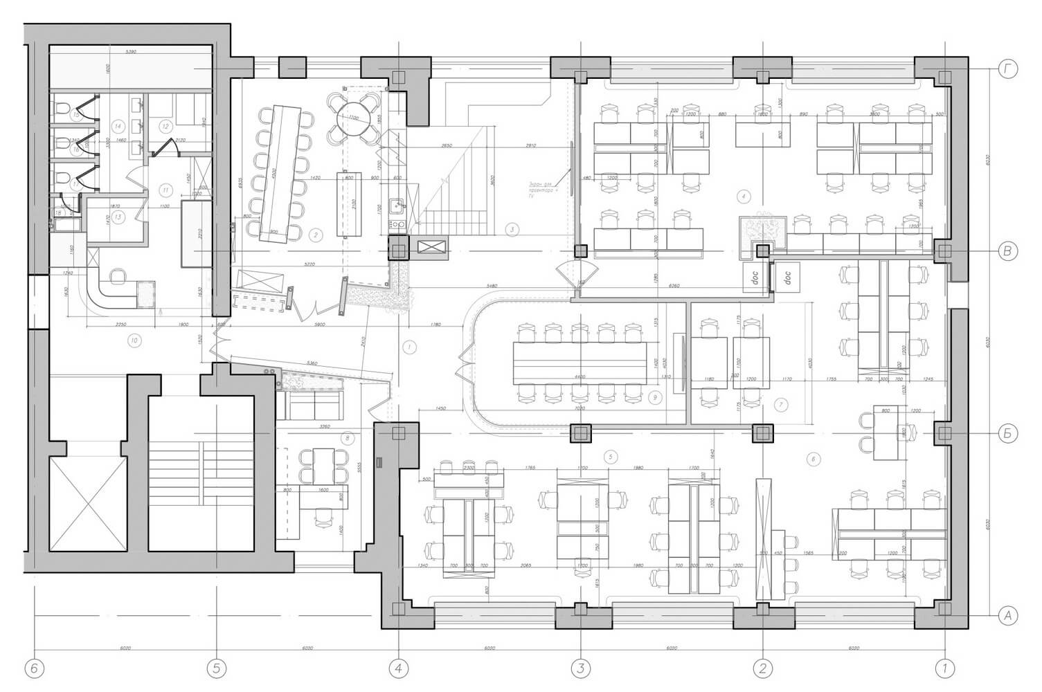
在辦公空間規劃中,最具代表性的會議室成為了空間的主要對象和重點,並以簡潔圓潤的形式被放置在辦公室的中心位置,其他開放空間被劃分為兩翼——平麵設計師區域(二十人)和IT專家區(三十人),並輔以生機的綠色植物。
In office space planning the most representative meeting room has become the main object and emphasis, receiving the laconic rounded forms and the central position in “the heart”, dividing other open space into two «wings» – a zone of graphic designers (for twenty people) and a zone of IT specialists (for thirty people).
第二個重心是位於會議室附近的圓形劇場,這是一個適合短時會議,休閑和活動等的通用演講廳。
The second “key” object, an amphitheater, is located near the meeting room. It is a universal lecture hall suitable for short meetings, free time, activities and other.
這個美麗而智能的空間,“看起來不像是一般的辦公室”,旨在為創意員工提供舒適的氛圍,幫助他們找到靈感和令人驚喜的想法。
This beautiful and intelligent space, “not-like-office-project-looking”, is designed to give comfort and the right vibes to creative employees, that they could find inspiration, harmony and the new amazing ideas.

▼平麵圖

完整項目信息
項目名稱:PETSHOP office
項目位置:俄羅斯,聖彼得堡
項目類型:辦公空間/IT辦公室
項目麵積:450㎡
完成時間:2018
設計公司:PAUM design
攝影:Sergey Melnikov

































