在設計該美容院時,設計團隊麵臨著兩件難事:一是位於店鋪中央的混凝土柱,二是其緊張的項目預算。團隊在條件允許的情況下將原混凝土、玻璃和鋼殼改造成“溫暖的公共環境”,他們設計了一個方案,強調客戶體驗和舒適性,並注重材料和細節,以使空間充滿活力。
When it came to designing the interiors for Le Hideout, a beauty salon in Montreal’s burgeoning Griffintown neighbourhood, two things could have stood in the way – a centrally located concrete column and an extremely tight budget. But for local firm Ménard Dworkind Architecture & Design (MRDK), they proved more opportunity than hindrance.
項目位於仍在建設中的Lowney sur ville公寓大樓的地麵層,占據了一個60㎡的空間,店麵有著整麵的落地窗,店中心是一個巨大的混凝土柱子。
Situated at the ground-level of the still-under-construction Lowney sur ville condo tower, Le Hideout occupies a 60-square-metre-space fronted by street-facing glazing and centred around a large immovable column.
為了隱藏在柱子上的管道和電氣管道網絡,MRDK將整件作品裝飾成一個由MDF製成的巨大的碳納米管切割成的花朵形狀。其底部大小為91×153厘米,在到達天花板時向外擴張。
To conceal a network of plumbing and electrical pipes that run up the column, MRDK dressed the entire thing in a massive CNC-cut floral formation made from MDF. The covering measures 91 by 153 centimetres at its base and grows upwards and outwards as it reaches the ceiling.
前台和美甲區作為沙龍的中心組織元素,由激光切割的鋼材製成,垂直地從中心向四處擴散,化妝區位於它的兩側。所有這些組成部分,包括建築本身,都被塗上了同樣鮮豔的珊瑚色,這是工業空間中健康的色彩。
Acting as a central organizing element for the salon, the reception desk and manicure stations – made from laser-cut steel – sprout vertically from this core, with makeup stations affixed to its sides.All of these components, including the formation itself, were coated in the same cheery coral, a healthy dose of colour in the otherwise industrial space.
修腳台位於靠窗的一個角落,由瓷磚覆蓋的基座、兩個比例很大的粉色軟墊椅子、洗手盆和定製的腳凳組成。
The pedicure station is located in a corner against the window and consists of a tile covered pedestal, two generously proportioned and pink-upholstered chairs, washbasins and custom-made footrests.
為了給整個空間帶來溫暖,主空間的牆壁上排列著塗有透明塗層的花旗鬆膠合板,木紋補充了裸露混凝土地板上的紋路。天花板管道、燈具、窗框和家具的黑色色彩成為了這間沙龍中的點綴色,與空間的其它色彩形成對比。在後牆的後麵隱藏著一間廚房、一間浴室和一間噴漆房。
Bringing warmth throughout, clear-coated Douglas fir plywood panels line the walls of the main space, the wood grain complementing the markings found in the exposed concrete floor. Black-painted ceiling pipes, lighting, window frames and furniture punctuate the salon, providing contrast. Concealed behind the back wall are a kitchen, bathroom and spray-tan rooms.
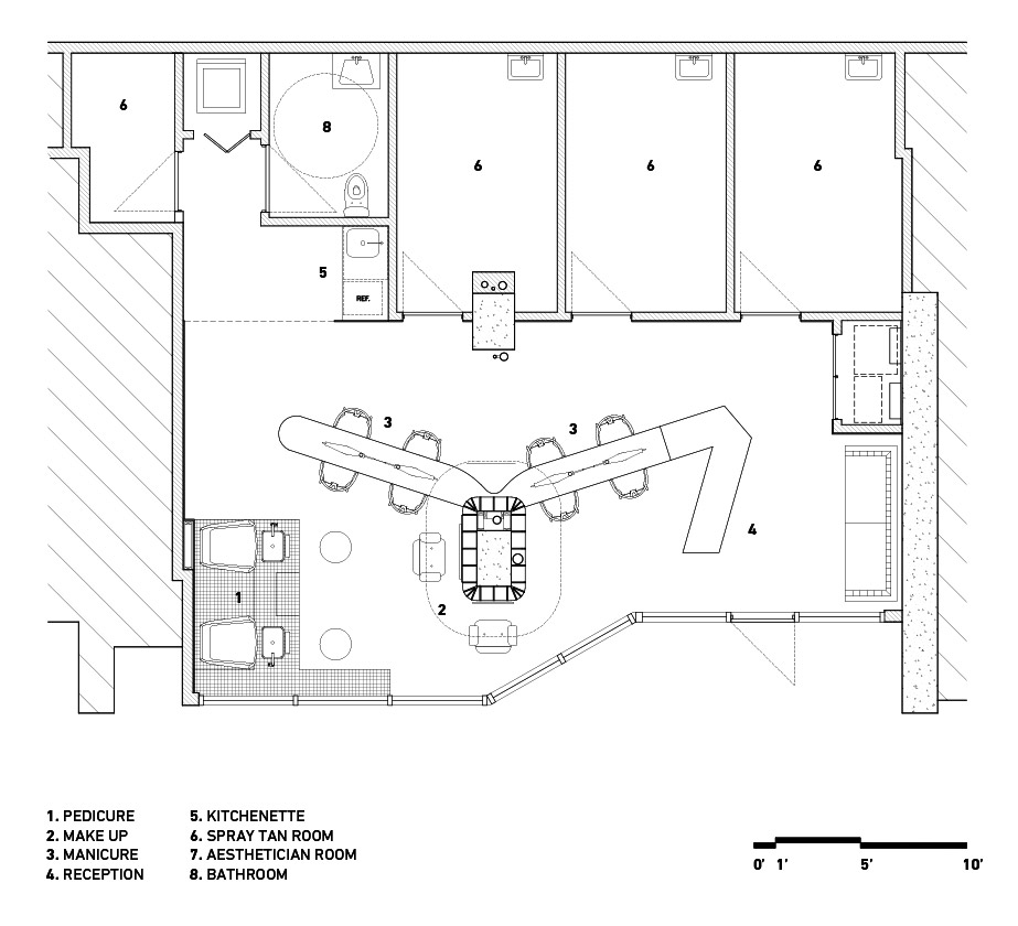
▼平麵圖

完整項目信息
項目名稱:LE HIDEOUT – SALON D’ESTHÉTIQUE
項目位置:加拿大蒙特利爾
項目類型:商業空間/美容院
完成時間:2018.11
設計公司:MRDK
攝影:DAVID DWORKIND























