Collectif Encore 事務所的Hamra 住宅兼工作室項目獲得了2018年度Kasper Salin 獎項的提名。項目由法國事務所 Collectif Encore 的建築師 Anna Chavepayre 主要負責,它是瑞典建築協會(Swedish Architects’ Association)評選出的四個提名項目之一,Kasper Salin 被譽為最具聲望的瑞典建築獎項,並自1962年來首次提名類似的小尺度項目。
Collectif Encore’s Hamra studio residence nominated for the Kasper Salin award 2018.?The Hamra project by France-based Collectif Encore – architect Anna Chavepayre, is one of four projects selected by the Swedish Architects\’ Association for this award considered the most prestigious Swedish architectural distinction and the first time such a modest scale project has been nominated since its creation in 1962.
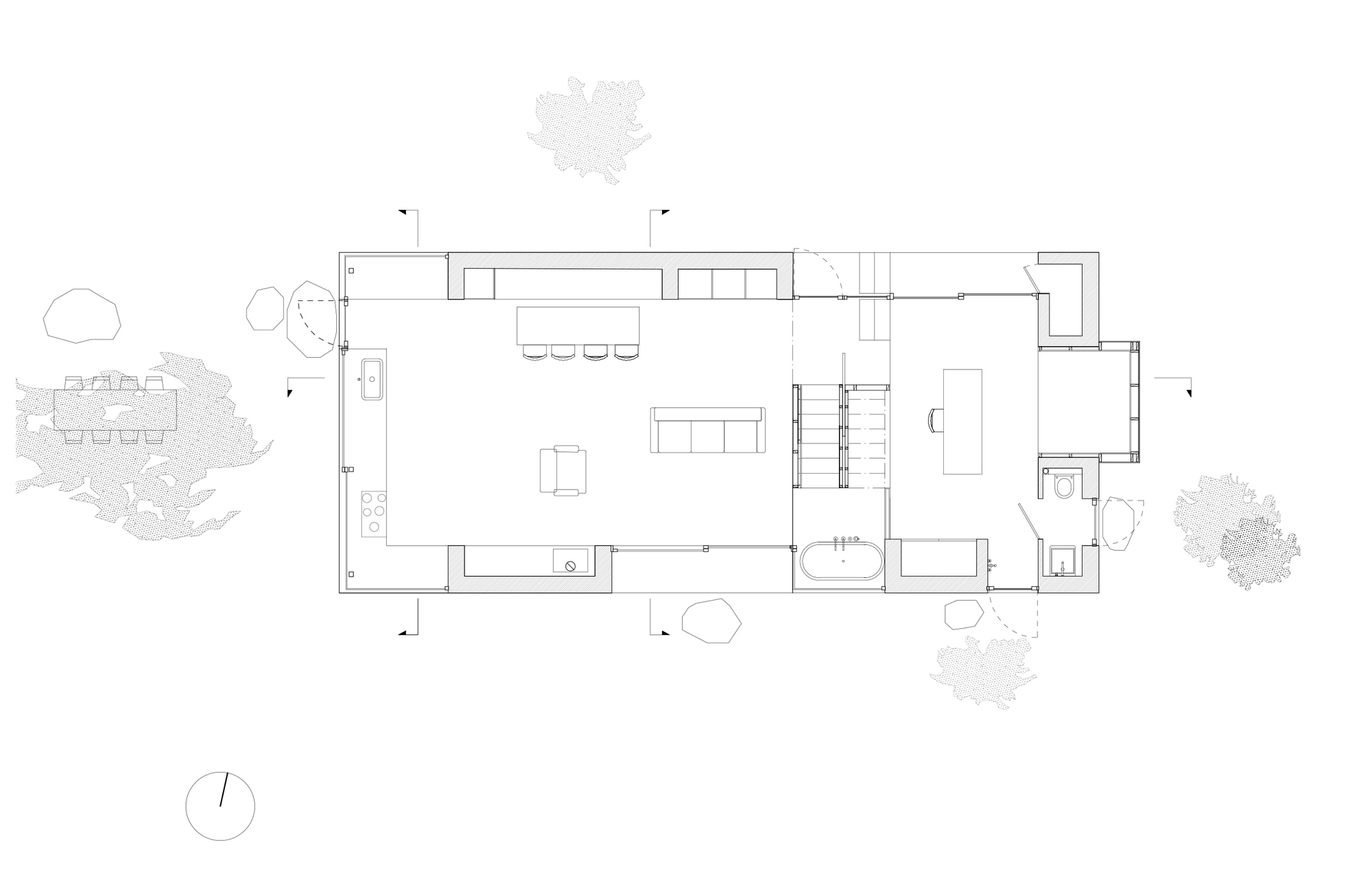
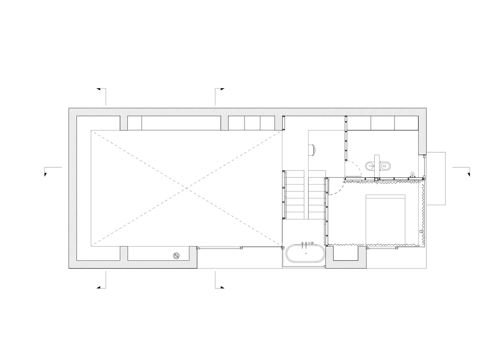
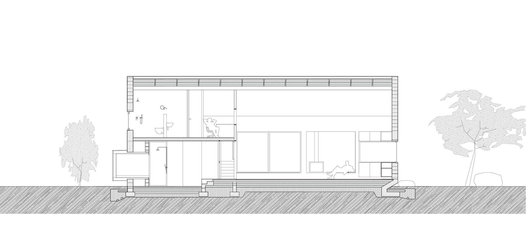
評審團表示:“這座住宅兼工作室給出了非同尋常且個性十足的建築表達。它同時創造出了室內和室外空間品質的多樣性。住宅立麵多處可被開啟,因此建築各麵都變得可以被利用。住宅的設計意圖是使得空間滿足多種特定的情境,於是塑造了一係列特別的關係,空間因此適用於從私密或個人到開放或集體的多種用途。
In the jury\’s own words, “this studio residence has been given an unusual and very personal expression. Its architecture creates a diversity of spatial qualities both indoors and outdoors. Several of the house’s fa?ades can be opened, so that the building becomes useful and usable from all sides. The will to grant the house with multiple specific situations and scenarios?creates a set of unique relations and connections. The spaces thus favor a multi-usage that range from intimate and individual to public and collective usages.
立麵遵循當地規範在外部抹有灰泥,內部也采用了同樣的材質和色彩。室內精製的木頭體量在不同的樓板和分區間創造了視覺和功能上的區別和對比。非常嚴謹而熟練地施工展現了經過深思熟慮的細節。住宅激動人心的觸覺體驗來源於建築師、承包商和客戶之間的積極合作。”
The facade is plastered in accordance with local regulations and the interior is also finished in the same material and colour. In contrast, a refined wooden volume creates visual and functional relationships between the different floors and areas of the building. The details are well-thought out and implemented with great care and skill. The house’s inspiring tactile dimension is a result of an active collaboration between architect, constructor and client.”
評選結果將於3月19日在斯德哥爾摩音樂廳舉辦的晚會上公布。項目此前已在2018年獲得由瑞典工藝設計協會(Svensk Form)頒發的瑞典設計大獎。
The verdict will be delivered on March 19th in Stockholm during a gala evening at the Stockholm Concert Hall. The project previously received the Grand Prize of the Swedish Design Award, awarded in 2018 by the Swedish Society of Crafts and Design (Svensk Form).
∇ 手繪草圖 sketches
完整項目信息
項目名稱:Hamra住宅兼工作室
項目位置:瑞典
項目類型:住宅空間/現代風
完成時間:2017
項目麵積:130平方米
設計公司:Collectif Encore
攝影:Michel Bonvin











































