成為卓越的代名詞。Be a yardstick of quality.
——史蒂夫·喬布斯
無敵海景的激蕩共鳴
「設計最初思考的就是空間與外界環境的關係,以怎樣的形式展開對話。看山望海,被大自然所感染,絕佳的視野至關重要。」設計師如是說。
大麵積的通體落地窗,以最大尺度對灣區進行場景化定格,將絕美風光引入室內,縱目遠觀,獨屬於海邊的愜意感受得以鋪陳抒發。
開敞式的生活起居區功能協調連貫,曲線優美的背景牆作為停頓穿插其中,隔而不斷,避免空間的冗長感,與窗外連綿不絕的海景呼應成趣。
偉大的建築師安東尼·高迪曾言:「大自然是我一生的情人。」深圳31設計延續一貫的環保生態設計理念,尊重環境的本真饋贈,在此展開一場與自然的對話,將綠意巧妙引入高空,營造一處可呼吸的空中花園。
綠色平和豁達,藍色則昭示著純淨與博大,共同傳達生態城市的姿態,流露親近生活又高於生活的理想氣質。
開放式party空間搭配高腳吧台與戶外沙發,別致的吊燈自天花落下,融合奢華與溫馨,延伸出屋頂泳池蕩漾。
室內外邊界被模糊,輕鬆過渡至大自然,一襲碧色於無邊際的海天之間生動渲染,隨光影姿態變幻的景色讓人忘情欣賞,沉浸在度假的怡然氛圍,勾勒出生活的高貴韻味。
眺望煙波浩渺的水岸,船隻的身影渺滄海之一粟,憑窗小酌,不負光陰,享受一份超越物質的情感。
與俄國詩人萊蒙托夫的《帆》再契合不過,「蔚藍的海麵霧靄茫茫,孤獨的帆兒閃著白光,下麵湧著清澈的碧流,上麵灑著金色的陽光……」
自由轉換的靈動優雅
設計師以馳騁的遊艇與海浪翻滾的線條為靈感,室內延續了建築外觀的簡約律動,如潔白純淨的遊艇空間,恒久生輝,不畏時空,以卓越的世界觀駕馭未來。
自然垂懸的水晶吊燈晶瑩璀璨,串聯的圓形彌漫著精妙絕倫的靈動氣息。
為解決空間麵積隨樓層增高而逐漸縮小的挑戰,設計靈活布局,用時尚語彙創造出更為流暢的動線,遊刃有餘,毫無滯澀,透過功能的釋放與變化,表達日常生活的點滴趣味。
設計強調動靜分區,兼顧居家與休閑交融的多維度生活體驗。通透大氣的垂直中空客廳,成為親朋好友創造美好回憶的共同場所。
飽含藝術性的中西廚房、東方基調的茶室、書房與精致考究的視聽室,圍塑出空間適意自在的流動旋律,更描摹出對生活夢想的高品質追求。窗外海景如畫,聚會笑語歡聲,閑坐謐靜輕風,陶情遣興,曠懷達觀。
不規則的家具和藝術品於此巧妙邂逅,在比例、情緒和故事間平衡出了自由生動的韻味,處處貫穿恬逸和諧。
優美的沙發弧線,木質與理石拚接的茶幾構造,搭配浪花般活潑的地毯,色彩跳躍的布藝軟裝從客廳蜿蜒至餐廳,可謂到處皆意境,隨時有物華,為空間增添耐人尋味的藝術內涵,引發海灣生活方式的無限思考與探索。
「海邊的生活,期待的是心靈的放鬆與沉澱,不適合過多的贅述。」設計師說。臥室牆體與地麵保持純淨,180°的海景作為巨幅傑出畫作取代了其餘裝飾。
幾何線紋地毯,抽象藝術掛畫,色澤柔和的定製沙發,無一不透露社會新銳回歸質樸而內蘊深遠的生活追求。
木飾背景牆與皮革床屏組合,訴說著主人低調奢華的個性。高雅大氣的卡其色絲緞與沉穩睿智的藍色飾品,不喧嘩而獨具格調。
浴室線條簡練利落,保持大麵積玻璃窗,強化了場所的穿透感,接受陽光更為純粹的洗禮。
臨窗望海的全景浴缸,領略坐擁港灣的曼妙樂趣。傍晚時分,斜陽餘暉灑入室內,整個空間都被抹上一層黃暈。
潮起潮落,華燈初上,使居者充分體會設計師想要傳遞的閑適心境,盡享生活輕鬆喜悅的美好品味。
源於大自然與藝術的靈感在設計中自如運用,溫潤而凝練地詮釋著三亞特有的美學精神,想象在此得以無盡延伸。林語堂曾說,茶是凡間純潔的象征。
樸素恬淡的茶室空間呈現禪味悠長的溫度。既入此室,均為知己,清茶好水,以適幽趣,「會來攜客試茶甌」的閑情餘緒得到最真實的表露。
承灣居之美,顯山海之韻,對於塔尖人士而言,不止是蘊含智慧的品質環境,更是聚焦幸福的生活方式範本。
飽覽一城璀璨繁華,彙聚浪漫海洋夢想。當微風伴著精致夜色的味覺調製一杯清醇的雞尾酒,所有體會都將入味,化作生活最美的永恒一刻。
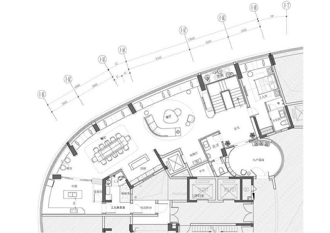
∇ 30層平麵圖
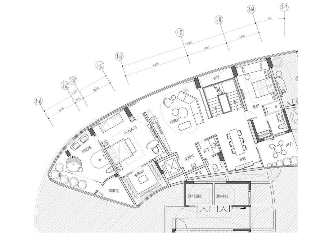
∇ 31層平麵圖
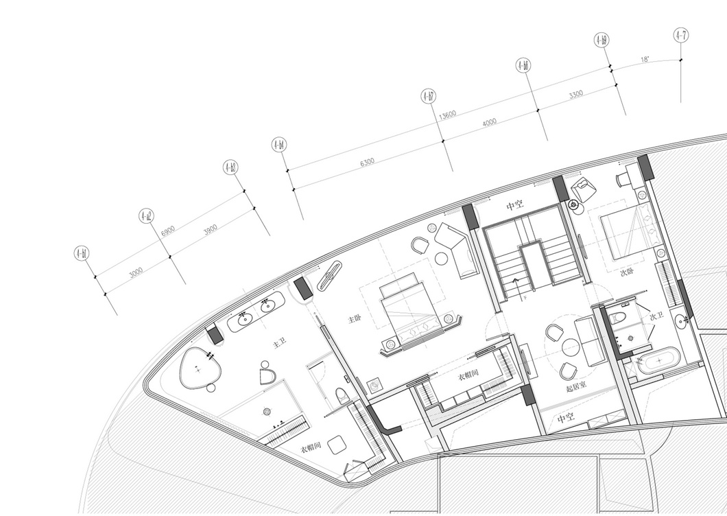
∇ 32層平麵圖
∇ 33層平麵圖
完整項目信息
項目名稱:三亞·天璽頂層豪宅
項目位置:海南,三亞
項目類型:住宅空間/海景豪宅
業主單位:鴻洲集團
項目麵積:900㎡
設計單位:深圳31設計(31 Design)
設計範圍:室內設計、軟裝設計及實施
主創設計:黃濤、李誌宏
設計團隊:曾誌勇、鄒海英、黃錦芹
軟裝團隊:黃江燕、陳曉莉
項目攝影:原子傳媒(視頻)、彥銘(圖片)















































