GSQUARED工作室設計了位於南非的Waterkant聯排別墅,項目靈感來自環境和城市生活。空間滿足對隱私的需求,但仍然能捕捉到城市、港口和山區的景色。
Inspiration was drawn from the context and city living. The needs for privacy but still capturing the views to the city, harbour and mountain.
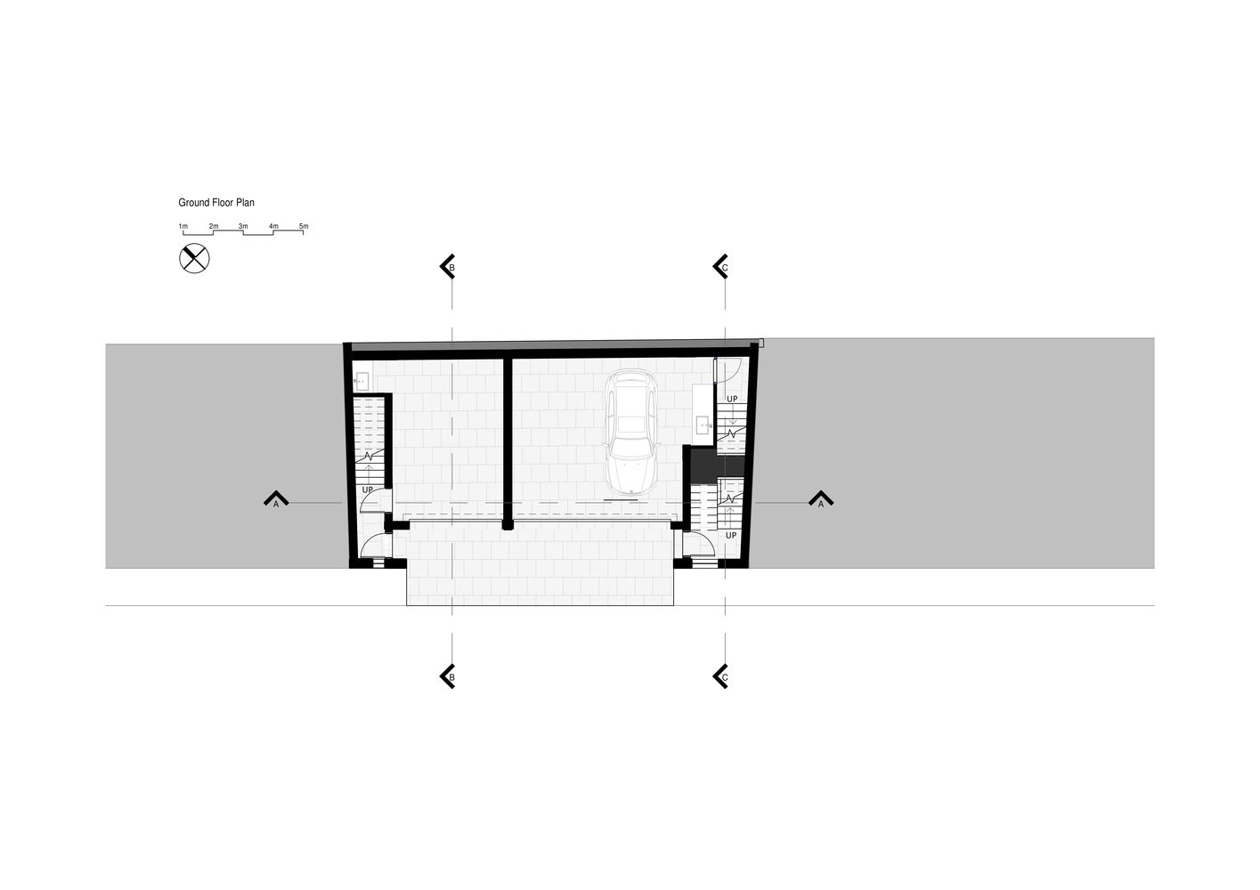
街道邊緣采用堅硬的混凝土結構,為業主提供隱私。街道立麵上精心穿孔的開口允許自然采光和通風。街道邊緣的大窗戶采用定製的金屬屏風,過濾午後的陽光。
The street edge was treated with a hard concrete structure to provide privacy to the owners. Carefully punctured openings on the street façade allowed for natural light and ventilation. The large window on the street edge was screened using a bespoke custom made metal screen, which filters the afternoon sun.
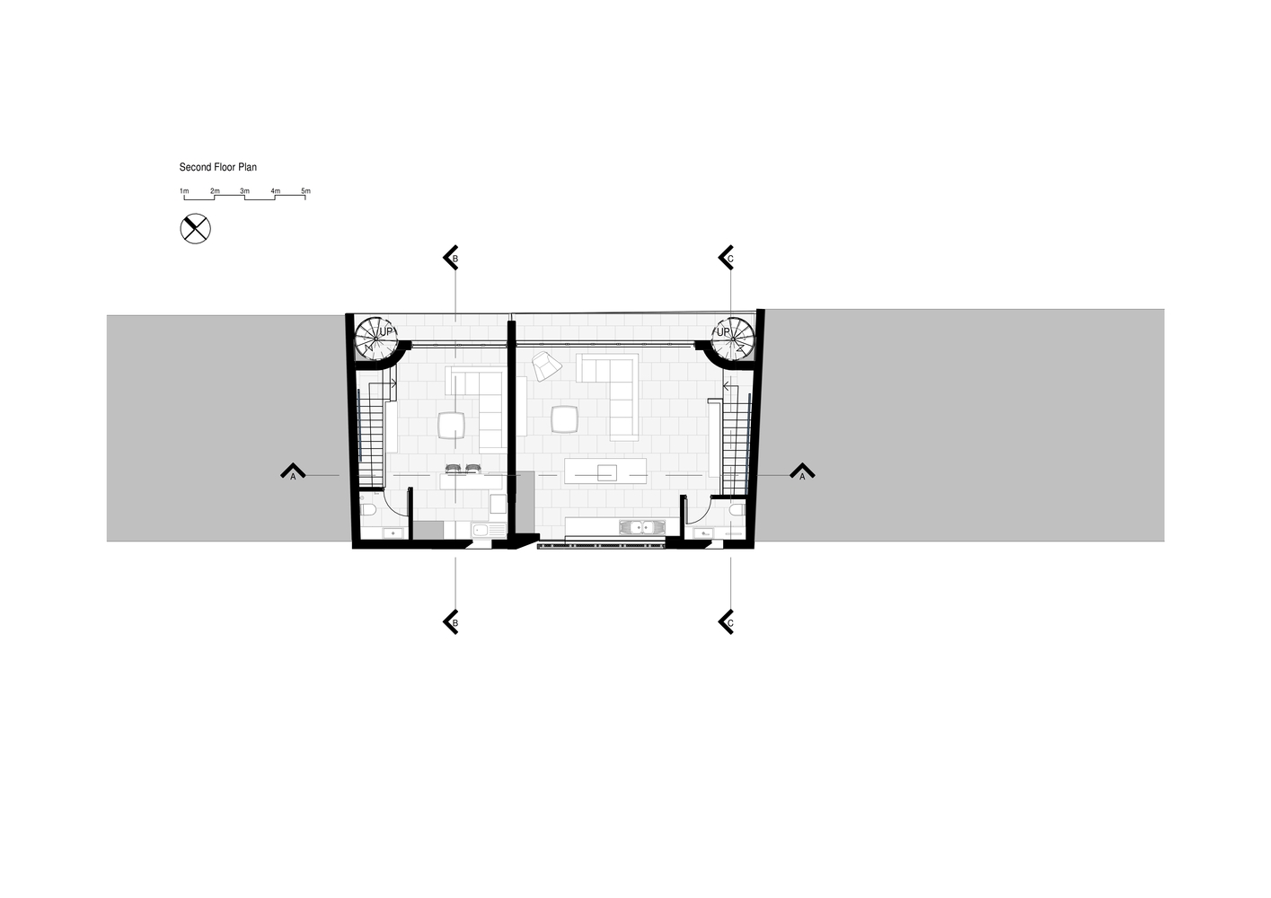
使用黑色、白色和天然木材等對比色使內部保持簡潔和簡約,讓空間產生輕盈明亮的感覺。這種顏色在建築外部和內部都使用。金屬和木材與光滑的抹灰表麵形成鮮明對比,隨著時間的變化,陽光照射在外立麵上,產生獨特的視覺效果。
The use of contrasting colours like black, white and natural timber kept the interior simple and minimalistic, which allowed the space to feel light and bright. This colour pallet was used both externally and internally.Metal and timber with smooth plastered surfaces contrasts as the day changes and the sun shines on the façade.
定製的浮動金屬樓梯產生給人一種輕盈的感覺。定製的鋼網過濾午後的陽光,為客戶提供隱私。特色軌道和聚光燈突出整個建築的內部特征。
The bespoke floating metal stair allows for vertical circulation that is light and unobstructed. A custom made steel screen filters the afternoon sun and provides privacy from the street and the neighbours. Feature track and spotlights were used to highlight architectural and interior features throughout the building.
完整項目信息
項目名稱:Waterkant Townhouse
項目位置:南非
項目類型:住宅空間/別墅設計
完成時間:2018
項目麵積:366平方米
設計公司:GSQUARED
攝影: Niel Vosloo

































評論(0)
您好,想知道樓梯是怎麼固定的