LOFT中國感謝來自 MDO木君建築 的住宅項目案例分享:
郡西雲台位於良渚文化村中心白鶯郡西山脊海拔約43米的製高點,背靠五郎山,內藏五郎山水庫 ,三麵雲山一麵城。在如此秀美景色之下,郡西雲台便坐落在此 ,它的設計理念一脈傳承於良渚博物館“一把玉錐散落地麵”,依山就勢、水物賦形。築一方高處的佳宅 ,半邊是城,半邊是自然。以真質璞無華的精神 ,打造這座城市精妙的山地美學別墅作品。
Junxi Mountain Villa is located in Liangzhu village Cultural Centre, at the highest point of the West Mountain Ridge of Baiyingjun. It is set between the Wulang mountain and Wulangshan reservoir, a beautiful scenery surrounded by mountains. The concept is inspired by the nearby Liangzhu Museum by David Chipperfield, “a jade cone scattered on the ground”. The show apartment offers and elevated living experience located high in its surroundings, partially surrounded by city, and partially immersed in nature. The spirit of untouched nature is key element to create an exquisite mountain villa.
在遠離塵囂的環境中 ,設計師以“自然、城市、山居生活”為概念 ,以生動卻不張揚的語言去探索與自然之間的暖昧關係。利用山地高差 ,全資源設計 ,打造三台庭院、露台、陽台。
In an environment far from the busy lifestyle of the downtown city, the designer explores the ambiguous relationship of “nature, city and mountain life”. Creating a truly contemporary modern home set in an idyllic landscape. The villa is organized around a series of external spaces which connect to the outside, the courtyard, the terrace and the balcony.
住宅總共分為三層 ,根據每個空間朝向與景色的不同,為了讓日常活動與自然達到協調統一, 每個空間被重新賦予了意義 ,使得他們能在“城市山居生活”這個核心概念中充當著合適的角色。
The house is divided into three levels, and each space is given a distinct meaning, in order to let the daily activities harmonize with nature, spaces are designed according to the views and how the sun moves around the house during the day, based on the concept of “Urban Mountain Living”.
主入口被重新安置在基地較高處 ,入戶後直接與戶外的觀景平台相連接 ,這裏被重新定義為家庭聚餐和觀景的核心空間。
The main entrance is relocated to a higher level. In the centre is an external terrace which functions in good weather as an external living room. This space embodies the role the traditional hearth, the gathering space for the family, the space to host guests and share quality family times.
入戶觀景台,俯瞰城市 The outdoor observation terrace overlooks the city
設計整體圍繞著“城市山居生活”的概念展開 ,一層核心空間功能上由中廚 ,西廚與就餐區組成,西廚中島的設計在空間中與中廚相互補充 ,同時為追求生活品質感的使用者提供一個與家人互動拉近距離的平台。
The first floor living and dining room is based on the concept of “Urban Mountain Living”. The space on the first floor is composed of a Chinese kitchen, a western-style kitchen and the dining area. The design of the western kitchen island becomes an informal meeting point, it provides a space for daily interaction, for breakfast with family, to dinner parties with guests.
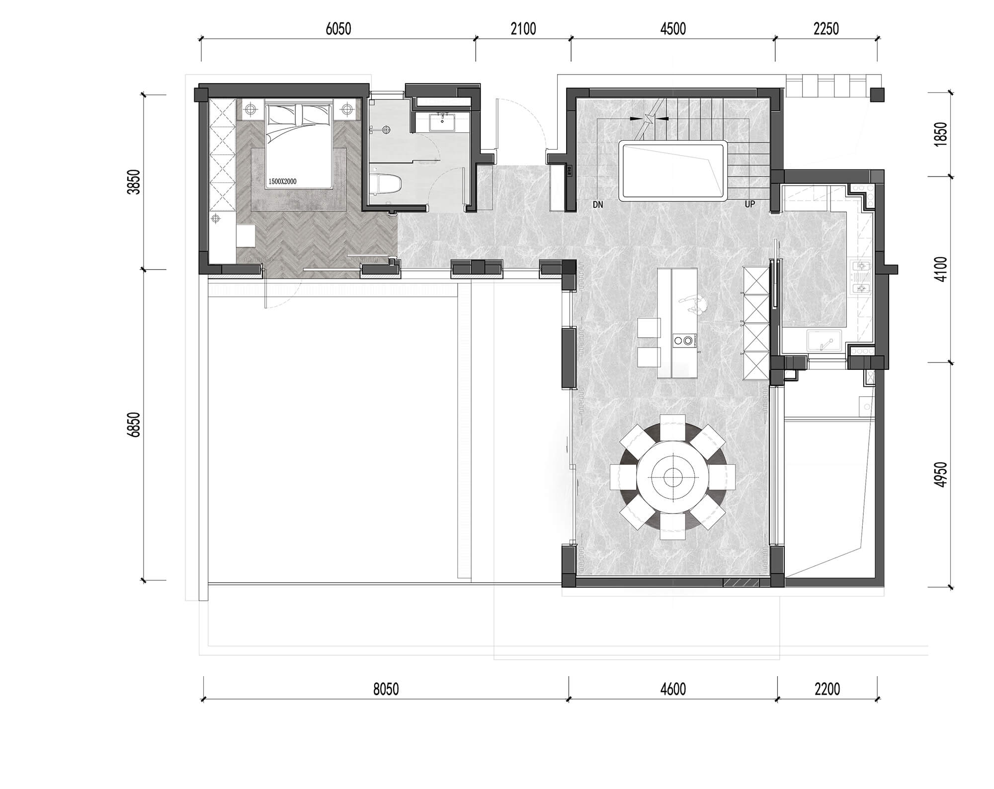
保證視野和豪宅私密性 ,二層核心空間功能上設置主臥、270度陽台和兒童房等。滿足主人的起居功能。
The more private functions are located on the second floor, composed by a main bedroom with a large balcony oriented to the view and a children’s room.
流線型樓梯緩緩步行而下可至標高層空間,步入樓梯區域可以感受到一氣嗬成的整體扶手設計,貫穿整體的設計 ,為雲台“簡潔、自然”的氛圍奠定了基調。會客廳被安置在地勢較高的坡地之上 ,靈活的布局與可分可合的空間隔斷讓起居空間與書房被聯通起來,讓室內活動與戶外庭院連接起來 。
A timber-clad curved staircase gently winds up through the villa, linking each floor with a unique move, like a painter’s stroke. It leads down to the lower level which opens out onto a large sun terrace. At this level are the family living room and study which are designed to be flexible to accommodate different configurations. Both spaces are side lit with full height glass doors which overlook the mountain scenery.
材料選擇上主要遵循著與自然“襯”與“點”的關係,色彩采用了整體且具有豐富變化的暖灰色係,一方麵柔和的色彩為家提供了素雅且溫馨的氛圍,另外色彩與質感統一處理 ,使得室內空間成為環境的背景 ,在讓自然色彩成為了空間的主導。
The selection of the materials includes a palette of calm and rich warm gray tones. The soft colors provide a simple, yet elegant atmosphere for the home. This minimal palette allows the interior space to frame and become a beautiful backdrop to the natural environment; simplicity enhancing the contrasts and colors of the rich landscape.
樓梯空間視線的盡頭再一處由著名建築師Frank Loyd Wright的代表作“Fallingwater”等比縮放模型,賴特的建築作昂充滿著天然氣息和藝術魅力 ,對於材料的內在性能 ,包括形態、紋理 、色澤、等等有著獨特的見解 ,在設計過程中賴特的設計理念啟發著設計師去思考設計的內在因素,力求設計與自然的和諧共鳴。
At the end of the staircase we find an isometric scale model of the “Fallingwater”, a masterpiece of Frank Lloyd Wright. Wright’s architectural work is full of references to nature and man’s relationship to it, and he has unique views on the inherent properties of materials, including shape, texture, color, etc. His inspiration and lessons resonate in the philosophy underlying the whole design, pursuing harmonious relationship between design and nature.
在空間中MDO選用了Michelle McKinney 的作品,群鳥自由的在雲端翱翔 ,向著家的方向。
MDO chose an artwork by the British artist Michelle McKinney. It depicts a flock of birds soaring through the clouds on their journey home. This subject is a fitting addition to the villa which offers its owners a calm home, a countryside retreat from the busy city.
起居室的軟裝有著各自的故事 :曲線優雅的Ribbon Chair與平直通透的窗後空間營造出如畫一般的文人氛圍,Ribbon Chair由法國設計師Pierre Paulin設計於1966年 ,這件幾乎是藝術品一樣的椅子在1968年獲得了AID ( 工業設計協會獎) 的大獎。經過修複後運到上海時椅子線條的流暢度與自然的曲線仍然能夠給收藏者留下舒適的體驗。
The soft furnishing of the living room features the elegantly curved Ribbon Chair which the designers found in an antique store in Bangkok. The chair was designed by the French designer Pierre Paulin in 1966, and the chair won the AID (Association of Industry Design) award in 1968.After careful restoration, the smooth lines and natural curves of the chair provide an elegant centre piece to the living room furnishing.
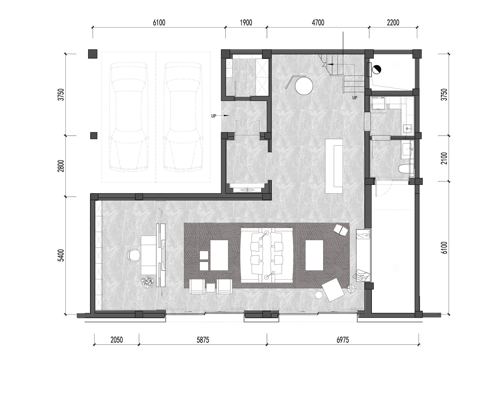
∇ 一層平麵圖
完整項目信息
項目名稱:杭州萬科良渚郡西雲台合院樣板房
項目地點:浙江杭州
項目類型: 住宅
委托單位:杭州林廬房地產開發有限公司
設計單位:木君建築設計谘詢(上海)有限公司 (http://moredesignoffice.com/)
主案設計:徐伩君、橋義(Justin Bridgland)
設計團隊:常笛、闕加成、姚亞彬、李誌恒
軟裝設計:唐豔萍、曾璽錦
項目麵積:324㎡
完工時間:2018年初
攝影師:隋思聰、光影攝影
Project Name: Hangzhou Vanke Liangzhu Junxi Mountain Villa Show Flat
Project Location: Hangzhou, Zhejiang, China
Project Type: Residential project
Client: Hangzhou Lin Lu Real Estate Development Co., Ltd
Design Company: More Design Office (MDO)
Website: http://moredesignoffice.com/
Design Director: Jaycee Chui, Justin Bridgland
Design Team: Di Chang, Jiacheng Que, Yabin Yao, Ziheng Li
Soft Furnishing: Tanping Tang, Xijin Zeng
Project Size: 324 m2
Completion Date: Beginning of the 2018
Photographer: Sicong Sui, Liteshadow studio































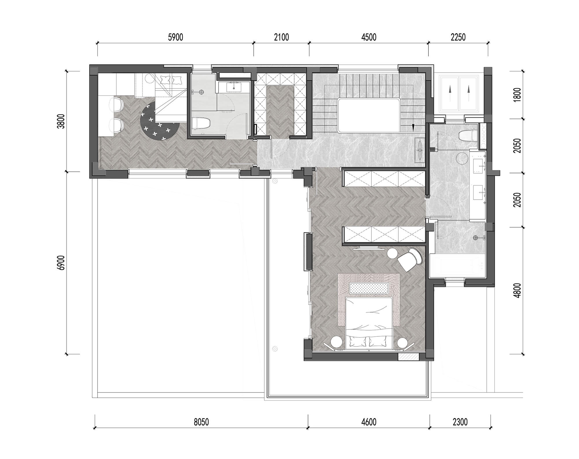
∇ 二層平麵圖
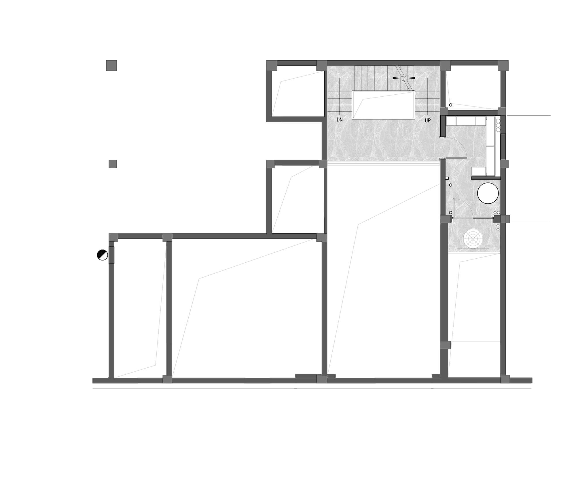
∇ 夾層








