以味、以養,謝培河呈現當代餐飲空間東方美學
AD艾克建築設計打造的玖五京菜杭州城北萬象城店,融合品牌基因自帶的東方典雅與城市的在地人文,猶如自然生長一般,營造日常餐食的儀式感。
設計主創謝培河說:“謙遜與退讓、克製與張揚、當代與煙火,融合與對抗,建築通過這樣的動作完成了與過去、未來與自然的接續,帶給人對於東方文化感的想象,這是我想表達的情緒東方。”
#01 以味,以養
玖五京菜創立於2017年,隸屬於三盛未來公司旗下,是一家以京菜為主,湘菜、粵菜為輔的新時代新派中餐廳。團隊秉承利他之心,工匠人的精神。力求烹飪好每一道菜,味道返本還原。重食材、重口味、重煙火氣。玖五京菜闡述了回味記憶中的味道,延續繼承發揚中國飲食文化。以味為核心,以養為目的,是一家具有中國傳統韻味與當代飲食理念的餐廳。
強大的空間識別度是塑造品牌體驗的有力手段和關鍵因素。餐飲空間作為整體體驗過程的重要組成部分,甚至先於菜品本身,先入為主傳遞著品牌的理念與社會責任。以品牌文化為依托,這時空間的設計表達也就迎刃而解——東方與當代感,以經典而有延續的空間法則來傳遞當代東方美學,是AD艾克建築設計團隊一以貫之的設計策略和迭代實踐。
#02 謙遜與退讓
入口
空間入口位於商場的戶外平台,更好營造空間的街邊商業氛圍,讓二樓的空間植入一種新的錯覺。在原先空蕩冰冷的平台空間插入幾個矮牆,形成新的空間場域與空間溫度,讓客戶還沒進入空間內部就感受到玖五京菜對於自然,文化的傳承與包容。
竹子與矮牆圍合的城市院落,更好地延伸東方人的生活情感;幾何形體建築體塊序列井然,憨態可掬形態各異的石獅寓意吉祥喜慶;入口的窺探由外而內,張弛有度,引人入勝。
廊道
廊道的轉折關係,移步異景,竹子的元素通過玻璃進行延伸,讓用餐的主體空間隱藏於空間內部,遠處的餐廳氛圍讓人產生更加強烈的求知願望,狹小的廊道讓空間產生強烈的神秘色彩,以小見大的空間邏輯,讓空間的窺探感感覺強烈,一種不經意的設計邏輯在空間中不斷的強調與重複,形成了一種隱晦的空間語境。
#03 當代與煙火
大廳
窗外的美景,空氣與偷進來的陽光,在木格柵的作用下,形成了斑駁的光影,讓空間充滿了呼吸感,空間借用自然,在時間的推移中,空間不斷在變化情緒,形成了一個會呼吸的空間。
開放式的中式廚房,傳統烤鴨爐與食材的展示,形成了具有煙火氣息的傳統美食氛圍,空氣中充斥著老北京烤鴨與柴火的味道,仿佛讓時間停留在過去,在當代自然的美景中醞釀著煙火的情感。
包房
東方情緒,向往自然與文化,商場的空間環境讓整體的環境有所缺失,錯位的高牆與植物有效的營造了空間的戶外延伸感,形成了一種正確的錯覺,舊物在空間中以一種低調的姿態,安靜的融入空間中,不爭不搶,與空間、食物等事件互相包容,營造一個友好的空間場域。
AD艾克建築設計團隊打造的中式餐飲,空間培養食客對美食文化的欣賞,就像對其他文化活動的欣賞一樣,為當地和城市孕育了一種身臨其境的熱情好客體驗,同樣引起當地人和遊客的共鳴,進而創造和傳播更多的飲食場景和文化傳承。
#04 融合與對抗
“亂花漸欲迷人眼,淺草才能沒馬蹄。”白翁描繪的杭州自有一種恣肆和雋逸,張岱筆下的杭州也是有詩有酒好不逍遙,當代互聯網經濟的蓬勃發展又彰顯她的新勢能,城市的商業與文化自始至終也並非此消彼長。
日出日落,陽光透過玻璃與空間家具、菜品、材料、色彩和空間裏的人,生發出不同的化學反應,形成事件與情感故事。謝培河在理性商業中融合性情和煙火,讓空間到訪者有回憶有感觸。自有一份寧靜與友好,自有親情與友情,在空間傳遞,交流,共享。
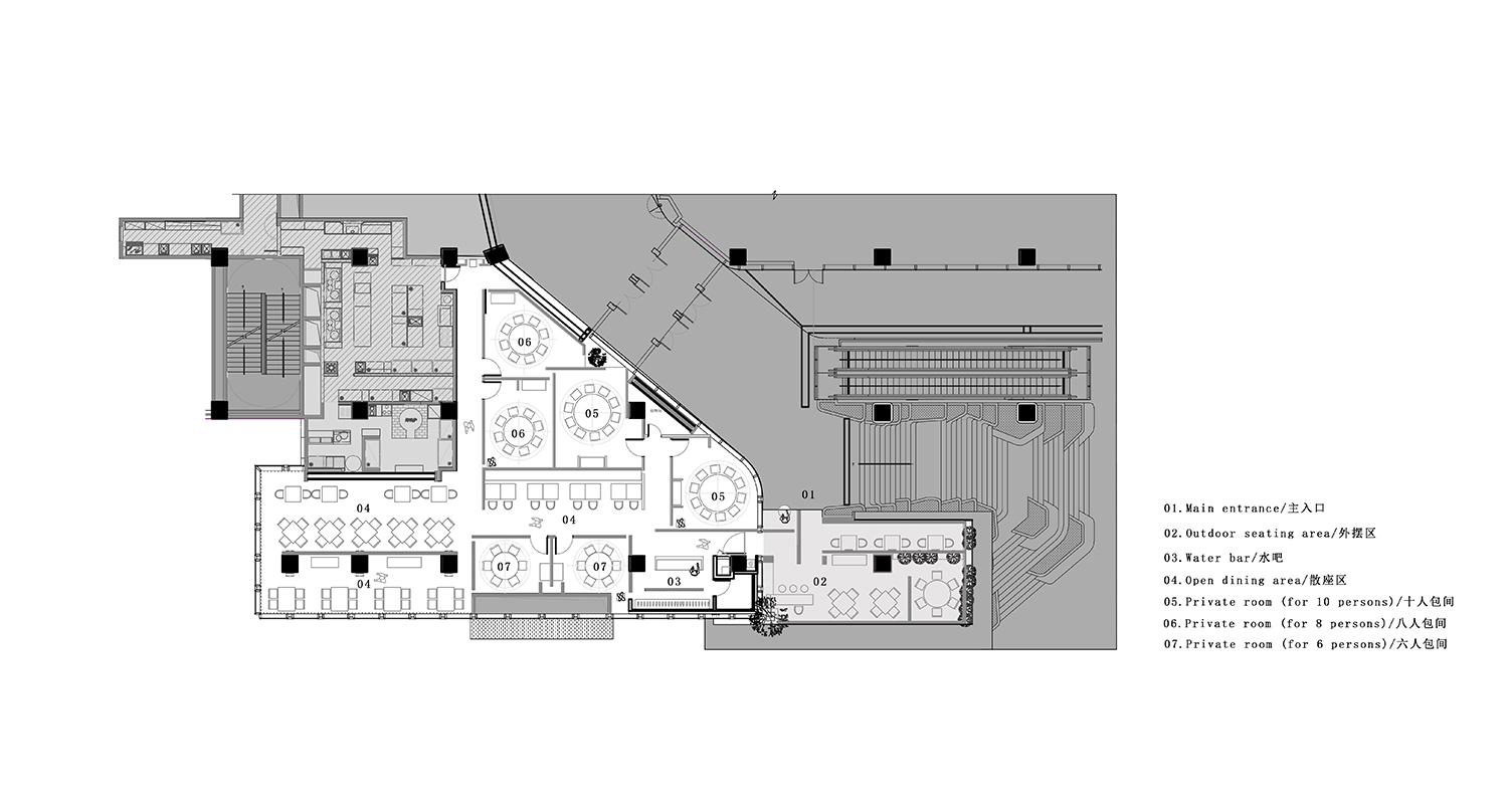
∇ 平麵圖
項目信息
項目名稱:玖五京菜杭州城北萬象城店
項目業主:三盛未來
設計機構:AD ARCHITECTURE|艾克建築設計
總設計師:謝培河
項目地點:杭州
建築麵積:600平方米
主要材料:石材、玻璃、木地板、藝術漆
施工單位:杭州旭昕建築裝飾有限公司
設計時間:2023年8月
竣工時間:2023年11月
項目攝影:歐陽雲













































