取名“Routine”是主理人希望鮮花能成為日常生活的一部分,不是特殊日子的儀式感。花店選址在杭州市拱墅區塘萍路,午後的陽光穿過街邊的法桐枝葉灑在店鋪前麵,光影婆娑。
白日裏隨著太陽位置的變化光影也呈現不同的形狀,為店鋪增添一抹不一樣的時光感。門頭水泥灰藝術塗料從室外到室內,基調幹淨簡潔,其間一抹綠色燈箱,點綴了整個空間。
鮮花陳列區域兩個陳列視角,從入口處分別看到兩個陳列區的視覺遞進,入口陳列區杜邦紙燈箱柔和的光更能襯托出鮮花的色彩。店內頂麵的照明以燈光膜為主,視覺柔和光感充足,中性色溫使得鮮花的色彩更為生動。
店內為主理人設計了休息室,午後休息,日常辦公,帶娃有一個較私密的空間。休息室的入口設計運用解構的手法,體塊感增加空間的豐富性。
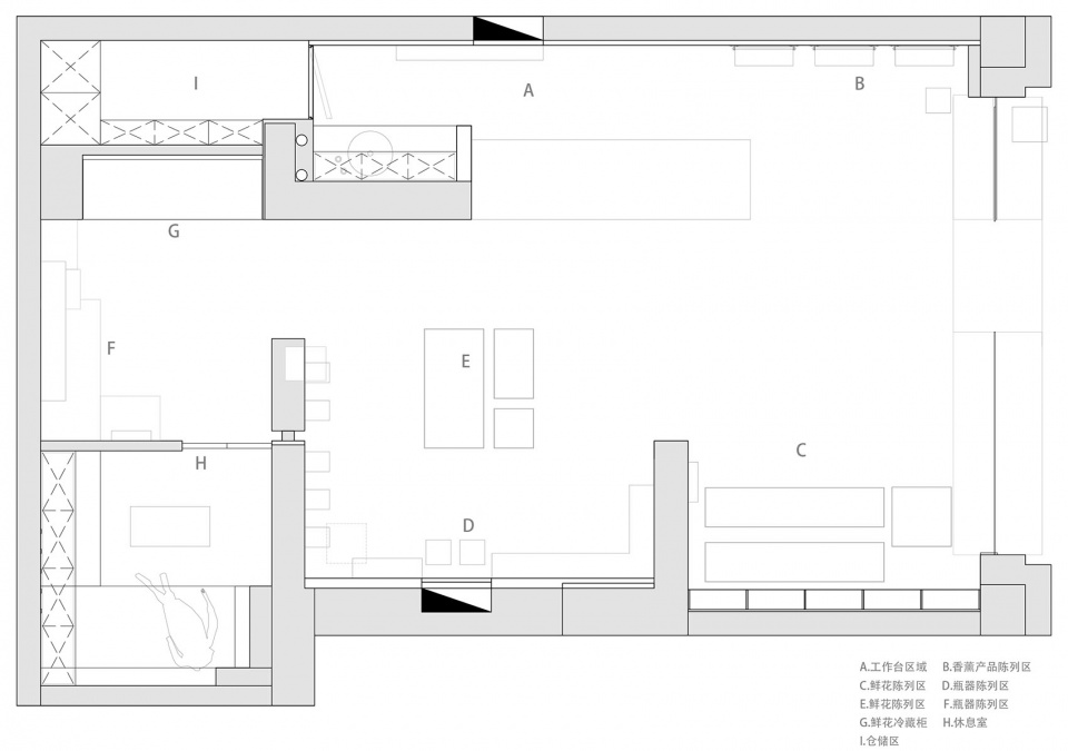
拿到原始結構圖,60m²的店鋪裏麵三麵結構牆,如何利用這三麵結構牆這個是要思考的問題,在設計當中利用這三麵牆分別做了工作台區域和陳列區的功能劃分。
∇ 平麵圖
項目信息
項目名稱:Routine花店
項目類型:花店
設計方:椿山設計工作室
項目設計:郭靜
完成年份:2023.08-2023.10
項目地址:中國杭州
建築麵積:60㎡
攝影版權:瀚墨視覺/張家寧
施工團隊:杭州巨銀裝飾設計有限公司
材料:藝術塗料/不鏽鋼/仿水磨石瓷磚/條形瓷磚
版權聲明:本站所有文章除投稿授權發布外,其他文字內容均為原創,享有著作權保護,未經許可不得以任何形式進行轉載(包括且不限於:媒體、網站、公眾號等)。所有項目照片/設計圖形版權歸原作者所有。本站部分內容源自網絡公開資源或用戶分享,如若侵犯了原作者的合法權益,可聯係我們進行處理。





















