LOFT中國感謝來自 左通右達建築工作室 的建築改造項目案例分享:
這是圍繞一位藝術家的工作需求和生活狀態而設計的建築改造項目,55這個數字對於業主而言代表特殊的意義,所以我們將這個項目命名為Apartment 55(A55)。
This is an architectural renovation project designed for working requirements and living conditions of an artist. We named the project Apartment 55 (A55) because the number 55 has a special meaning to the owner.
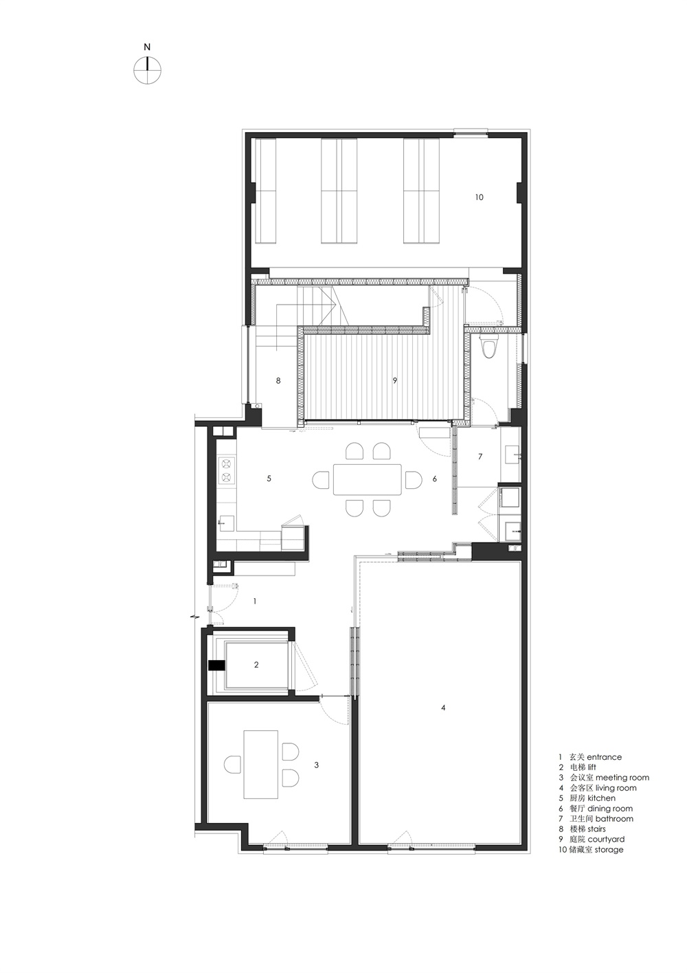
場地位於一棟五層公寓的頂樓,業主希望保留現有露天庭院,同時兼顧工作,會客,展覽,起居等功能。希望營造創作空間的絕對隱私感,對於作畫的位置,光線的角度和視線所及的景象,都需斟酌考量。
The apartment is located on the top floor of a five-story building. The owner wants to keep the existing courtyard and ensure the functions of work, reception, exhibition and daily life at the same time. His studios require an absolute sense of privacy, thus it takes a great amount of consideration about the position of the painting, the angle of the light and the vision of the artist himself.
這個項目的挑戰在於,在原有結構的承載力限定下的騰挪轉移。空間梳理之後我們重新定義了建築和庭院,組織安排了動線和垂直交通。在對整體結構進行了全新的計算之後,新增荷載控製在9噸之內。設計的全新鋼結構被‘綁’在原混凝土框架結構之上,避免對原結構產生負麵影響,並起到一定的圍箍作用。
The biggest challenge of this project is how to renovate and make rooms for all functions within the limits of the carrying capacity of the original structure. After reorganizing the spatial arrangement, we redefined the building and courtyard, and rearranged the horizontal and vertical circulation. The added load is controlled within 9 tons after the latest calculation of the whole structure. The brand-new steel structure is “tied” to the original concrete frame so that it can not only avoid negative impact on the original structure but also play a certain role of enclosure.
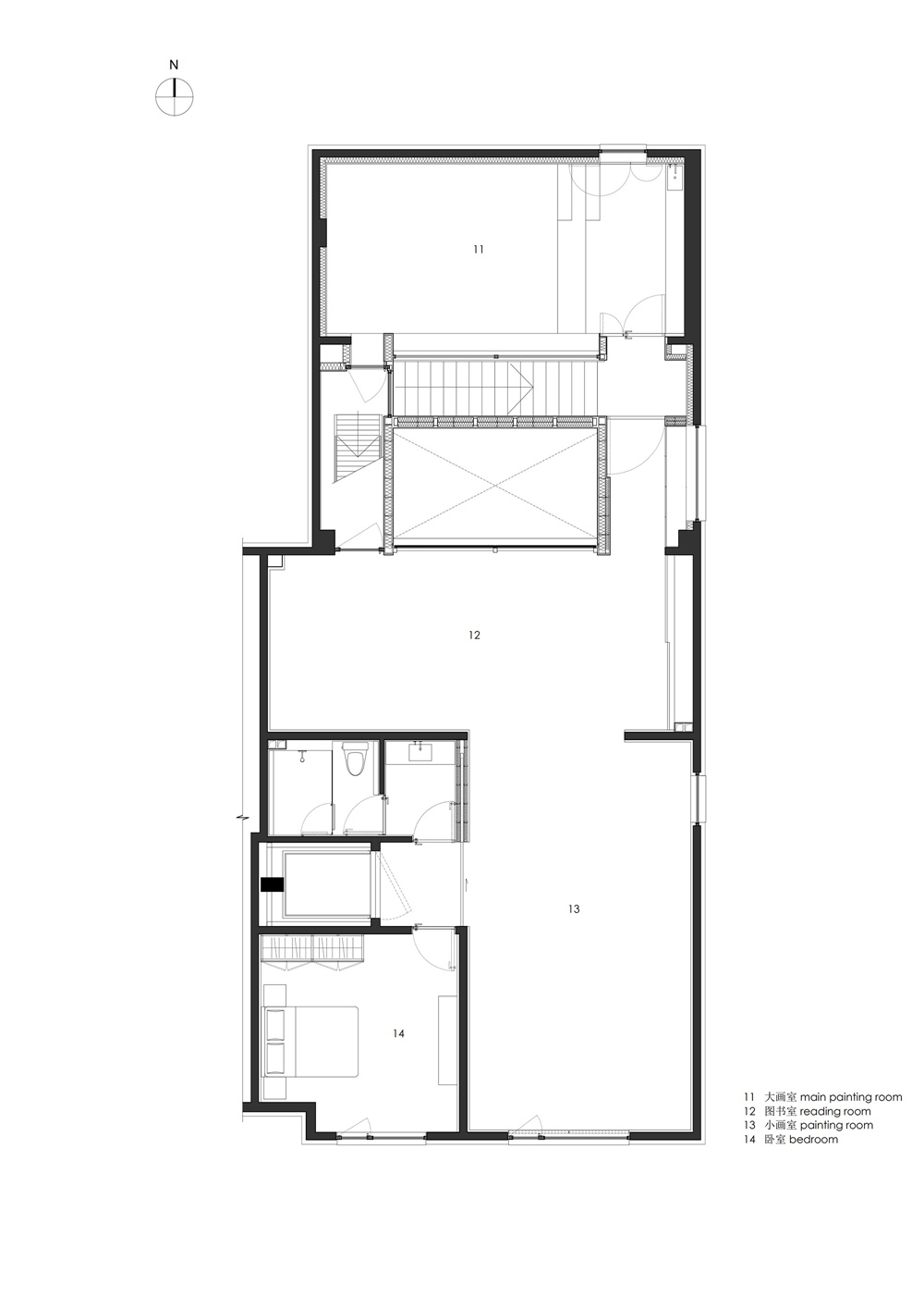
在空間規劃和動線上,是由主入口開始向內延伸的公共區(會客,展覽),向半公共區和私人區域(起居,畫室)過渡。每個空間性質的轉化,通過軌道移門的開啟和關閉,窗的位置和玻璃透明度,結合樓梯和走廊的過渡空間,來引導訪客對於空間的可見和可達性。我們在工作區域為藝術家設計了三個畫室,通過新增鋼結構來控製層高,開窗和房間的尺寸,同時通過自然光和牆壁的反射對畫室光環境的影響,營造了氛圍各不相同的創作空間。
As for the circulation and spatial planning, it starts at the main entrance and goes inward to the public areas (reception room, exhibition room), and transitioning towards the semi-public areas and private areas (living room, studio). In order to provide visibility and accessibility for the visitors, they can experience the transformation of spatial properties through the opening and closing of the sliding doors, the position and transparency of the window, and combining the transitional spaces between the stairs and corridors. We designed three studios for the artist in the working area, and it constructs different creative spaces with various atmosphere by controlling the height through the new steel structure, the position of the window and the size of the room, the effect on the light environment through the reflection between the natural light and wall.
為了增加空間的隱私感,內向庭院中新增建築立麵的幕牆起始標高為5.6米,這意味著首層會客區的視線高度上沒有任何開窗,讓整個庭院成為一個均質的露天展覽空間。立麵背後由隱藏一層通向二層大畫室的樓梯過渡空間,玻璃幕牆結合庭院和天光作為一個自然采光的玻璃盒子,以此來過濾直接進入大畫室的自然光,使得畫室光線更加柔和。天光渲染了由一層公共/半公共空間,過渡向畫室和私人空間的情緒變化和儀式感。
In order to increase the sense of privacy of the space, the new curtain wall starts at 5.6meters at the elevation of inner courtyard, which means that there are no windows at eye level of the reception area on the first floor, making the whole courtyard a homogeneous open-air exhibition space. A staircase leading to the large studio on the second floor is hidden behind the facade as a transitional space. The glass facade combines the courtyard and daylight into a glass box full of natural light, therefore filter the direct sunlight that comes into the large studio, and making the light softer in the meantime. Skylight renders the emotional changes and ritual sense of transition from the public/semi public space on the first floor to studio/private space.
空間氣氛和情緒的過渡,通過材料的顏色,材質和光線混合構成第二次轉化。首層會客區大麵積使用深灰色納米混凝土地麵以及牆麵,手工打磨的顆粒感配合顏色木紋的紋路和光澤,整體壓低會客區的色調,與庭院的淡灰綠色真石漆形成室內外的對比,強調從室外投射進入的自然光給空間帶來的精神體驗。由一層走廊轉向樓梯上二層,空間的色調開始轉淡,淺灰色牆麵和同色木地板,配合天光強化進入私人工作區前的情緒準備。二層整體使用淺灰色納米混凝土地麵和灰白色牆體,落地玻璃幕牆讓光線作為空間唯一的表情,為工作區帶來靜謐和純粹。三層露台可俯瞰大畫室和庭院,夜晚從玻璃幕牆漫射出的光線,作為城市景觀,渲染了整個建築的氣氛。
The mixture of color, material and light, constitutes the second transformation of atmosphere and emotion. A large area of nano-concrete is used on the floor and wall of reception area on the first floor; granular sensation of hand polished surface with texture and gloss of the wood, which is darkening the whole hue of reception area and in contrast to the courtyard with glaucous real stone paint. It emphasizes the spiritual experience brought by the natural light projected from outside. The hue of the space starts to fade once turning from the corridor on the first floor to a stairway leading up to the second. The wall and wooden floor are both light gray, it strengthen emotions with daylight together right before entering the private working zone. Light gray nano-concrete floor and white wall is used for the whole second floor. Daylight comes though the curtain wall and brings serenity and purity to the working area. The large studio and courtyard can be overlooked on the third-floor terrace, with lighting diffusing from the glass facade at night exaggerating the architecture as an urban landscape.
A55從設計到建造完工為期三年,在這個限製條件極其苛刻的項目中,我們嚐試最大限度地為建築空間帶來與功能相宜的變化和節奏,感知和形式,輕盈和沉重,光影和顏色,希望這些交織在一起的綜合體驗,連同業主創造的藝術一起,緩緩降臨。
A55 takes up to three years from design to completion. Limited to the extremely harsh constraints of the project, we try to maximize the change and rhythm of the building in accordance with the function, along with perception and form, lightness and heaviness, light and color. Hopefully, these integrated experiences will slowly coming together with the art created by the owner.
∇ 爆炸分析圖

∇ 功能分區圖

∇ 流線及結構分析圖

∇ 一層平麵圖

∇ 二層平麵圖

∇ 三層平麵圖

∇ 建築立麵圖

∇ 場地剖麵圖

完整項目信息
項目地點:北京
基本功能:住宅/工作室
建築規模:300平方米
建成年份:2019年
室內設計:左通右達建築工作室(www.aboutarch.com)
主創設計師:王旎、張大為
設計團隊:楊樹軍、壽大光、範意任
結構設計:劉粟
施工團隊:大有和誠建築裝飾
主要材料:納米水泥(Soluzioni Microverlay)、家具(CASSINA)
攝影師:孫海霆
Project location: Beijing, China
Functions: Residence/studio
Area: 300 m2
Completion time: 2019
Interior Design: Atelier About Architecture (www.aboutarch.com)
Chief designers: Ni Wang, Dawei Zhang
Interior design team: Shujun Yang, Daguang Shou, Yiren Fan
Structural design: Su Liu
Construction firm: Da You He Cheng Construction & Decoration Co., Ltd.
Main materials: Nano-concrete (Soluzioni Microverlay), Furniture (CASSINA)
Photography: Haiting Sun





























