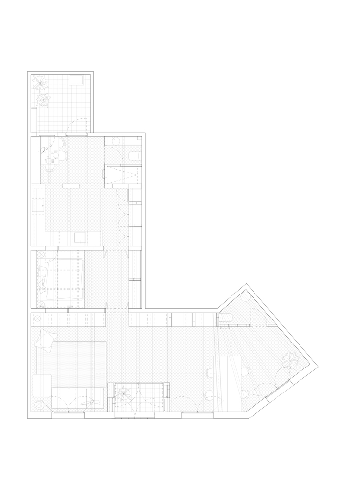
該項目是一個單層房屋的改造,位於西班牙Sants附近。二十世紀建築的倒角幾何形狀得到了充分利用,提供了一個與街道接觸的充足空間,朝向街區內部的開放庭院照亮了更加遮蔽的空間。原有的隔牆被拆除,留下裸露的承重牆結構。
The project in question is a reform of a one-floor house, functioning as a house-workshop, located in the neighbourhood of Sants. The chamfer geometry of the twentieth-century building is taken advantage of, offering an ample space in contact with the street and a more sheltered space lit through a courtyard that opens towards the interior of the block. The original partitions are demolished, leaving the structure of the load-bearing walls exposed.
廚房和房間被放置在建築的承重牆內,而工作室和起居室是開放的,與街道相連。入口從街道開始,通過一個有遮頂的空間朝向室內,起到從公共空間到家庭空間的過渡。采用易安裝、維修費用低的經濟材料。
The kitchen and the room are placed within the building’s load-bearing walls, while the workshop-living room is open and in contact with the street.The access takes place directly from the street, through a covered space that runs towards the interior articulating the transition from the public space to the domestic space. Easily installed economical materials of low maintenance are used.
使用的材料是混凝土、磚塊或瓷磚,鬆木用於水平表麵和建築外殼,浴室和廚房采用瓷磚。垂直的牆壁和天花板被漆成白色,以確保正確的自然采光,並統一不同的紋理,包括預先存在和新的紋理。固定裝置也暴露在外。該項目利用了傳統建築類型的優點來容納一個靈活的家。
The materials being worked with are concrete, either in the form of blocks or pavement tiles, pine wood for the horizontal surfaces and enclosures, and finally ceramic tiles in the bathrooms and the kitchen. The vertical walls and the ceiling are painted white to ensure the correct natural lighting and in order to unify the different textures, both the pre-existing and the new ones. The fixtures remain exposed as well. It is a project that takes advantage of the virtues of a traditional architectural typology to accommodate a flexible home.
完整項目信息
項目名稱:Sants House Workshop
項目位置:西班牙巴塞羅那
項目類型:住宅空間/建築改造
完成時間:2018
項目麵積:90平方米
設計公司:andrea + joan arquitectes
攝影:Joan Martí


























