LOFT中國感謝來自 VMDPE圓道設計 的幼兒園項目案例分享:
如何利用空間解放幼兒天性? How to use space to nourish the (natural) curiosity of young children?
主持設計師程楓祺:“我們希望創造一個在室內空間,卻能打破室內空間常有的規整,有序的有趣的探索空間。靈感來自於小時候對於孩子們的“秘密基地”的想象,像是螞蟻窩在地下的結構一樣,由一個個小路徑聯係著一個個小空間,充滿樂趣。”
Lead designer Vinci Chan: “We hope to create an interior space, but to break something regular, to build an order and interesting interior space for exploration. The inspiration comes from the “secret base” children’s imagination during their childhood days, which is like the structure of ants nest underground, connecting small spaces with small paths and full of fun.”
獅子國際幼兒園項目位於廣州市天河區的一個老社區內,周圍環繞著老式住宅。社區本身缺乏幼兒活動場地,這裏的孩子們急需一個舒適安全的環境來學習與玩樂。項目選址在一個僅有500平方米的老糧倉內,麵對功能、空間與環境的多重矛盾關係,VMDPE圓道設計力圖通過設計,突破周邊環境和建築空間的雙重限製,為老城區內的孩子們創造一個健康、環保的可持續性成長空間。
The Lion International Kindergarten Project is located in an old residential community in the Tianhe District of Guangzhou. Surrounded by old-fashioned houses, the community itself lacks a venue for children’s activities. Children here are in desperate need of a comfortable and safe environment to learn and play.The project sits in an old granary with an area of barely 500sqm, and presents multiple contradictions between functionality, spatial distribution and environment adequacy. Through conscious design, VMPDE breaks away with the restrictions generated by the surrounding areas and the space available, to create a healthy and sustainable environment for children to grow.
作為一個鼓勵幼兒自由探索的教育機構,獅子國際幼兒園遵循STEAM教育理念,即“科學,技術,工程,藝術,數學”多科學融合。教育理念與國際接軌,注重幼兒的全麵協調能力發展,引領幼兒在自由探索的環境下,通過身體力行,培養自己的觀察能力、解決問題的能力、合作能力、思維能力、溝通能力,乃至啟發他們保護環境珍愛生命的社會責任感。基於此,VMDPE圓道設計公司將本案的室內設計與STEAM理念進行了無縫接軌。
Being an educational institution that encourages young children to explore with freedom, Lion International Kindergarten adheres to the STEAM education philosophy, a system based on the objective integration of “science, technology, engineering, art and mathematics”. Such educational concept is in line with international standards and focuses on the comprehensive development of coordination abilities at a young age. Accordingly, the kindergarten exhorts children to, through physical effort in a free environment, develop observation skills, problem-solving skills, communication abilities, thinking abilities and cooperation skills, all by themselves, further inspiring them to protect the environment and to cherish social responsibility. VMDPE designed the interiors of the project to seamlessly integrate with the STEAM concept.
拓展空間形態層級 Expansion of the hierarchy of space
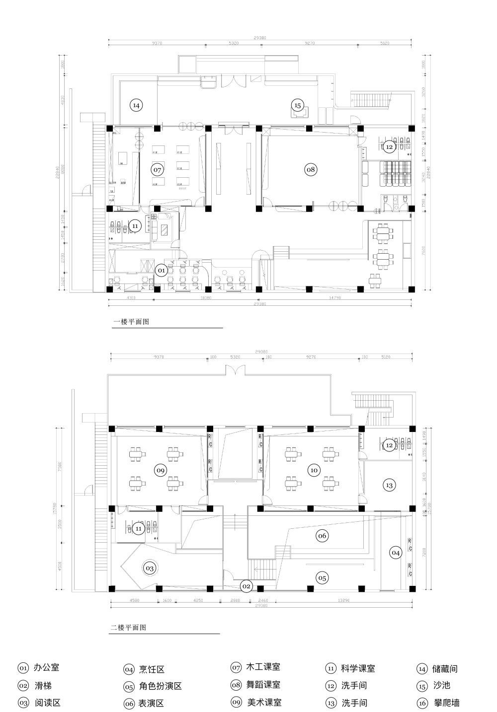
項目改造前是一個老舊的倉庫,麵積不大挑高近7米,存在單側空間開窗狹窄采光不足的問題。出於對兒童身體和心理健康的考慮,圓道設計決定揚長避短構建空間的大體格局——將空間分成兩部分,前側安排為課室,保證充沛的陽光;後側將原有開窗擴大,增加透光度,依靠空間的層高優勢,利用貫穿空間的大樓梯,劃分出更多可以用來發展兒童天性的自由探索空間。
The site for the project was an old warehouse less than 7m high, with very confined areas, and a problematic narrow side that limited space to open windows and caused the obstruction of natural light. Concerned about the physical and mental health of children, VMDPE decided to extend the general pattern of the available space by dividing the area in two: the front side, arranged as a classroom with plenty of sunshine; and the rear side, an integral space with extended windows to increase the amount of light in the room. Taking advantage of the building’s height and the large staircase on the interior, more spaces were created for the children to explore and fully develop their nature.
為了與國際教學標準結合,前側課室分為上下兩層:一樓設置木工課室和舞蹈課室,二樓設置美術課室和科學課室。通過合理的學習分區、多樣化的師幼互動突出STEAM多學科綜合教育的概念。後側的自由探索空間通過空間內的主樓梯,將滑梯、兒童閱讀平台、開放式兒童烹飪教室及角色扮演區等分段式穿插在空間內。
Following international education standards, the front was divided into two levels: the first floor, which holds carpentry and dance classrooms; and the second floor, which houses art and science classrooms. Such logical partitions highlight different interaction areas according to the concept of STEAM’s multidisciplinary integrated education. Furthermore, the rear side of the building was transformed into a free exploration space containing the main stairs, a slide, reading stations, an open cooking classroom, a role playing area among other segmented and intersected areas.
同時,一樓課室的門在打開後營造出一個可以組織小型演出或集體活動的戶外空間。通過對空間區角的靈活化使用,在功能上對不同空間進行定位,豐富幼兒教育空間的教學內容,圓道設計在本案中的設計徹底彌補了中國國內幼兒教育空間一直以來功能性不明確且存在缺失的特點。豐富的室內活動區域,不僅可以誘發兒童的探索心理,也讓他們可以自由選擇,根據自己的興趣愛好進行主觀探索。
Moreover, the door on the first floor opens to create an area useful for small shows or outdoor group activities. The design of flexible spaces grants specific functionality to determined areas when needed, thus enriching the educational content available during early childhood. This case in particular was completely designed to improve the concept of early childhood education spaces in China which often lack specific features or clear functionality. Rich indoor activity areas not only help to induce the desire to explore, but also grant children freedom of choice, promoting subjective exploration based on their own hobbies.
可持續設計模塊化 Sustainable design modularity
項目在設計上以原木色為主,用簡單樸實的設計向孩子們展示出設計師和教育者的可持續性環保理念。由於圓道設計專業從事幼兒教育空間的設計,因此格外注重空間的環保性和安全性,采用模塊化的設計方法是有效達到這一目的的手段。空間內所有的產品經過場外模塊設計生產後,再在現場進行拚裝組合,從而減少對場地的汙染,降低對孩子的二次傷害,真正實現設計的可持續性目的。
The project mainly portrays natural wood colors in an honest, straightforward design that teaches children the importance of environmental sustainability, as it is promoted by both their educators and the design firm. VMDPE specializes in the design of educational spaces for children, with particular attention to safety and environmental protection, through the use of carefully planned modular strategies. To this end, all components are produced off-site. Only final assembly takes place in the building, reducing pollutants and achieving the sustainability goals of the design.
圓道設計認為,模塊化設計手段可以有效控製設計和生產成本,通過定位空間的功能性,針對性地生產相關模塊,在設計之初就可以大體給甲方提供整個設計投資做出預算。雖然該項目處於中國的一線城市,但這種成本適中、健康可持續的模塊化設計對中國的二三線城市的教育空間市場而言具有很強的實用性和適用性。
VMDPE implements a modular approach to efficiently control both the design process and production costs. By allocating functionality of space, the production of related modules can be targeted at the start of the design phase, allowing the definition of an accurate budget for the entire project. VMDPE’s modular design approach features first-class, healthy and sustainable environments, and even though the project is based in a first-tier city, the cost is moderate and fully complies with the requirements of most educational systems for children in China, including operation and development needs. This approach is particularly suitable for high-end brands and chain kindergartens, and also provides guidance to the educational space design market of second and third tier cities in China.
兒童尺度精準細節化 Environment (and details) scaled for young children
在項目的細節處理上,設計師選擇對幼兒友好觸感的建材,家具根據各年齡層兒童的身高訂製尺寸,空間內所有的電源插座與開關的設計也都定位在兒童接觸不到的高度。對於中國幼兒教育場地一直缺失的戶外使用空間,圓道設計也將室外不大的庭院功能化,以擴充孩子的活動區間。考慮到水、沙、石是幼兒最喜歡的自然元素,因此在戶外設計了沙池和攀岩牆,這種設計可以迎合不同年齡段孩子的成長需求。獅子國際幼兒園項目充分體現了對幼兒發展和使用的思考與設計,打造國際化幼兒教育成長空間的設計核心。
The designer selected children friendly materials for every detail of the project. Furniture is custom-made according to the height of every age group. Power outlets and switches are positioned at heights that children cannot reach. VMDPE even provides a solution for the lack of outdoor spaces in children’s educational institutions, by expanding functions of the originally small courtyard.Taking into account that water, sand and stone are the natural elements that children like most, a sand pool and a climbing wall were designed outside the building. This caters to the growing needs of children of different ages. The Lion International Kindergarten Project truly embodies the development of young children. Through rationality and thoughtful design, the core of an international educational space for children’s development has been achieved.
隨著近年來中國對幼兒教育的注重,圓道設計專業地做出了一個回應場地條件局限並符合品牌方國際化教育理念的幼兒園,它被寄望成為社區服務的一部分,以安全、健康、可持續為宗旨實現其社會職能。
With vast experience on early childhood education in China, VMDPE professionally solved the site’s limitations, allowing the kindergarten to meet the educational philosophy of the international brand. The kindergarten is expected to achieve its social functions in a safe, healthy and sustainable environment.
完整項目信息
項目名稱:廣州獅子國際幼兒園
項目地點:中國廣州天河區員村507創意園
設計公司:VMDPE圓道設計
設計時間:2018.03 -2018.05
施工時間:2018.05 -2018.09
場地麵積:700m²
建築麵積:500m²
室內麵積:1000m²
項目狀態:已建成
主持設計師:程楓祺
設計團隊:張健,盧育純
項目類型:建築外立麵改造與室內設計、燈光設計、道具設計
建築結構:框架結構
建材及廠家品牌信息
燈光:Philips
地膠:LG
牆麵漆:buoncolor
攝影:半拍攝影
文字:張森文字工作組
Project name: Guangzhou Lion International Kindergarten
Project location: 507 Creative Park, Yuancun Village, Tianhe District, Guangzhou, China
Design company: VMDPE
Design date: March – May, 2018
Construction date: May, 2018 – September, 2018
Site area: 700m²
Construction area: 500m²
Indoor area: 1,000m²
Project status: completed
Lead designer: Vinci Chan
Design team: Dio Chang,Lucy Lu
Project type: building façade renovation and interior design, lighting design, prop design
Building structure: frame structure
Information of building materials and manufacturers
Light: Philips
Rubber mats: LG
Wall paint: buoncolor
Photography: Chao Zhang
Text: Sam Zhang





























