LOFT中國感謝來自 序態設計研究室 的住宅項目案例分享:
空間/人/流動性,共同組合成空間的生命氣息。將使用者自身的氣息刻印於空間中,空間與居住者彼此互動關聯,共生共長。
Space, people and mobility combine to breath an air of life into the surroundings. The residence is revived with the owner’s personality, interacting with the occupants for mutual growth.
此項目為臨海改造住宅項目,位於浙江嘉興海鹽,改造後的空間是需要滿足一家四口清雅閑適的居住生活。本身是深受江南傳統文化熏陶成長的家庭。男主人是一位企業家,需要有獨立的辦公空間,女主人需要長時間在家照顧新添加的一位小成員之餘,生活上也喜歡毛筆字和水墨畫,空閑之餘偏愛種植花草,希望明亮開闊的視野,考慮到家中的兒女,需考慮其成長空間及學習空間的功能需求。
A renovation project in Linhai, the residence is located in Haiyan, Jiaxing of Zhejiang Province, and is required to satisfy the needs of a family of four who prefer an elegant and leisurely living style. It is a family deeply influenced by traditional culture in the south of the Yangtze River. The male owner is an entrepreneur who needs to have an independent office, and the hostess, who likes practicing calligraphy and ink painting as well as gardening in her spare time, needs to stay at home to take care of a newborn. It is hoped that the design can be space-enhancing with a broad vista, and functional spaces for playing and learning should be considered for the growing children.
空間整體上,客戶希望能滿足小朋友成長生活之餘,運用傳統江南元素表達空間。東方文化中,山水作為理念的首選,它既有具象的依托,也包含虛無境界,貫穿於哲學,也流於市井。在抽象層次上我們嚐試審視新的一種表達方式。顏色上抽離文人水墨畫作的層次灰,宗教院牆的中央土黃色,空間上借鑒山水疊暈穿插的手法具象表達。
In terms of the space as a whole, the client hopes to apply traditional Chinese elements to its expression. As a nod to the oriental culture, we decided on the mountain and river landscape – commonly known as Shanshui – as the key element in our design concept, due to not only its strong expressiveness and popularity, but also its metaphysical philosophy. Therefore, at the abstract level we attempted a new way of expression, in which the prosaic multi-layered greyness preferred by Chinese literati is mixed up with earthy yellow of the religious courtyard wall, and the elements of mountain and rivers are deployed alternatively to represent the essence of the space.
把原有的整體陽台分割為入口玄關和室外活動景觀,采用定製青磚和發光青磚結合的光影交錯感,增加空間的流動性和層次性。
The original balcony is divided into a porched entrance and an outdoor activity area, fitted with purpose-built luminescent blue bricks for the effect of light and shadow in order to increase the mobility of the structure.
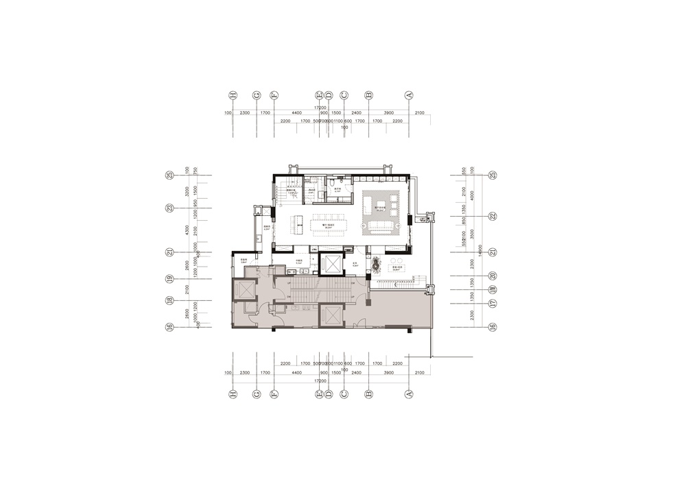
一層我們調整為家庭公共活動區域,為了保證空間和視野的流動性,移動中間的原始樓梯位置,讓廚房,餐廳與客廳活動區最大化串聯起來。樓梯,洗衣房,衛生間附屬空間串聯。增大家庭公共活動區域,最大化的保障室內采光和空氣流通。
The ground floor is redesigned mainly as a public area. In order to ensure the mobility of space and vision, the original staircase in the middle is moved away to reconnect the kitchen, the dining room and the living room. Also annexed are the stairs, laundry and bathroom. In this way, the public area is maximized to ensure abundant indoor lighting and air circulation.
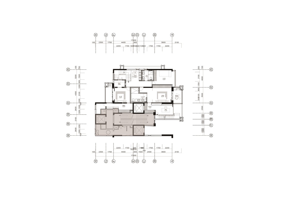
二層移動後的樓梯平台形成走道和開放式的閱讀活動區域,滿足未來兩個小朋友成長的互動性。一層陽台新增挑空書房空間,在滿足男主人獨立書房的同時,形成空間的錯層性。底部半開放區域為開敞性茶室。
On the upper floor, the moved staircase forms a walkway and an open reading area to meet the interactive needs of the two children in the future. Meanwhile, to the balcony on the first floor is added a new study, which satisfies the need of the male owner and gives the room a touch of desirable disorder. On the bottom the semi-open area serves as an open tearoom.
在抽象到具象之間的過程,我們一直希望轉換和借鑒的是山水中至剛至柔,忽高忽低,或動或靜。轉換在人與人,人與環境是曉分寸,懂張弛,明呼吸。人造環境/自然/人彼此相互交融,相互影響。
In this design imbued with both abstraction and imagery, we hope to reference and make a feature of Shanshui, its power and softness, its peaks and troughs, its flows and serenity. The conversion is realized through personal interactions and those between people and their surrounds. As a result, the designed environment, nature and people blend with and influence each other.
陽光灑落,在嫋嫋茶香中,縈繞著孩子們的嬉鬧聲,母親的小聲責備,以及父親的維護。我們希望通過空間來記錄生活的情緒,在細微中發現生活的美好,賦予生活的反饋。
Imagine the scene: in the bright sunlight and aroma of brewing tea, the children are frolicking, the mother tenderly reproaching and the indulgent father defending. We hope the space can record the emotions of life and help people to discover the subtle beauty of everyday living.
∇ 1F分析圖
∇ 1層設計平麵圖
∇ 2F分析圖
∇ 2層設計平麵圖
完整項目信息
設計內容:室內+建築
規模麵積:300平米,景觀50平米
設計時間:2016.03—2016.06
施工時間:2017.07—2018.03
設計單位:序態設計研究室(上海)
設計團隊:楊添堡,王鵬一,鄭喬文,Diamond,羅荊倩
室內及結構施工: 上海睦博裝飾設計工程有限公司
照明供應及顧問:大曄照明
家具:上下,MINOTTI
材料:青磚,發光青磚,芬蘭塗料漆,港基彙瓷磚,硬包布藝,胡桃木皮,黃銅
攝影師:小雲
翻譯:Ellen
聯係:info@xutaidesign.com
Scope: Architecture and interior
Area: 300㎡ Courtyard: 50㎡
Design Time: 2016.03- 2016.06
Construction Time: 2017.07-2018.03
Designer Team: XuTai Design and Research Studio
Architects: Tianbao Yang, PengYi Wang, Diamond, JingQian Luo
Contractor: Shanghai MuBo Design Engineering Co. LTD.
Lighting Supply and Consultant: Daye Lighting
Homeware: SHANGXIA, MINOTTI
Materials: blue bricks, luminous blue bricks, Finnish paint, Hong Kong-based ceramic tiles, hard-coated fabric, walnut skin, brass
Photographer: XuTai Design and Research Studio, Xiao Yun
Translator: Ellen
Contact: info@xutaidesign.com










































評論(1)
很不錯,也展示了一些細節位就是樓梯口位置天花牆身地麵的關係處理有點奇怪