LOFT中國感謝來自 成都震翅SINCE SPACE空間設計有限公司 的商業項目案例分享:
對於商業空間來講,我們經常思考這個空間的真正產品究竟是什麼
For commercial space, we often think about what the real product of this space is.
於當下的這個時代
For this age
咖啡廳的產品是香濃的咖啡嗎。餐廳的產品是美味佳肴嗎。酒吧的產品是酒水嗎。酒店的產品僅僅是一個可以睡眠休息的空間嗎。
Is the product of the coffee shop fragrant coffee? Is the product of the restaurant delicious? Is the product of the bar drinks? Is the hotel’s product just a place to sleep and rest?
如果不是,那應該是什麼
If not, what should it be?
是慵懶而放鬆的空間體驗,是為特定人際關係應運而生的社交場景,還是獨一無二的個人標簽
Is it a lazy and relaxed space experience, a social scene for a particular interpersonal relationship, or a unique personal label?
每個時代都有其獨樹一幟的精神氣韻和生長哲學。產能過剩、物質充裕的當下,剛需正慢慢離我們遠去。取而代之的是能夠滿足精神及文化需求的體驗經濟。如何將觸動人心的空間體驗與商業品牌準確鏈接,成為我們解決問題的首要重心
Each era has its own unique spiritual charm and growth philosophy. Excess capacity and abundant material
Next, just need is slowly away from us. Instead, experience economy can meet the spiritual and cultural needs. How to link the touching space experience with the commercial brand accurately becomes the primary focus of our problem solving.
本案著重將空間識別、色彩識別、材質識別、燈光識別、氣味識別作為品牌識別的重要核心。將空間氣質作為品牌調性的直接呈現。希望給消費者帶來最直接的全身心體驗的同時占領消費者在此品類中的消費心智。
This case focuses on space recognition, color recognition, material identification, lighting recognition, odor recognition as an important core of brand recognition. Take spatial temperament as the direct presentation of brand tonality. Hope to bring consumers the most direct wholehearted experience while occupying the consumer mind in this category.
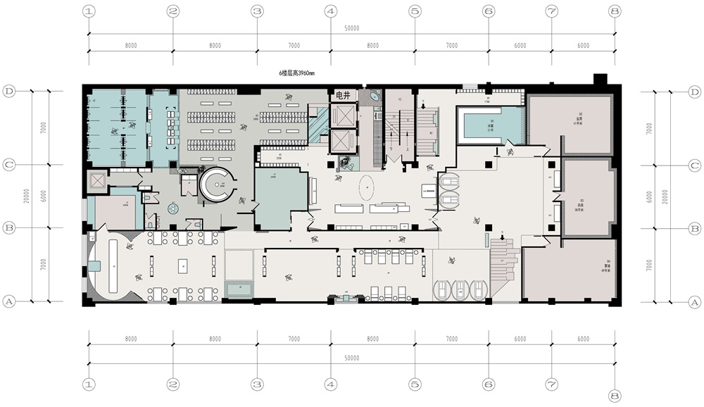
主要項目信息
項目名稱:禦鳴山汗蒸館
項目地址:拉薩市,城關區,當熱路70號
項目麵積:1600㎡
設計公司:成都震翅SINCE SPACE空間設計有限公司
項目類型:汗蒸休閑館




























