有一種信念,無關藝術,
一如花信,滴落心頭。
有一種期許,透過夜色,凝視火流星鬥。
既自我尋覓,又心心相守,烙下印記,還有對先賢的回眸。
—— 胡乾午
“廂式防水牆廊”是長江沿線防洪係統的最後一道關卡,其內部進深8m左右的長條形空間,被鼓勵用做各類商業經營門麵。然而,在我們印象中,這裏更多的是會所、高端餐廳和茶室、豪車4S店,它們與江灘公園上奔跑放風箏、跳廣場舞、遛狗散步的人們,形成了巨大的反差。這次的書店改造,兼具咖啡與展覽,是該段落第一家真正打開大門,歡迎人們自由出入的日常空間。而另一方麵,作為武漢建築師,在江堤上做項目顯得格外有意義,畢竟98年的洪水是我們最重要的童年記憶。
起坡 SLOPE
首要的問題是,作為防洪基礎設施的一部分,這裏每年汛期仍有被淹沒的風險,因此我們的第一個決定就是室內地麵以殘疾人坡道的標準,整體按1:12的斜率找坡,方便淹水後,迅速排出。而這一腳下突發的變化,也試圖起到調整注意力、拉長體驗的效果,讓人不至於覺得這小小的空間3秒鍾就能夠逛完。此外,以600mm為界,其上采用看上去“精貴”的材料,其下采用粗糙耐久的材料,可以泡在水裏,我們甚至期待辦一場打赤腳淌水進去看的“水上藝術展”。
身體 BODY
按最初的設計,我們打算讓居中的咖啡島台延伸至外部,並順勢落下成為一個高背椅,與對麵的長廊形成呼應,充分的整合周邊環境要素,為書店未來的公共活動提供拓展的空間。但江灘物業叫停了這一“占道”行為,我們需要當場修改方案,便畫了個曲線,讓已挑出的部分又落回到紅線之內。而這一偶得的、身體般柔軟的“突出部”,卻在運營過程中顯得十分討喜,來往的人都忍不住去摸一摸、靠一靠。
軸線 AXIS
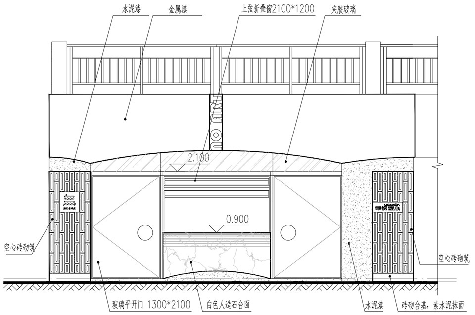
我們熱切的期望用最小的代價,給予這個迷你書店與藝術館一種意料之外的“體麵”。因此決定采用一種端莊的、古典的“正麵性”與“一點透視”構圖。但這個空間有一處先天不足,其正立麵上的兩個柱子(現被空心磚包裹,內為空調機位),與室內空間不對稱。為了調和室內外錯位的兩跟軸線,我們做了一個連續拱的門頭與室內吊頂。試圖讓內部一點透視的空間,從外麵看,不至於歪在一邊,無論看外麵、還是被看,好像都是對稱的。門頭的連續拱,同時也是對“街坊們”的一種尊重:雖然自己希望能做出變化,但在交接處還是回到了和大家統一的高度上。“no art”的招牌被刻意地豎放,讓門頭很“自然”的被分成了兩截兒,以便使用兩塊無縫的整版門頭金屬板。
∇ 場地平麵圖與剖麵圖
∇ 立麵圖
項目信息
項目名稱:無藝術書店
設計單位:青·微舍(武漢)工作室
設計團隊:胡興、劉常明、李哲、餘凱、巢文琦、孟紀宇、宋振旭
建築技術設計:得森設計
竣工時間:2022年5月
項目地址:武漢市江岸區二七江灘
建築麵積 :45㎡
施工團隊:糯米裝飾
業主 :武漢在地文化旅遊發展有限公司
攝影:趙奕龍,畢慧琳,SJ(壹閣&HeyWeGo)

























