LOFT中國感謝來自 五德設計 的住宅項目案例分享:
“THE WHITE HOUSE”坐落於離成都高新區不遠處的地方,風景優美,比較適合度假休閑和常住的環境,我們有意圖打造完全不一樣的住宅空間體驗,去掉繁瑣,化繁為簡,讓使用者把更多的時間花在有意義的地方。
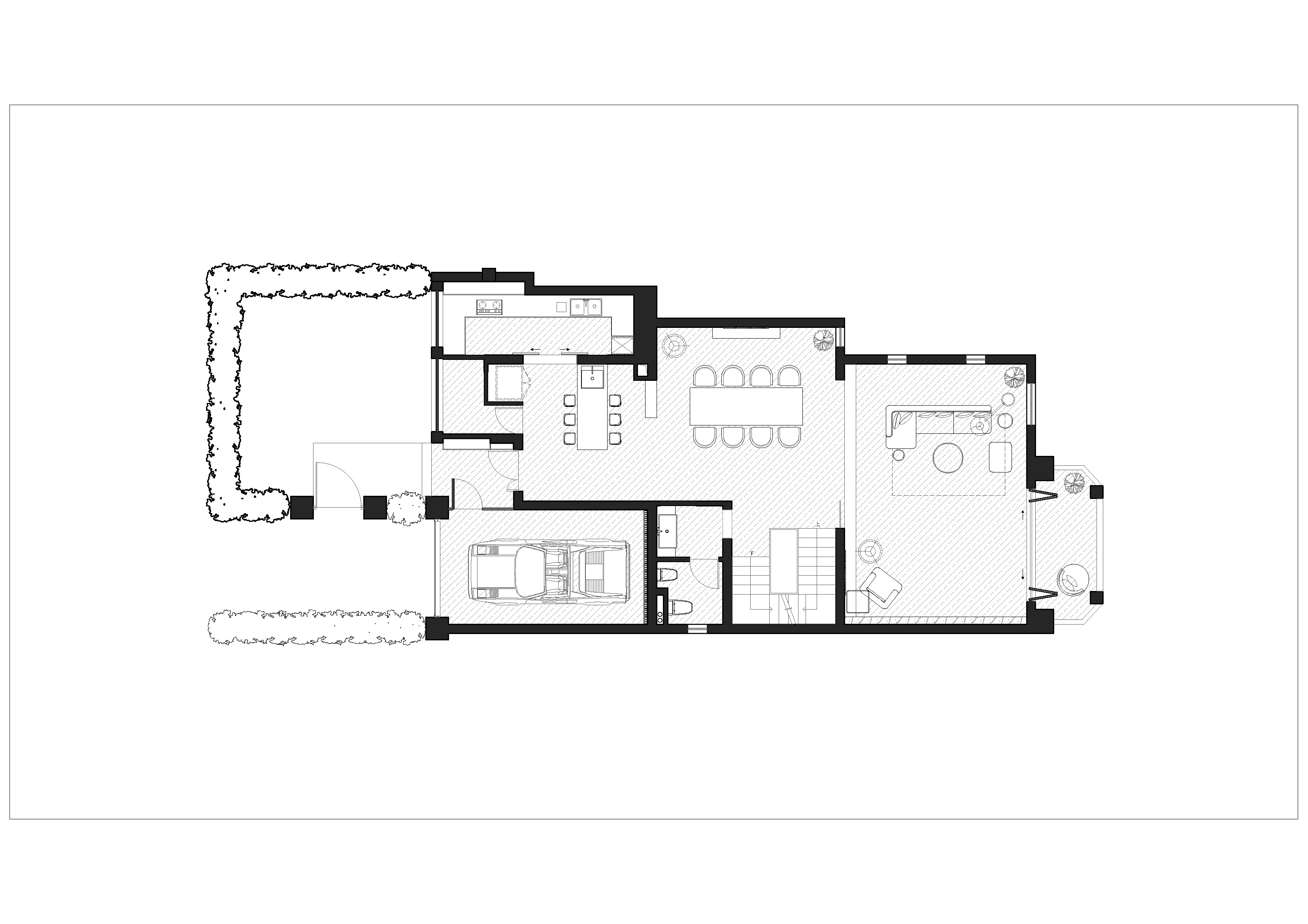
一層空間主要是以活動空間為主的劃分,在原始空間上餐廳和客廳的位置是一種上下層的結構空間,我們保證空間特性,在此基礎上用最極簡的方式銜接兩個空間,用台階+燈帶的效果來營造空間的效果,頂麵局部造型,讓客廳空間更具有空間層次。
在整體色彩上適當的從白色和木色的顏色中有部分的跳躍色,讓空間更有活躍的氣息。
餐廳的空間和吧台空間的劃分上,我們考慮了紅酒架的陳列,但是為了保證空間的通透性,我們考究用方形的元素穿插,用懸掛的方式呈現。
廚房考慮到使用的功能上,廚房玻璃門采用的是雙推拉門,可以做為開放式廚房也可以做為封閉式廚房需求,根據使用者需求進行調整。
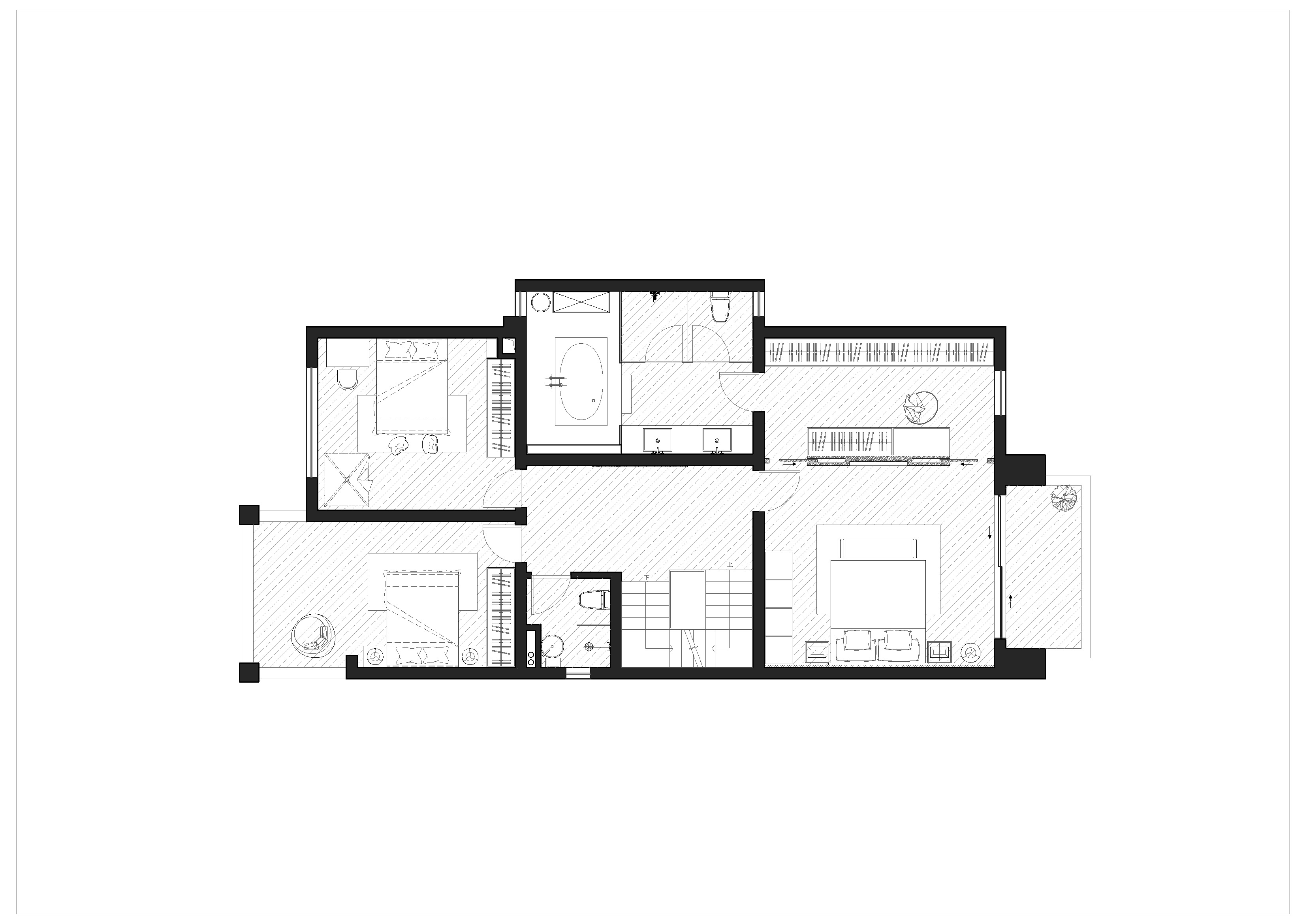
主臥空間一麵是大的落地窗,采光比較充足,主臥去掉奢華的表皮,我們在牆麵運用了分縫的設計,適當讓牆麵有變化。
衣帽間的設計上除去考慮儲藏的功能,同時考慮了化妝台的設計,為了滿足化妝台的使用,在化妝台上設計了一組燈光,滿足使用的需求。
主衛的空間相對比較大,我們在設計上考慮把浴缸、淋浴、馬桶完全分離的設計,燈光上考慮了部分的暖光的設計。
兒童房的設計考慮的是未來孩子成長的過程都可以使用的空間,所以在設計上去掉傳統的色彩和裝飾,讓空間使用的時間更長,兒童房的空間部分考慮的是踏踏米的空間,也可以作為兒童活動的空間。
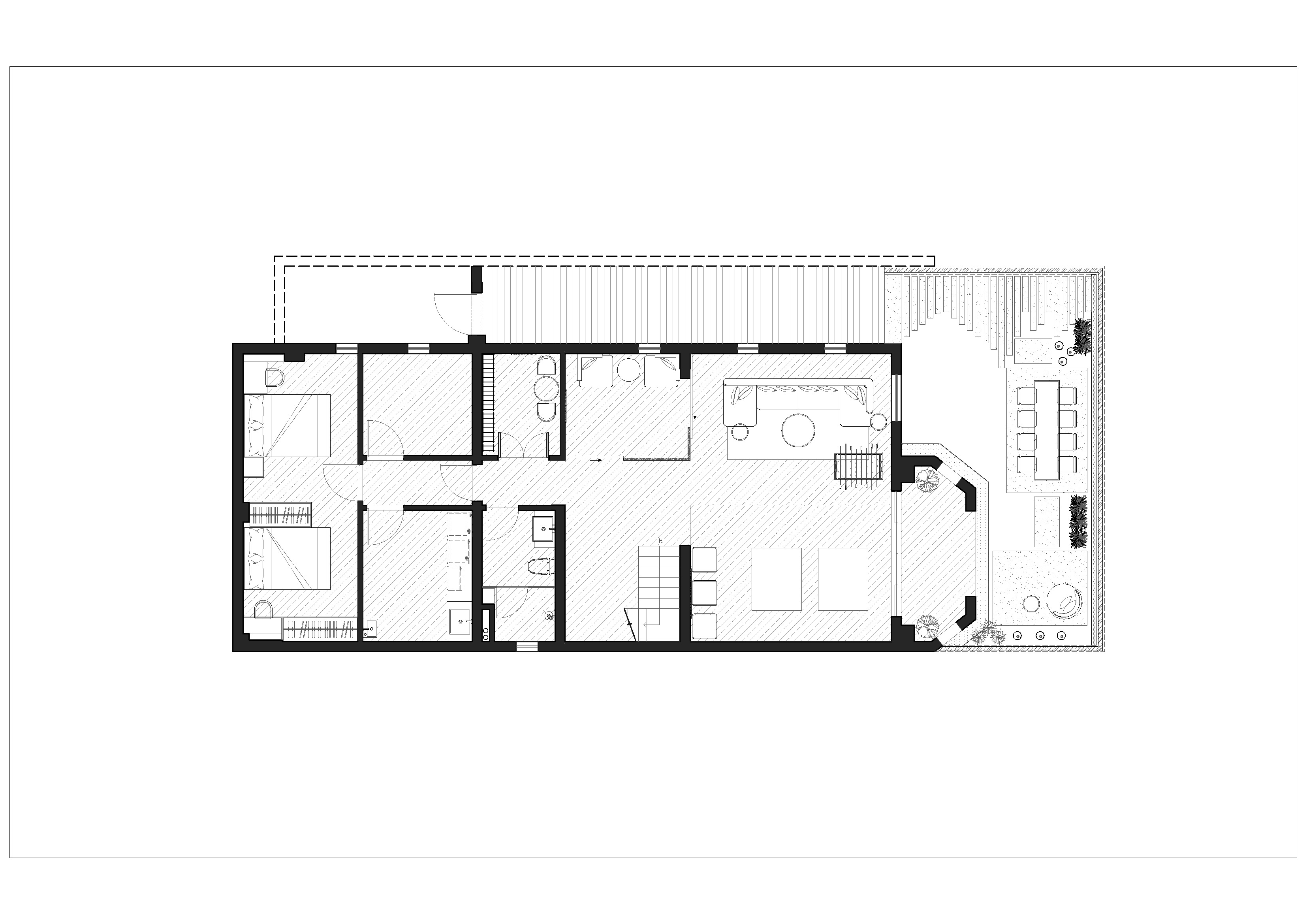
∇ 平麵圖
完整項目信息
項目名稱:THE WHITE HOUSE極簡方式的生活
項目位置:成都市
設計公司:五德設計
主創設計:彭俊傑、伍宛汀
參與設計:陳鵬,毛嘉璐
官網:www.uwoood.com
聯係郵箱:u_woood@126.com
完成年份:2018.3
建築麵積:400平方米
攝影師:海瑞


























