成都艾岜建築設計設計的FOOOO餐廳展現了現代設計與自然寧靜的完美融合。位於繁忙的成都市中心,FOOOO餐廳成為一片寧靜的綠洲。這個餐廳將現代美學與自然相結合,提供一個輕鬆的用餐和休閑體驗 – 這是一個真正的城市喧囂中的避風港。
餐廳坐落在由史蒂文·霍爾設計的標誌性萊佛士城市綜合體內,俯瞰著一個寧靜的池塘。麵朝西方,它欣賞著成都的日落,為整個場所投下溫暖的光芒。
餐廳的設計旨在營造一個讓顧客真正感到舒適的氛圍,讓他們沐浴在大自然的寧靜中。通過裸露的混凝土牆壁、鏽蝕鋼和銅飾品的交織,與木材、竹子細節和豐富的綠植的溫暖相對比,實現了舒適與奢華之間的平衡。
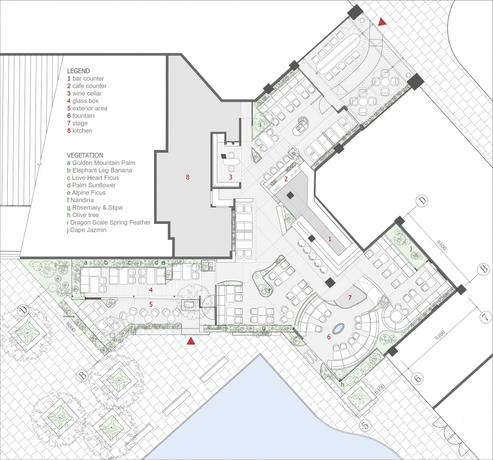
空間在白天是寧靜的咖啡廳和餐廳,夜晚可以無縫過渡變成充滿活力的酒吧。餐廳有兩個入口,一個通向外部水池,另一個通向購物中心的內部。它的獨特不規則形狀由一長中央櫃台固定,將其分為五個不同的區域:
1. 湖畔綠洲:在現有結構中增加了一個玻璃溫室,為顧客提供一年四季被鬱鬱蔥蔥的綠植所環繞的用餐體驗。滑動門將用餐區與室外相連,一個帶有人造天窗的耐候鋼入口,以”淨化”之光歡迎客人。該區域擁有各種植物,包括金黃鳳梨、大象腿香蕉、心葉榕、竹棕櫚和山莖榕樹。
2. 噴泉廣場:座位圍繞中央噴泉呈圓形布置,創造了一個輕鬆的氛圍,流水的輕柔聲音增強了室內的感覺。滑動門將這個空間與湖畔相連,提供露天感覺。一個戰略性布置的舞台確保夜間表演可以從外部公共廣場看到。一個構架的景觀背景突出了兩株傑出的島園木,年齡分別為20年和40年。它們上方的人工天窗增強了從早晨到晚上、從冷白到溫暖黃色的不同光線的戶外感覺。
3. 吧台:在餐廳的中心,一長櫃台既是酒吧,又是咖啡櫃台。把餐廳以前用的金屬網格再利用,變成酒吧背景展示。顧客還可以坐在咖啡櫃台上享受飲品,櫃台上裝飾著成都附近的藏區山區精選的石頭和樹枝,以傳達一種平和舒適的感覺。
4. 大自然的擁抱:在這個區域,顧客被大自然包圍,營造出一種在戶外就餐的感覺。
5. 酒窖:優質葡萄酒以山洞般的空間優雅展示,粗糙的花崗岩飾麵與淡木製架之間形成了獨特的對比。鏡子擴展了空間。
作為翻新項目,為了提高功能性並建立更強的視覺聯係,室內座位與湖泊以及購物中心的內部之間進行了更新。可持續性是關注的重點,許多元素都是從以前的餐廳中再利用的。木質牆板經過精心拆卸並在新設計的不同區域重新利用,展現了原始的混凝土牆壁,賦予了工業時尚的美感。原始天花板保持不變,減少了浪費並節省了成本。現有家具經過更新,通過更換座椅裝飾物煥發了新生命。在無法再利用桌子的情況下,僅保留了桌腿,隻對桌麵進行了更新。
此外,來自以前的服務站的瓶展示金屬框架和餐具隔板被無縫整合到新設計中。功能性和裝飾性照明設備經過深思熟慮地重新利用,添加了全光譜LED植物生長燈,以確保室內植物茂盛生長。
細節經過精心研究,以最大程度地提高顧客的舒適度,稍微降低的桌椅創造了休閑的氛圍。每個座位都提供引人入勝的景色,無論是外部湖泊還是內部景觀。座位本身寬敞舒適,座位墊使用泡沫,背靠墊使用羽毛填充,這些材料不僅令人賞心悅目,觸感舒適,增強了整體的感官體驗。
整個白天和夜晚,FOOOO餐廳提供多種不同的氛圍。白天沐浴在自然光中,在鬱鬱蔥蔥的綠色植物背景下,可以悠閑地用餐和社交。餐廳在夜幕降臨後平穩地過渡為一個優雅的酒吧,擁抱著昏暗、溫馨的照明,創造親切而精致的夜生活氛圍。當夜幕降臨時,餐廳的奇幻魅力覺醒,透過植被中的向上聚光燈投下迷人的影子。
成都艾岜建築設計的FOOOO餐廳展示了現代設計與自然寧靜的無縫融合。它與湖泊的連接以及用餐時提供的舒適感營造出了一種非凡的氛圍,讓繁忙的市民可以沉浸其中,擺脫忙碌的生活。
∇ 平麵圖
項目信息
地點: 人民南路四段3號, 成都
麵積: 510m2
設計師,工地監督: Alba Beroiz
燈光顧問: 周才才, 胡進
景觀設計:聖島植境SanctuaryScapes
攝影: 形在攝影HereSpace








































