LOFT中國感謝來自 平介設計 的改造項目案例分享:
1.臨洱海的婚紗會館緣起 The beginning of the project
當你期待你披上白紗的樣子的時候,你期待的是什麼?沙灘,落日,繁花,還是純淨的愛情裏最美的兩個人?
接到項目邀約的時候,收到業主發來的現場照片,清澈的洱海與壯闊的蒼山橫呈在麵前,足以讓每一個設計師被項目所處的景觀吸引。
Do you have any illusions for the wedding photos? Beach, the fallen sun, the flowering, with happy couple?
When the clients called us and sent the site images: the site faces clean Erhai Lake and beautiful Cangshan mountain, this landscape really attracts designers.
∇ 立麵設計:日景的純粹與夜景的曖昧 FINAL FACADE DESIGN DAY AND NIGHT ©王一翔Yixiang Wang
項目位於大理洱海海東的一個舊住宅區,業主希望通過對原有別墅的改造,打造一個以婚紗攝影為牽引,帶動一係列婚旅消費的商業建築。由於項目遠離古城,業主希望設計區別於常規大理傳統民居式的風格,現代簡約但又不落俗。
The project is located in an old residential area in east side of Erhai Lake, Dali, and the client hopes to create a commercial building that will be driven by wedding photography. Since the project is far from the old town, the client hopes to design a modern style building different from the vernacular architecture.
∇ 原有平麵分析©平介設計Parallect Design
房子原結構地上三層,地下一層後半部分嵌入山體,一層有入戶庭院,二層二層以上有海景,三層有景觀露台。整個住宅區內的建築風格較為淩亂,沿街可見白族式的屋簷、現代的大開窗,傳統中式坡頂等各種風格的元素。
The original layout of the house is a three stories building with one underground floor embedded in the mountain, the first floor has a terrace, the second floor have lake views, and the third floor has a big terrace facing the lake. The architectural style of the entire residential area is rather messy. There are various styles of elements such as traditional eaves, modern large open windows, and traditional sloping roofs.
∇ 建築原狀 ORIGINAL SITUATION ©平介設計Parallect Design

在項目邀約之前,業主已經找當地裝修公司做了一輪設計並進行部分實施。原裝修公司的平麵有很多問題:流線混亂、功能布置不合理。室內采用複古宮廷風,與業主想要的現代極簡風格相悖,再加上工人施工粗糙,許多施工問題都在初次踏勘時候被發現(樓頂防水層被膨脹螺栓打穿,室內門洞高度不一致等)。擁有海外背景的業主希望對整個室內進行重新設計和改造,同時希望對立麵和室外空間也進行重新優化利用。由於現有施工已經投入不少資金,業主希望對現有情況進行合理評估之後在保證設計效果的同時有效利用現有資源進行重新改造(保留樓梯已鋪設的昂貴石材,保留重新安裝的雙層玻璃等)。整個設計需要滿足婚紗攝影的接待,婚紗的展陳,婚紗照的拍攝,四對新人的住宿和起居,工作人員的工作空間等各項功能要求。
Before the designers were invited, the client had already done a round of design and partial implementation by local company, which caused many issues: the functional layout is not is unreasonable for the wedding photograph. The interior adopts the retro palace style, which is contrary to the modern minimalist style that the owner wants. In addition, the construction quality is rough, and many construction problems are discovered during the initial survey (the waterproof layer of the roof is pierced by the expansion bolts, and the height of the interior door is inconsistent, etc. ). Client with oversea background wants to redesign and renovate the entire interior, and hope to re-optimize the facade and outdoor space. Since the existing construction has already invested a lot of money, the owner hopes to make a reasonable assessment of the existing situation and then use the existing resources while ensuring the design effect (retaining the expensive stone that has been laid on the stairs, retaining the installed double glazing, etc). The entire design needs to meet the requirements of wedding photography, the exhibition of wedding dresses, the shooting of wedding photos in various spaces, the accommodation and living rooms for four new couples, the staff office and other related functions.
於是設計團隊開始反思:傳統的婚紗攝影印象中總是盛大的場麵,堆砌式的布景常常會讓我們忘記主角到底是新人還是景色。基於業主的需求重新定義一種婚紗攝影工作室,成了我們最初的目標,要幹淨利落,成為襯托新人最好的背景。
So the design team began to think: the traditional wedding photography normally comes with a grand scene, the complicated scenery often makes us forget whether the protagonists are couple or a scene. Redefining a wedding photography studio based on the needs of the owners has become our initial goal, to be clean and simple, and to be a backdrop for couples.
2.業態、功能的複合性與統一性:洱海、婚紗與民宿
隨著當代年輕人對消費生活品質追求的不斷提高,作為結婚消費重點之一的婚紗攝影在國內開始了規模化的發展。然而現有的該類建築與室內空間,卻誤入歧途的采用裝飾化的場景並堆積大量直白的“富貴”符號,僅將室內空間局限於想盡辦法創造一種假象,忽略了情侶自然、真實的狀態與拍攝過程中的有趣體驗。不知是出於什麼原因,此類基於婚禮相關的最有儀式感需求的設計,竟然很少被真正的思考與設計過。
Complexity and unity of program and function: Erhai Lake landscape, wedding shooting and homestay
With the contemporary young people’s improvement of consumption quality, wedding photography, which is one of the key points of marriage consumption, has begun to develop in China. However, the current buildings and interior spaces for this function are misleadingly adopting decorative scenes and accumulating a large number of straightforward “rich” symbols. They only mimic the space to create an illusion, ignoring the couple ‘s experience. I don’t know for what reason, such a wedding-related design with the most ceremonial needs is rarely really thought and designed.
∇ 展示區與選片區EXHIBITION AREA ©王一翔Yixiang Wang
這個項目有三個需要重點應對的問題:洱海的旅拍風景資源,婚紗的展陳與拍攝,還有給新人提供不一樣體驗的民宿。三個條件看似毫無關聯又息息相關。業主在選擇這個位置時已經考慮了與各旅拍點的距離,攝影師可以開車在半小時內到達洱海邊各旅拍點。同時現有建築麵朝海西,全天有陽光,在滿足室內棚拍的同時也能滿足不同時段的洱海海景拍攝。
There are three major issues to be addressed in this project: the scenic resources of erhai lake, the exhibition and shooting of wedding dresses, and the homestay for new couples with different experiences. When choosing this location, the owner has taken into account the distance from the shooting points in Dali. The photographer can drive to the shooting points around erhai lake in half an hour. At the same time, the existing building faces the west of the “sea” and have sunshine all day long, which can not only meet the requirements of indoor studio shooting, but also meet the requirements of different periods of erhai seascape shooting.
∇ 接待室與展示區 RECEPTION & EXHIBITION AREA ©王一翔Yixiang Wang

基於一個500平米的舊別墅中實現這三個目標,要借洱海的景,創造出獨一無二的休閑娛樂體驗,要在現有建築中創造不同的實現婚紗拍攝場景的可能性,還要給新人們特別的旅行體驗,與大理傳統民居式(鄉土風格、以土、木、石等自然材質效果為主)的民宿打卡點產生差異性。這次的設計並不僅局限於婚紗攝影這一單一的商業活動,而是要滿足‘輕鬆、浪漫、休閑’等缺一不可的平行需求,讓情侶能在旅拍中回歸本我。
Based on a 500-square-meter old villa to achieve these three goals, we take advantages of Erhai scenery, to create different possibilities for realizing wedding scenes in existing building, and to give couple special travel experience. The spatial experience is different from the Dali’s traditional homestay (local style, mainly natural materials such as earth, wood, stone, etc.). This design is not limited to the single commercial purpose of wedding photography, but to meet the indispensable parallel needs of ‘easy, romantic and casual’, so that couples can enjoy themselves in the travel.
3.平麵梳理與調整 plan and adjustments
首先對功能流線進行了調整,原方案中首層平麵較為刻板,靈活性差,進入試衣間需要先經過衛生間,流線較為怪異。地下室流線也較為怪異需要穿越辦公室才能到達攝影棚。二層三層為居住空間,但陽台被公有化,缺乏高品質的私人體驗與私密性。
Firstly, the circulation was adjusted. In the previous scheme, the first floor was relatively rigid and the flexibility was poor. It was necessary to go through the bathroom before entering the fitting room, and the related circulation was strange. The basement circulation is also weird and needs to cross the office to reach the shooting studio. The second and third floors are living spaces, but the balcony is publicized and lacks a high quality private experience and privacy for couples.
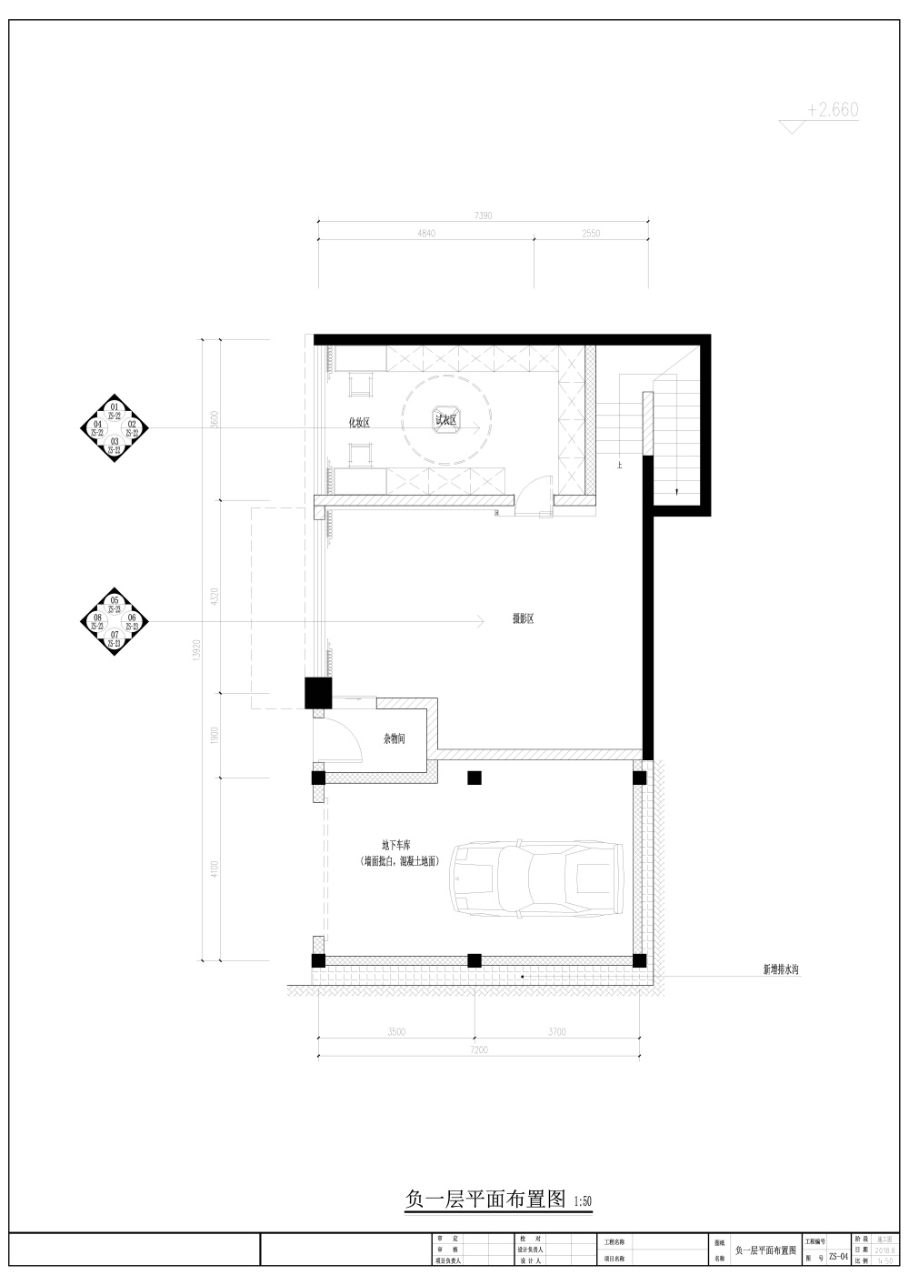
∇ 負一層平麵 B1 PLAN ©平介設計Parallect Design

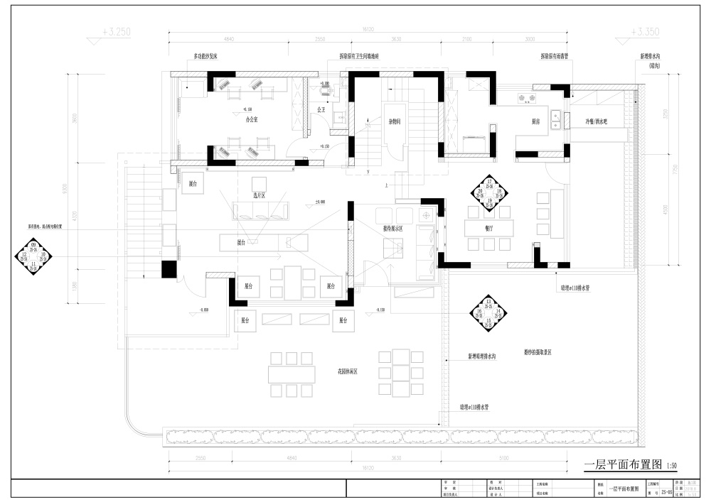
∇ 一層平麵 L1 PLAN ©平介設計Parallect Design

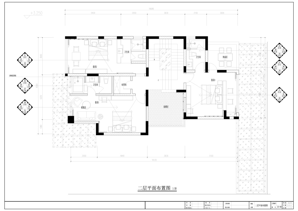
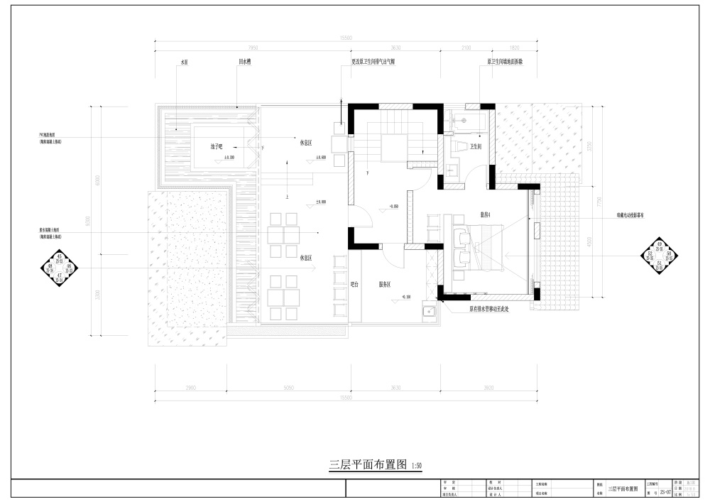
調整後,車庫上的露台變成一個集合室外拍攝、小聚會、小活動的室外空間。大廳為大麵積展示空間,同時與接待區形成聯動。辦公區域與餐廳廚房相對獨立。地下室統一作為拍攝區,將更衣室與拍攝區並聯設置,一方麵滿足多套婚紗的試拍,一方麵拍攝區與車庫儲藏間相連滿足多場景道具和拍攝工具的切換。二、三層民宿房間由於初始方案衛生間已經施工,所以在保留原有衛生間的情況下,利用公共空間部分又增加了一間海景客房。兩間海景客房與兩間山景客房都有獨立的衛生間,保證了足夠的私密性和品質。三層露台的邊緣設計了一圈淺水池,在原有抬高的部分設計了鋼化玻璃拍攝平台,打造一種“水天相接”的效果。露台的設計上沒有太過控製,方便業主後期根據不同功能進行靈活切換(下午茶、拍攝等)。
After adjustment, the terrace on the top of garage becomes an outdoor space for outdoor shooting, small gatherings, and small events. The hall is the main display space, and at the same time it is linked with the reception area. The office area is relatively independent to the restaurant and kitchen. The basement is unified as the shooting area, and the dressing room is arranged in parallel with the shooting area. On the one hand, it can meet the test shots of multiple sets of wedding dresses. On the one hand, the shooting area is connected with the garage storage room to meet the switching of multi-scenes and shooting tools. The second and third floor bedrooms have already been constructed due to the initial plan and one more room with sea view has been added. A shallow pool is designed on the edge of the three-story terrace, and a tempered glass shooting platform is designed in the original raised part to create a “water and sky connection” effect. The design of the terrace is flexible, so that the owner can flexibly change layout according to different functions (afternoon tea, shooting, etc.).
∇ 二層平麵 L2 PLAN ©平介設計Parallect Design
∇ 三層平麵 L3 PLAN ©平介設計ParallectDesign
4.室內空間的光與色彩 interior light and color
洱海是個陽光極其豐富的地方。如何利用天光與各空間(展陳、居住、休閑等)進行互動成了我們的第一選擇。不希望有鏡麵過於銳利冷酷的感覺,又希望能隱隱約約之中反射出外界的精彩,打造一種朦朧的效果。陽光板成了我們的首選,半透明,光滑,易於操作。在不同空間的天花與牆麵置入半透明的陽光板,並在陽光板後麵置入多彩的LED燈光,通過最簡單的色彩透過陽光板,與白牆形成對比與互動。從入口走道的頂麵,到貫穿整個空間進深的牆麵,陽光板發光麵直接以完成麵的形式出現,在房間裏,陽光板天花也一定程度上轉變成了空間擺件的屬性。而不同維度上的折射、反射疊加,在感官上放大了空間各方向的尺度,從而改變了使用者的空間感受。
Dali is a place with enough sunlight. How to use skylight to interact with various spaces (exhibition, residence, leisure, etc.) has become our first choice. We don’t want to use mirrored material that is too sharp and cold, and we hope that material can reflect outdoor space in a vague way, creating an embarrassing effect. Polycarbonate has become our first choice, translucent, smooth and easy to operate. The translucent Polycarbonate are placed in the ceilings and walls of different spaces, and colorful LED lights are placed behind it which interacts with the white walls. From the entrance walkway to the entire space, the light-emitting surface of Polycarbonate appears directly in the form of a finished surface. In the bedroom, the Polycarbonate ceiling is also transformed into a property of space decoration to some extent. The refraction and reflection superposition in different dimensions magnify the scale of each direction of the space perception, thus changing the user’s spatial feeling.
∇ 展示區與選片區EXHIBITION AREA ©王一翔Yixiang Wang

∇ 拍攝區SHOOTING AREA©王一翔Yixiang Wang (右圖是GIF)

公共空間的設計通過盡可能塑造出的純淨超現實場景來喚醒使用者深藏心底的幻想。公共空間由白色牆麵、淺灰色略帶反射的地麵,以及幾近朦朧的陽光板營造出純淨、極致氛圍。作為主空間僅有的幾件家具與婚紗,仿佛博物館中的幾件展品,營造一種空靈的效果;牆體內的燈光通過陽光板在牆麵投射出粼粼波光,這些隱約的光影給主空間的純淨又添加了一絲神秘,去誘發情侶去體驗其行為活動中細微的變化。樓梯間作為整個建築中唯一通高的空間,結合線性光的設計元素,我們利用長條筒燈進行再次設計,高高低低地在樓梯間形成一個新的燈光裝置節點,投下影影綽綽的效果。
The design of the public space awakens the user’s illusion by creating a pure surreal scene as much as possible. The public space is made up of white walls, light gray reflecting PVC ground, and the nearly sleek polycarbonate to create a pure, ultimate atmosphere. As the furniture and wedding dress in the main space, they seem to be artworks in the gallery to create an ethereal effect; the light in the wall projects the ripples on the wall through the polycarbonate, these faint light and shadows give the main space a kind of mysterious feeling. This feeling induces couples to experience subtle changes in their behavior. As the only double height space in the whole building, the stairwell, we redesigned it with long strips of light, forming a new lighting device, casting a shadow effect.
∇ 餐吧 DINING AREA©王一翔Yixiang Wang
整個設計希望以最簡單的方式塑造出多變的適合情侶居住的空間。因為有4個尺度相似的房間,如何滿足不同用戶的需求成了我們需要考慮的問題。浪漫是大多情侶所追求的體驗,房型的設計在打造出純粹的使用環境的同時,通過燈光的改變來增添情侶相處時的趣味性,使人心情愉悅的同時增加了伴侶間的親密感,從而催生情感的觸發。臥室空間中,留存主牆麵作為投影麵,而其餘的牆麵則被會散發神秘光線的陽光板點綴,促發情侶獨處時的神秘感,從而促進感情的極速升溫。
The whole design hopes to create a variety of spaces suitable for couples to live in the easiest way. Because there are 4 rooms with similar scales, how to meet the needs of different users has become a problem we need to consider. Romance is the experience that most couples pursue. The design of the room creates a pure use environment, and the fun of the couples through the change of the lights makes the people feel happy and at the same time increase the intimacy between the partners. The trigger of emotional stimulation. In the bedroom space, the main wall surface is left as the projection surface, and the rest of the wall is embellished with polycarbonate panels that emits light, which promotes the mystery of the couple when they are isolated, thus promoting the extreme warming of the relationship.
∇ 試衣間 FITTING ROOM©王一翔Yixiang Wang

∇ 樓梯間 STAIRCASE ©王一翔Yixiang Wang
作為項目主體的浪漫自有其約定俗成的環境氛圍,朦朧感及變幻的光影即是浪漫的環境所需要的屬性。房間內的核心回歸到更為常規的床與相關的居住功能,外界的朦朧以及空間的壓縮正是伴侶間所需的情欲催化。獨立設置的家庭影院則營造了不受打擾的電影約會體驗。浪漫的洱海,朦朧的光線,神秘的色彩,創造出一個獨屬二人的神秘環境。床,置物架與長桌在整個空間中形成互動,在燈光下仿佛一切都在低聲耳語,訴盡伴侶間的情絲。
As the main goal of the project, the romantic atmosphere has its own customary atmosphere. The sense of light and the changing light and shadow are the attributes required for a romantic environment. The core of the room returns to a more conventional bed and related living functions, and the external vague landscape is sensational feeling for couple. A self-contained projector creates an undisturbed movie dating experience. The romantic lake, the vague lights, the mysterious color, create a special environment of two people. Under the light, furniture seem to whisper the love of couples.
∇ 朝洱海臥室 BEDROOM ©王一翔Yixiang Wang
∇ 朝山臥室 BEDRROM ©王一翔Yixiang Wang
∇ 臥室燈光切換 BEDRROM ©王一翔Yixiang Wang

5.室外空間 Outdoor space
由於一層入口與城市道路有高差,需要通過一道樓梯進行連接。初始的設計方案是一個整體性很強的時光之筒,通過一個有線性燈光的隧道抵達整個展陳區。然而由於大理近年違章搭建管理委員會有著極其苛刻的規定,有頂的樓梯就算違章搭建。被迫拿走了本來很炫酷的蓋子,改成了一個簡單的陽光板加色膜的扶手樓梯。陽光下,陽光般與色膜形成絢麗的色彩,在一片白色牆麵中顯得極為奪目。
Since it is necessary to connect the main entrance to road through a staircase. The initial design was a holistic light box that reached the entire exhibition area through a tunnel with linear lighting. However, due to the local building regulations of Dali’s illegal construction management committee in recent years, the roofed stairs are illegally built. Thus we changed to a simple color filmed polycarbonate handrail stairs. In the sunny day, the stairs forms different colors from all directions, which is extremely dazzling in a white wall.
入口的庭院也進行了特別的調整,一塊塊樹立的玻璃結合色膜,在大理充足光線的映射下,每一個時刻,在不同的角度都散發出完全不同的奪目光彩,當你行走在街道上,一片絢麗的色彩一定能夠吸引你的目光,LEVITA STUDIO 的logo在玻璃之上也會躍然於你的眼簾。
The terrace has also been specially adjusted. The glasses are combined with the color film. Under the Dali’s sunlight, every moment, at different angles, it emits completely different lights when you walk on the street. A beautiful color will definitely attract people’s attention, and the logo of LEVITA STUDIO will also be revealed.
∇ 庭院 ENTRANCE GARDEN©王一翔Yixiang Wang
屋頂露台主要為拍攝所用及享用下午茶的絕妙之處。遠處的洱海在玻璃的反射下,天光湖水共一色,人仿佛懸在空中,享受人間這一灣清澈的湖水。整個台麵隻在中間區域做了鏡麵,而沿露台有完整的一道水麵去反射天光,深黑的池底與水麵形成的反射,同鏡麵形成的反射有著微妙的差異,鏡麵,水麵,洱海與天空,四個不同的景色同時起舞形成特別的休閑環境。
The roof terrace is perfect for shooting and enjoying afternoon tea. Under the reflection of the glass, the sky and the lake are all in one. People seem to hang in the air and enjoy the clear water. The glassed platform is mirrored, and around it is water surface of pool along the terrace to reflect the skylight. The reflection of the deep black pool bottom and the water surface has subtle differences with the reflection of the mirrored surface, water surface, sea and sky. Four different effects can form a special image in one photo.
∇ 屋頂露台 ROORF GARDEN©王一翔Yixiang Wang

完整項目信息
項目名稱:LEVITA飄.婚紗公館
項目類型:改造,室內
項目地點:中國雲南省大理白族自治州大理市大理公館香樹麗舍28號
設計單位:平介設計(蘇州平介建築科技有限公司)、雲南福龍設計事務所有限公司
空間設計:楊楠,張世傑,陳雪琦
深化設計:雲南福龍設計事務所有限公司
主要材料:陽光板,LED,玻璃,炫彩膜
工程造價:100萬
建成狀態:建成
設計時間:2018年
建設時間:2019年
建築麵積:500平方米
攝影:王一翔
Complete project information:
Project Name: LEVITA Wedding Photography Mansion
Project Type: Renovation, Interior
Project Location: No.28, Xiangshulishe, Dali Residence, Dali,Yunnan Province, China
Design team: Parallect Design、Yunnan Fulong Design Office Co., Ltd.
Architects: Nan.Yang, Shijie.Zhang, Xueqi.Chen
Main materials: Polycarbonate sheet, LED light, Glass, Colorful film
Engineering: Yunnan Fulong Design Office Co., Ltd.
Project cost: 50,000
Type: built
Design:2018
Construction: 2019
Area: 500 sqm
Photo: Yixiang Wang




































