LOFT中國感謝來自 好好設計 GOOD²Design 的商業項目案例分享:
潮汕的南邊作為實業發達區域,密集的人口,大型機械,與全球不遠萬裏前來采購的外賓構成了這座城市的畫像。基於此對於高品質服務業態有著剛性需求。
The south side of Shantou is an industrially dense area with a large population and developed industry. As a product export city, foreign customers often visit bulk purchases. On this basis, high quality and international SPA services are required.
ไปทางทิศใต้ของซัวเถาเป็นเขตอุตสาหกรรมที่มีประชากรหนาแน่นมีประชากรจำนวนมากและอุตสาหกรรมที่พัฒนาแล้ว โดยการส่งออกผลิตภัณฑ์จากเมืองและดึงดูดลูกค้าต่างประเทศเพื่อซื้อสินค้าจำนวนมากเราต้องการบริการสปาคุณภาพระดับสากล
【泰象】源自泰國的概念,長於潮汕並輻射全國的一個“正宗泰式massage”管理機構,本案【泰吉】便是其中之一的高階子品牌。
[Thai Elephant] is derived from the concept of Thailand. It is an “authentic” Thai massage management organization, [Taiji] belongs to its high-end brand, established in Shantou, and quickly radiated across the country.
[ช้างไทย] แนวคิดจากประเทศไทยเป็น บริษัท จัดการนวดแผนไทย “ของจริง” แบรนด์ในเครือ [ไทยลัคกี้] เป็นแบรนด์ระดับสูงที่จัดตั้งขึ้นในซัวเถาซึ่งกำลังขยายตัวอย่างรวดเร็วทั่วประเทศ
【泰象massage】管理方委托設計師林彥先生與他創立的【好好設計GOOD²Design】設計事務所進行全案設計。我們試圖顛覆區域對於“高級理療”的認知偏差,將在原有的建築物內部進行全麵改造。力圖打造一座工業大城之中的“城市綠洲”。
[Thai Elephant] management commissioned designer Lin Yan and his team [Good Design] to carry out the entire case design. We are trying to subvert the cognitive bias of “Thai physiotherapy” in the region and will be fully remodeled within the original building. Trying to establish an “urban oasis” in a large industrial city.
[ช้างไทย] ทีมผู้บริหารมอบหมายให้นักออกแบบหลินและทีมของเขา [การออกแบบที่ดี] ตลอดการออกแบบโครงการเราพยายามคว่ำอคติของ“ กายภาพบำบัดไทย” ในพื้นที่และจะออกแบบใหม่ในอาคารเดียวกันพยายามสร้าง “เมืองโอเอซิส” ในเมืองอุตสาหกรรมขนาดใหญ่
【初極狹,才通人。複行數十步,豁然開朗。】空間位於建築物頂層,為了讓來賓得到充分的過渡,我們單獨建造一條專屬的垂直動線,仿若一條時空隧道般,帶客戶穿梭至泰國秘境。外向的大門既是滿足了風俗與承載了機能,亦分外顯眼引人入勝。讓人不禁多窺兩眼,試圖一探究竟。
[The beginning is extremely narrow and can only be passed slowly. Suddenly everything is getting bigger.] This space is on the top floor of the building. In order to keep the quiet transition of the guests unaffected, we built a separate vertical moving line, like a time-space tunnel, bringing customers to the wonderland of Thailand. The exterior door not only meets customs and carrying functions, but is also particularly eye-catching and fascinating. People can’t help but look inside and try to find the answer.
[จุดเริ่มต้นแคบมากและสามารถผ่านได้ช้าเท่านั้น ทันใดนั้นทุกอย่างก็เริ่มเติบโต ] บริเวณนี้ตั้งอยู่ที่ชั้นบนสุดของอาคาร สำหรับผู้ที่ชอบความสงบเราสร้างเส้นแนวตั้งที่เป็นอิสระเช่นอุโมงค์อวกาศเพื่อนำลูกค้าไปสู่ดินแดนมหัศจรรย์ของประเทศไทย ประตูเคารพประเพณีและสะดุดตามากและผู้คนไม่สามารถมองเห็นการตกแต่งภายในได้โดยตรง แต่ลองหาคำตอบ
為了營造出靜怡的氛圍,GOOD²Design在內部造景,雙層玻璃的運用隔絕了外部的喧鬧,有效的隔音降噪。同時精油香薰的使用,令來者倍感放鬆與寧靜,用泰國原產浴鹽為來賓沐足的儀式是來自【泰吉】古法最真摯的祝福。
In order to create a calm atmosphere, [GOOD Design] is internally landscaping and uses double-glazed glass to isolate the outdoor temperature, effectively reducing noise. At the same time, the use of essential oils makes people feel relaxed and quiet. The welcoming ceremony of using Thai native bath salt as a guest is the most sincere blessing of ancient [Tai Chi].
สร้างบรรยากาศที่เงียบสงบ [การออกแบบที่ดี] สร้างภูมิทัศน์ในอาคารใช้กระจกสองชั้นเพื่อแยกอุณหภูมิภายนอกลดเสียงรบกวนได้อย่างมีประสิทธิภาพในขณะที่ใช้น้ำมันหอมระเหยเพื่อให้คุณรู้สึกผ่อนคลายและสงบสุข เท้าทำความสะอาดเกลือจากประเทศไทยเป็นพรที่จริงใจที่สุดของ [ไทยลัคกี้]
設計的過程中受到普吉島延綿的山巒啟發,弧形與重疊的山牆形成了雕塑,引導來訪者穿梭在這波晶格化的熱帶叢林之中。亦好似鬱鬱蔥蔥的森林提供了天然的視線盲區,極高的私密性並不存在人為生硬的屏障,一氣嗬成行雲流水。吸引來賓在空間中不斷深入探索。
Inspired by the rolling hills of Phuket, the curved and overlapping gables form a sculpture that guides visitors through the pixelated tropical jungle. It also acts like a lush forest that provides a natural blind spot. A high degree of privacy is not a strict barrier, but a process. Attract guests to explore freely.
ได้รับแรงบันดาลใจมาจากเนินเขาของจังหวัดภูเก็ตหน้าจั่วที่โค้งมนและทับซ้อนกันเป็นรูปปั้นที่นำผู้เข้าชมผ่านป่าเขตร้อนที่มีพิกเซล นอกจากนี้ยังทำหน้าที่เหมือนป่าไม้เขียวชอุ่มซึ่งให้จุดบอดตามธรรมชาติ ความเป็นส่วนตัวระดับสูงไม่ใช่อุปสรรคอย่างเข้มงวด แต่เป็นกระบวนการ ดึงดูดแขกให้มาสำรวจอย่างอิสระ
【好好設計】在空間中軸線處“開天窗”讓光線驅散了大平層中段的壓抑,雙層中空玻璃及智慧調光卷簾可以分析日照及天氣的變化,有效調節照度及過濾紫外線,【沐浴吉光】享受這份自然的恩賜。
“我們希望這裏不存在幽閉的空間”林彥先生如是說,他通過巧思讓“中庭的光”找到一絲刻意的罅隙,柔柔地滲透到房間內,揮灑在微粒質感的牆麵上,每個來賓都被包裹在這個安全感極強的專屬空間,享受著這縷私享的【吉光】所帶來的暖意和無與倫比的“海之音”身心愜意。
“We hope there is no claustrophobic space here.” Mr. Lin Yan said that he used a clever idea to let the “light of the atrium” find a deliberate gap, gently penetrate the room and shake on the textured wall. All guests are wrapped in this unique space, very safe and enjoy an unparalleled “sound of the sea”.
“ เราหวังว่าจะไม่มีพื้นที่มืด” หลินกล่าว เขาใช้ความคิดอันชาญฉลาดเพื่อนำทาง “แสงแห่งเอเทรียม” เพื่อจงใจเว้นช่องว่างค่อยๆเจาะเข้าไปในห้องและส่องแสงสีบนผนัง แขกแต่ละคนจะถูกห่อในพื้นที่ที่ไม่ซ้ำกัน มันปลอดภัยและสนุกมาก “เสียงแห่งทะเล” ที่ไม่มีใครเทียบ
貴賓房由來自泰國的21個小島分別命名,延續了【泰吉】充滿故事性的敘事環境,仿若穿梭在不同的島嶼之中,各具特色。
Named after 21 small islands from Thailand, the VIP room continues the storytelling environment of Taiji, just like the shuttle between different islands.
ห้องวีไอพีนั้นตั้งชื่อตาม 21 เกาะเล็ก ๆ ในประเทศไทย ห้องวีไอพียังคงสภาพแวดล้อมการเล่าเรื่องของ [ไทยลัคกี้]และเดินเล่นระหว่างเกาะต่างๆ
自然形成可供人小憩的空間。中間種植熱帶植物,遮陰的同時,形成空間的聚合性。設計了部分座椅,鼓勵來賓逗留與社交。體驗型經濟驅動下,將周邊產品精心陳列,這些泰國製造的產品極具觀賞性,亦是中泰經貿的縮影。采光井的設計提升了空間品質亦降低了能耗,【坐井觀天】換個視覺欣賞四季更替。
Of course, it creates a space for people to rest. Planting tropical plants in the middle while shading, forming a spatial polymerization. Some seats have been designed to encourage guests to stay and socialize. Driven by an experience-based economy, the products are carefully displayed. These Thai products are very ornamental and are the epitome of Sino-Thai trade. The design of the light well improves space quality and reduces energy consumption. [Sit in the sky] to appreciate the changes in the four seasons.
แน่นอนมันสร้างพื้นที่สำหรับคนที่จะพักผ่อน พืชเมืองร้อนเติบโตอยู่ตรงกลางและร่มกันแดดกลายเป็นพื้นที่ความโน้มถ่วงและที่นั่งถูกออกแบบมาเพื่อกระตุ้นให้แขกมาสังสรรค์ บนพื้นฐานของเศรษฐกิจเชิงประสาทสัมผัสผลิตภัณฑ์ได้รับการสะท้อนอย่างพิถีพิถัน ผลิตภัณฑ์ไทยเหล่านี้มีความสวยงามและเป็นข้อพิสูจน์ของการค้าจีน – ไทย การออกแบบแสงธรรมชาติที่ดีช่วยปรับปรุงคุณภาพของพื้นที่และลดการใช้พลังงาน [นั่งอยู่บนท้องฟ้า] เพื่อชื่นชมการเปลี่ยนแปลงในสี่ฤดูกาล
藝術作品【無齒】警示著人類切勿為一己私欲,大量獵殺導致非洲大象瀕危,譴責狩獵者在利益趨動下,無下限的獵牙行為,野生大象數量急速減少中,呼籲保育工作需得到正視與政策保護。
The work of art [No Teeth] warns that human beings cannot be selfish. A large number of hunting has caused the harm of African elephants. They condemn the hunter’s interests-driven, unrestricted hunting behavior, and the number of wild elephants is rapidly decreasing and needs attention. Need protection.
งานศิลปะ [ไร้ฟัน] เตือนว่ามนุษย์ไม่สามารถเห็นแก่ตัวได้ การล่าช้างแอฟริกาจำนวนมากที่ใกล้สูญพันธุ์แล้ว พวกเขากล่าวหาว่านักล่าให้ความสนใจกับพฤติกรรมการล่าสัตว์ที่ไม่ จำกัด และเรียกร้องให้มีการแก้ไขและป้องกันนโยบาย
貴賓SPA房間享受定製的水療服務,SPA的愉悅身心,為內心囤積的壓力、疲憊、惶惑找到一個出口。恍若隔世,桃源與喧囂,僅在一牆之隔。
The VIP Spa offers bespoke spa services, a delightful and unforgettable spa, and an outlet for stress, exhaustion and restlessness. Like a secret environment, Taoyuan and the city center are separated by a wall.
VIP Spa ให้บริการทรีทเมนท์สปาที่น่าพอใจความเครียดและความเหนื่อยล้า เช่นสภาพแวดล้อมที่เป็นความลับเถาหยวนและใจกลางเมืองมีเพียงกำแพงเท่านั้น
身與心經過洗禮,細細的享受著窗外小雨,餐廳是“旅途”的終站,精致的佳肴出自泰國米其林大廚之手。在此聽覺、嗅覺、視覺、味覺、觸覺、得以全麵滿足,身臨其境泰正宗。
After the massage is completed, the body and mind will enjoy the light rain outside the window. The restaurant is the end of the journey. Exquisite cuisine comes from the chef of Michelin, Thailand. Here, the senses of hearing, smell, sight, taste and touch are fully satisfied, and they are immersed in real Thailand.
หลังจากการนวดร่างกายและวิญญาณดูเหมือนจะถูกทำให้บริสุทธิ์โดยสายฝน การเดินทางสิ้นสุดลงในร้านอาหารและอาหารที่ประณีตมาจากเชฟมิชลินในประเทศไทย ที่นี่ความรู้สึกของการได้ยินกลิ่นสายตารสชาติและการสัมผัสมีความพึงพอใจอย่างเต็มที่และพวกเขาจะถูกแช่ในประเทศไทย
“象鼻神” 毗那也迦,成就一切善事,消滅災禍,守護【泰吉】
Complete all good deeds, destroy disasters, guard [Tai Chi]
ทำสิ่งที่ดีให้เสร็จสมบูรณ์ทำลายภัยพิบัติยาม [ไทยลัคกี้]
∇ 設計思路推演(GIF) Design idea deduction

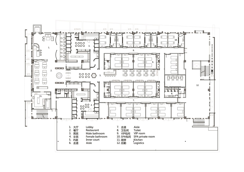
∇ 平麵圖 Floor plan

完整項目信息
項目名稱:泰吉
設計方:好好設計
聯係郵箱:651502334@qq.com
項目設計&完成年份:2018年12月(啟動設計)2019年8月(項目竣工)
主創及設計團隊:林彥&丹儀&怡敏
項目地址:中國/廣東省/汕頭市
建築麵積:1600㎡
攝影版權:燦銘&林薈攝
合作方:軟裝:好好優選/工程:文錦工程
主要材料:大理石/金屬/手工塗料/木/牆布/馬賽克/線型燈/工藝玻璃
撰文:林彥
Project name:Tai Chi
E-mail:651502334@qq.com
Design:DOUBLE GOOD DESIGN
Design year & Completion Year:December 2018 (starting design) August 2019 (project completed)
Leader designer & Team:LinYan & DanYi & YiMin
Project location:China/Guangdong/Shantou
Gross Built Area (square meters):1600㎡
Photo credits:CanMing & Lin-Vision
Partners:Casa:GOOD SELECT Construction:WENJIN CONSTRUCTION
Main material:Marble / Metal / Hand Paint / Wood / Wallcovering / Mosaic / Line Light / Craft Glass










































