LOFT中國感謝來自 inDeco領築智造 的辦公項目案例分享:
「我們不是要革新汽車,而是讓生活變得更加美好。」——Byton拜騰
「我們不是要設計空間,而是讓每個努力的人在最好的空間裏享有最美的時間。」——inDeco領築智造
作為中國新造車勢力的一個先鋒式存在,拜騰致力以智能互聯重新定義未來出行。其南京辦公室的設計交由主打智能與人性化理念的inDeco,探索如何借助科技與創意的融合創造屬於未來的辦公空間。
工業風與科技感的碰撞
拜騰南京製造基地位於南京紅楓科技園,辦公區域為4層高、總麵積9890㎡的毛坯房。inDeco充分結合拜騰設計、科技、未來的核心概念,整體采用黑白灰基調的工業風格,打造出集辦公、休閑、會客及展示的辦公綜合體。
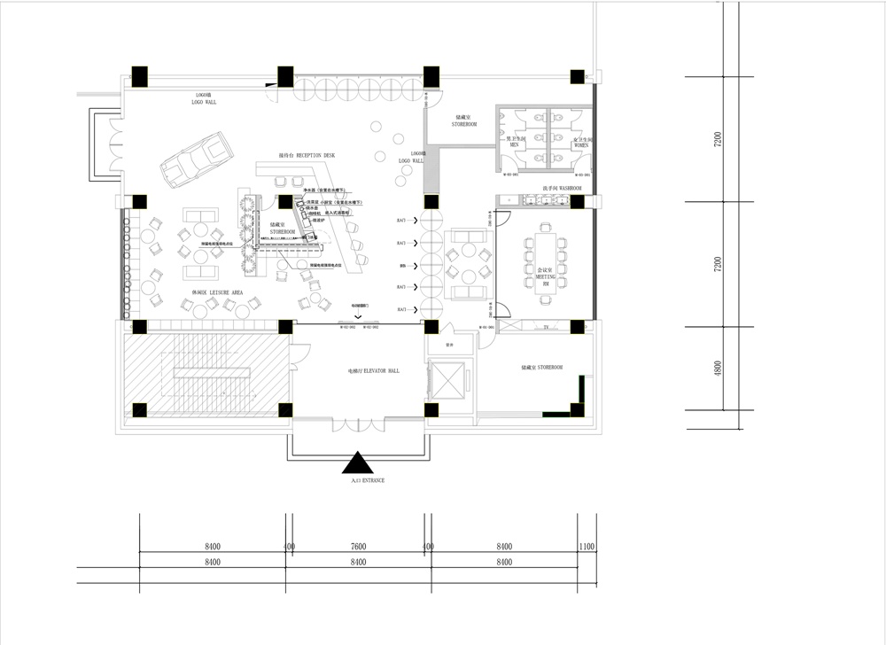
一層為對外的會客展示區,inDeco巧妙利用空間使展示區域與會客社交區域相結合。Byton品牌以及線條的VI元素被嵌入結構牆體中,頂部專設打光燈飾以提升展示效果,將車的展示與整體空間完美融合。
會議室的頂部、牆麵以及地麵均采用水墨“跡”元素,既提煉抽象化的行業個性元素,又延續黑白灰的整體色彩。折疊屏風在開合之間充當隱性隔斷,同時成為個性化的裝飾藝術。地麵以抽象化的車跡軌道進行不規則線性分割,強化企業性質且提升空間屬性。
自由意誌下的創意天地
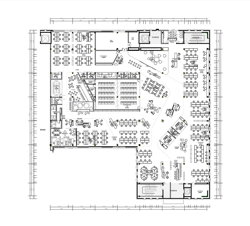
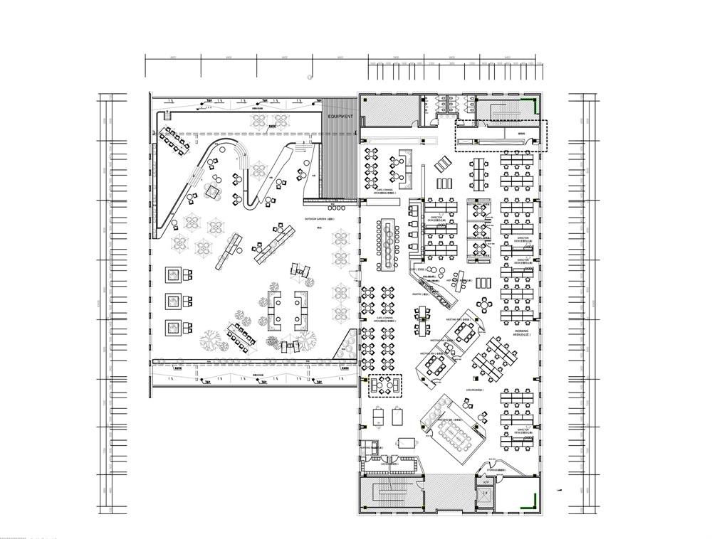
二至四層為供內部員工使用的辦公休閑區,不僅需要滿足辦公、會議等企業剛性需求,更應考慮人性化的員工關懷,以歸屬感和成就感的塑造來提升可持續的生產力。在工業風的底色中加入溫潤柔性的細節鋪陳,平衡空間調性使之更具人文考量。
inDeco為空間植入活潑的綠植裝飾以及金色燈飾,衝淡工業風本身的厚重感。小台區會議區域采用台階形式,滿足企業多功能聚眾需求。大型的長矩形台麵與靈活的開放式工位穿插並置,或協作或獨立的工作模式得以自由切換。地麵亦沿用不規則線性分割以抽象化車型軌道,貼合人車交互的品牌基因。
正如拜騰將互聯網與傳統汽車行業相融合,inDeco同樣將互聯網與傳統裝修行業相融合,以辦公模塊設計演繹智能化、人性化、設計感、健康化的概念落地,使本案不囿於傳統辦公製式而演化為一種更具空間價值的創意社區。
∇ 平麵圖
完整項目信息
項目名稱:拜騰(BYTON)南京辦公基地
設計範圍:基地辦公室
項目地點:南京紅楓科技園
項目麵積:9890㎡
設計時間:2017年8月
開放時間:2018年6月11日
設計主創:周岩
設計機構:inDeco領築智造 (www.in-deco.com)
主要材料:美標潔具,法國素美地毯、海泰家具
攝影師:趙冬林 Zhao Donglin







































