隈研吾建築都市設計事務所 (Kengo Kuma & Associates) 在土耳其埃斯基謝希爾設計的Odunpazari現代藝術博物館現已向公眾開放。這座城市不僅有著著名的大學,還到處都是活潑的年輕人。該博物館在設計上借鑒了傳統奧斯曼帝國木製建築的形式和規模,力圖將其打造成為一個新的文化場所,並融入到現有的街道景觀之中。
這座新的博物館位於被稱為 Odunpazari (土耳其語“木材市場”)的附近,這是這個城市中的一個很私密的地方,有著蜿蜒的街道,還有曆史悠久的奧斯曼帝國家庭住宅,它們的上層都是懸臂式的。在該博物館的設計中很好的運用了這種傳統的設計方式。
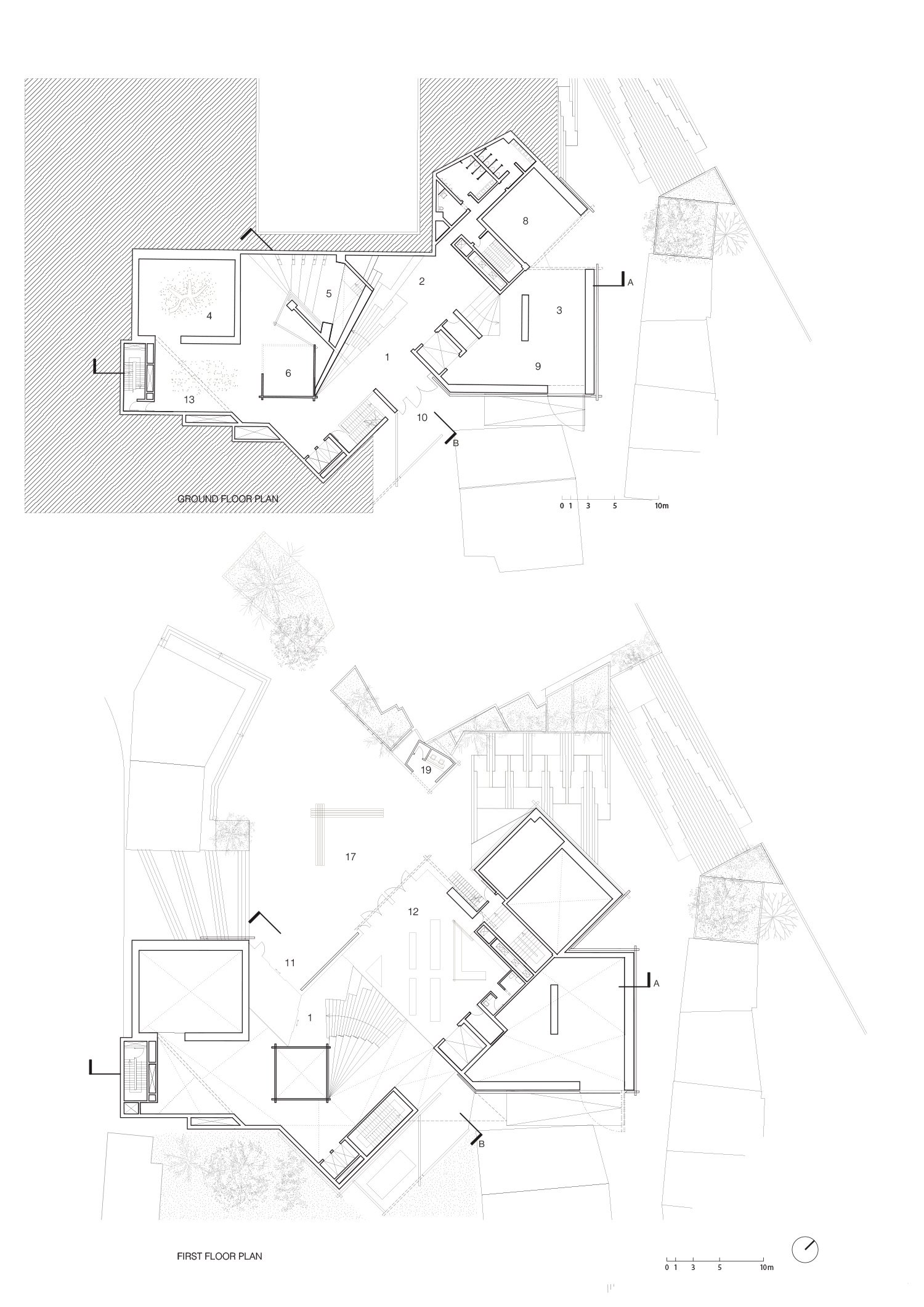
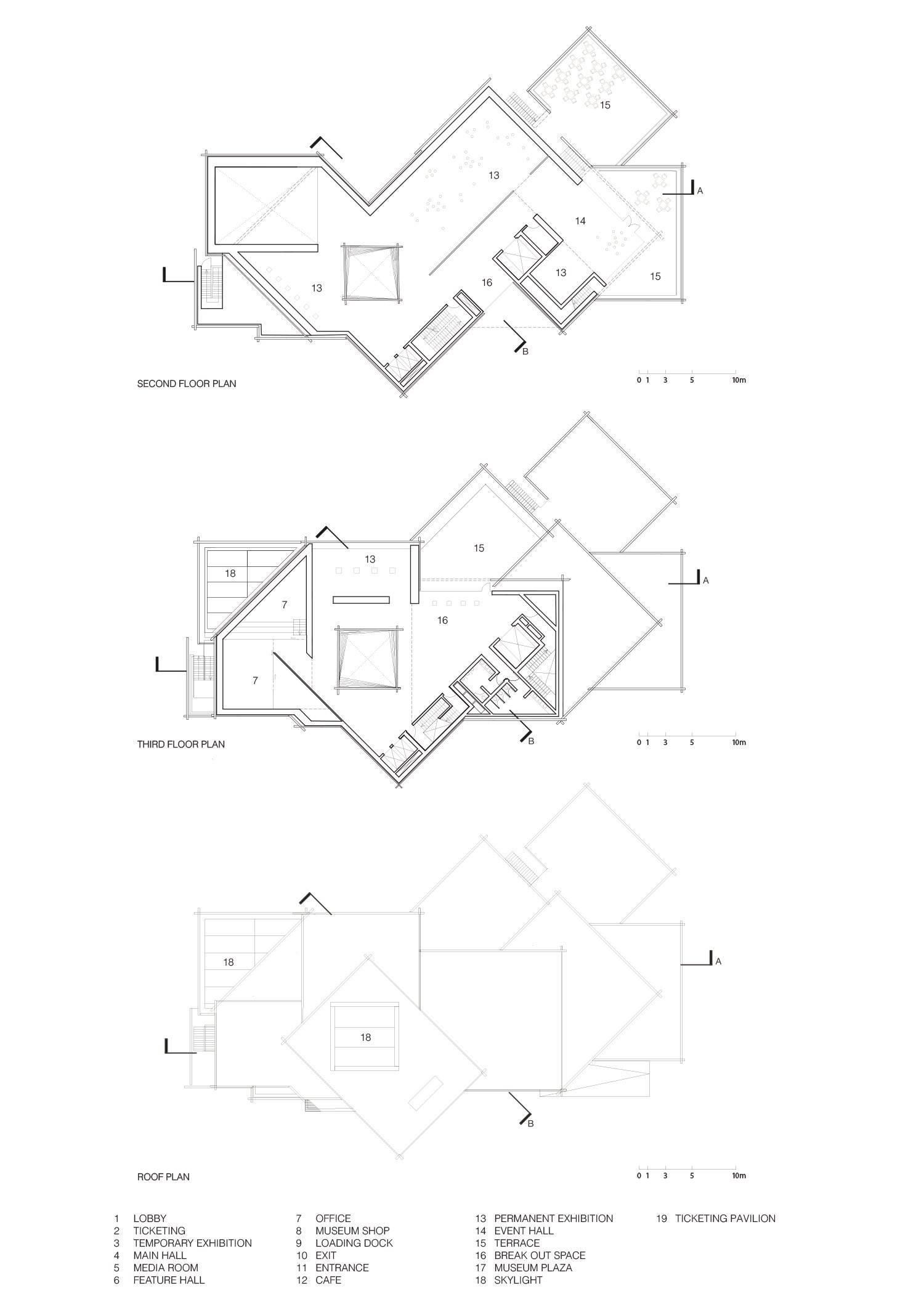
“我們采用了一種聚合的設計策略;把一些小的箱子堆疊起來打造出一個城市規模的建築。”建築師說道。
不同尺寸的堆疊箱子同時也反映了沿街道周邊住宅建築的規模大小,並且建築物以向上的形式也是在“宣布自己就是該地區的新文化地標”。
在建築物內部,各種大小不一的畫廊空間為藝術展覽提供了靈活方便的條件;底層的設計可以用於舉辦大型藝術裝置展,而上層較小的空間裏將會舉辦更為貼心的展覽。一個由木塊構成的中央中庭連接著每個樓層,並允許自然光從上麵的天窗穿過照進建築物內部。
∇ 區位圖 site plan
∇ 平麵圖 plan
∇ 剖麵圖 section
∇ 立麵圖 elevation
∇ 軸測圖 axonometric diagram
項目信息
項目名稱:OMM(odunpazari現代藝術博物館)
項目地址:土耳其,埃斯基謝希爾省,埃斯基謝希爾
建築公司:隈研吾建築都市設計事務所
設計建築師:kengo kuma and associates (KKAA)
合作夥伴:Yuki Ikeguchi
項目經理:Yasemin Sahiner
客戶:Polimeks Holdings, INC.
結構工程師:SIGMA
機械工程師:TEMA Engineering and Consulting Trade Ltd.
總承包商:Polimeks Holdings, INC.
占地麵積:1,220 平方米
總樓層麵積:3,582 平方米
建築麵積:16360.0 平方米
攝影版權:batuhan keskiner





























