LOFT中國感謝來自 平介設計 的商業項目案例分享:
設計位於雲南省西部的瑞麗市——中緬國界線接壤區域,其西北、西南、東南三麵與緬甸山水相連,村寨相望,獨特的地理區位,讓這座偏遠的城市同時擁有兩個國家的民族文化特色,成為中國通向東南亞、南亞最為活躍的內陸口岸。橫斷山脈穿截而過,濕潤的南亞熱帶季風氣候給這個地方帶來了豐沛的雨水和茂盛的森林資源,這片土地因此而遼闊,帶點大自然的神秘色彩,發人探索,也就引申出此次項目的設計理念:秘境——如置身深水洞穴,去探索山水之奧秘,使身心有如煥然一新的感受。它是每一位光顧美容會所客人的精神訴求,也是會所改善客人精神麵貌的宗旨所在。
Located in Ruili, the west of Yunnan Province——the neighboring area between China and Burma. It’s north-west, southwest and southeast is linked together with the landscape of Burma, the villages are facing each other, it’s unique geographical location makes this remote country to have both two countries’ national culture characteristics at one time, which makes it become the most active inland port between China and Southeast Asia. Hengduan Mountains across it, and moist Subtropical monsoon climate brings rich rain and lush forest resources to this place. As a result, this area becomes vast with mysterious color of nature, which stimulate people to explore it. And this is the design philosophy of this project: secret area——as you place yourself in deep caves to explore the secret of landscape, which makes you take on an altogether new aspect. It is a spiritual demand of each customer coming to beauty club and the purpose to improve the spiritual outlook of the customer.
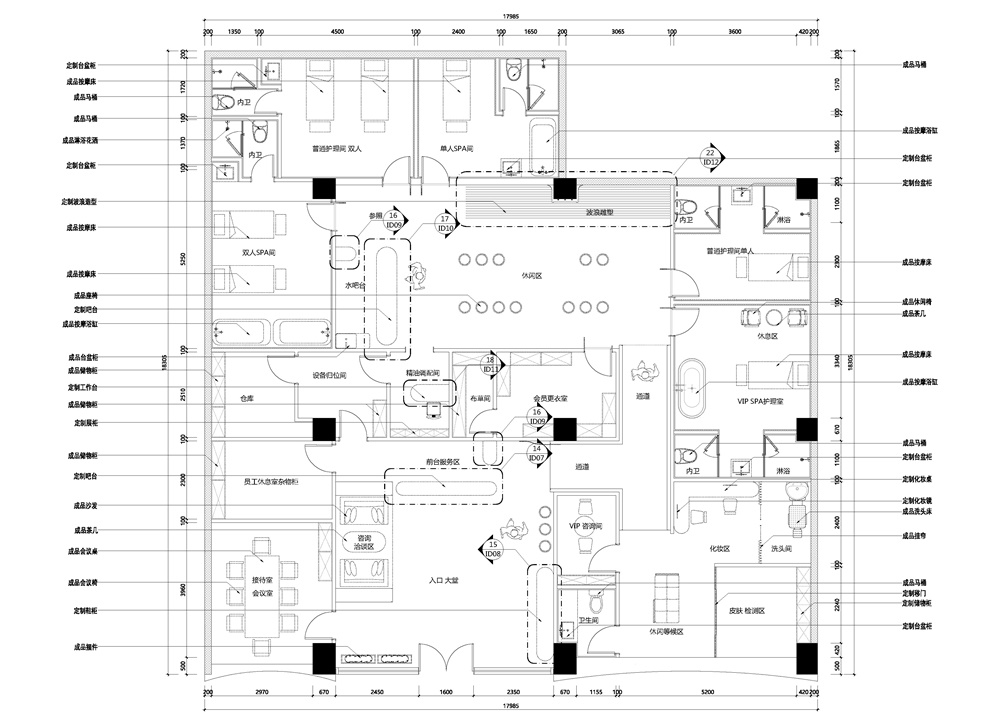
業主希望在有限空間實現多功能複合以滿足顧客的需求。因此如何在300m²的原始空間內組織高效的流線並且合理安排空間布局,又能在滿足功能空間麵積需求的前提下打造足夠的公共空間,是這個項目設計的最大挑戰。
The client hopes to meet the demand of the customers by realizing multifunctional composite with limited space. As a result, there is a big challenge of this project —— how to organize effective filament line and arrange spatial arrangement reasonably with 300m² original space and how to make enough public space under the premise of satisfying the demand of area of functional space.
設計師選取采用枝狀空間布局,僅用一個“T”字形的過道作為交通過渡空間,最大程度地縮短交通流線,減少交通空間的占用麵積,釋放空間,從而為大廳接待、等候、休閑等公共功能提供更為充裕的麵積條件,在各個功能區塊形成集中式開敞空間,整體空間組織秩序井然。
The designer choose to use dendritic spatial arrangement and only use a T-shaped aisle as transit space, which cuts down transportation streamline, reduce the area of transit space and release space. Thus it provides more abundant area of conditions for the hall reception, waiting, relaxation and man public function. Then form centralized open space, which makes the whole spatial organization orderly.
結合“秘境”的設計理念,我們利用T型的交通空間打造了一個宛如幻境的隧道,客人在通過通道中的穿行實現不同功能區塊轉換,使之成為接待、等候、休閑三大功能區的連接體。
Combined with the concept of “secret area”, we create a tunnel just like dreamland with T-shaped transport space, customers can realize transitions between different functional blocks by walking through gallery, which makes it become the connector among reception, waiting and relaxation.
客人由入口至大堂接待區,而後穿過藍色的通道開啟她們的美麗旅程——依次先穿過通道在等候區,進行膚質等等的檢測和美容問題的谘詢,而後穿越一次通道進入休閑區,護膚理療休憩功能一應俱全,客人能在這裏舒適地享受護理服務、交談、茶座等,寬敞的休閑區還未沙龍、講座的公共行為提供了可能性。三處空間私密性遞增,通道則是不同功能與空間畫麵間的轉場。
The customers enter and go to the lobby reception area, then across the blue gallery to start their beautiful journey——pass the gallery to the waiting area in order, have test of skin type and consult beauty issue, then pass a gallery to the relaxation area, and everything needed is ready including skin care, physical therapy and relaxation. There, the customers can enjoy nursing services, chatting, a cup of tea and so on. Capacious leisure area provides possibility for salon, lecture and public functions. These three spaces progressively increase privately, and the gallery is transition between different functions and spaces.
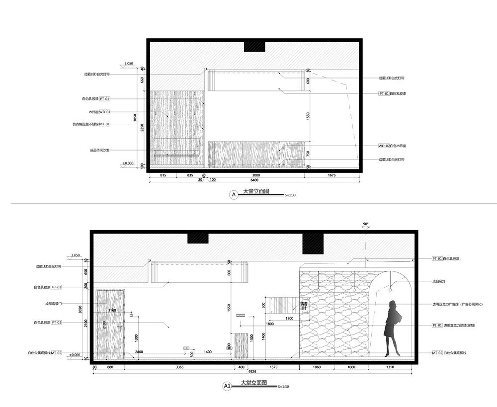
空間選材上,整體運用白色木飾麵、乳膠漆等作為空間基調,仿古銅拉絲不鏽鋼、水晶板、淺灰原木等作為點綴。“T”形通道則采用弧形拱頂,並在牆、頂、地三麵上都統一使用藍色的水晶亞克力板來打造“深水冰窟”的沉浸式體驗,使得空間充滿視覺張力。二者不論在色彩還是形式上都形成鮮明對比,從而突出強調了“秘境”通道的獨特衝擊力。
On the aspect of space selection, using white wood veneer, emulsion varnish and so on as the whole space keynote and embellishing with antique copper brushed stainless steel, crystal board, light gray log. T-shaped gallery is designed with arc vault, and use blue crystal sub-chocolate plate for the wall, roof and floor to create immersive experience of “Deep water ice”, which makes the space be filled with visual tension. Both two form sharp contrast from color and modality, thus, it high-lights the unique impact force of “secret area”
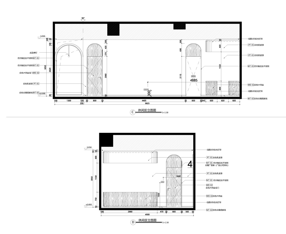
作為“秘境”的延伸,加強對山水之境的渲染,設計師在休閑區采用了大量的波浪形雕塑,它們有的從天花板上垂掛而下,有的矗立在地麵上,層層疊疊,而每一層的線形又富於柔和的起伏變化,極具層次感。它們是山的意象又是水的幻化。
As the extending of “secret area”, the designer choose a large number of waved sculpture in relaxation area to reinforce rendering of landscape. Some of them sag from ceiling, some of them stand upright on the ground, tier upon tier, and each layer of line has soft ups and downs change, which has strong sense of depth. They are the image of mountain and illusion of water.
項目旨在解決最大化功能空間使用麵積,保證服務型建築空間高品質的需求,采用流線更為簡明高效,空間層次更為清晰,功能組織更為合理的枝狀空間布局模式,創造性地利用了一個“T”字形的過道,連接三個功能分區,主要地來營造秘境空間。
This project aims to solve the problem of maximizing the using area of functional space, promising the demand for high quality of serviced-oriented architectural apace, adopt dendritic spatial arrangement pattern with more concise and efficient filament, more distinct spatial level and more reasonable function organization. Using T-shaped gallery creatively to connect three function divisions and mainly create secret space.
行至此間,恍如身處深水密穴,很好地豐富了客人的空間體驗感。它巧妙地減少了交通空間的占用麵積,從而能留出更多的空間給公共活動,以提升空間使用的舒適度,盡管在色彩與材質上過道空間與其他空間形成了鮮明對比,但通過波浪形的雕塑對這種山水氛圍的渲染,使整個空間成為一個整體。
Coming to here, you just like place yourself to deep caves, which enriches the spatial experience feelings of customers better. It reduces the occupied areas of transport space, as a result, it can leave more room for public activities in order to improve comfort level of space using. Although it makes a sharp contrast between the gallery and other space from colors and materials, it makes the whole space to be one through rendering the landscape atmosphere by waved sculptures.
∇ 設計平麵圖 plan
∇ 大堂立麵施工圖 lobby elevation
∇ 休閑區立麵施工圖 leisure area elevation
∇ 隧道分析圖 tunnel diagram
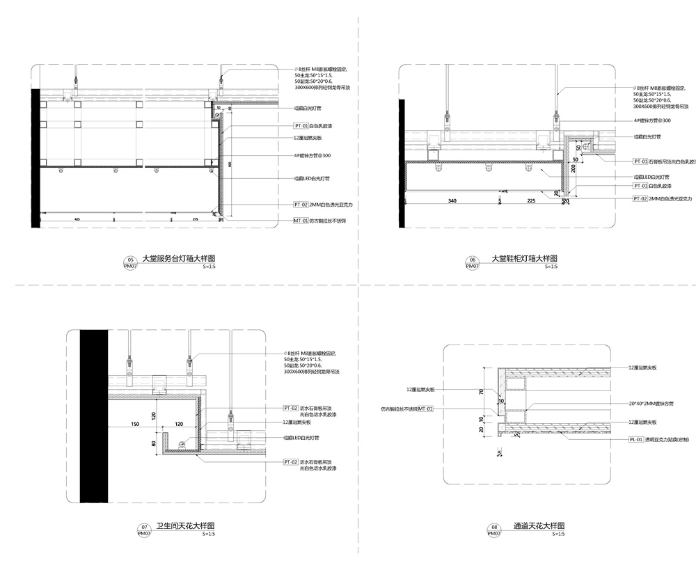
∇ 細部大樣圖 Detail
完整項目信息
項目名稱: 國界線上的美容會所(Beauty club on the national border)
建築事務所: 平介設計(Parallect Design)
事務所網站: www.parallect-design.com
聯絡郵箱: di.huang@parallect-design.com
公司所在地: 蘇州,中國(Suzhou, China)
–
項目完成年份: 2019
建築麵積: 300㎡
項目地址: 中國雲南省德宏州瑞麗市弄莫路149-8棟-101號(Nongmo Road 149, 8#101, Ruili City, Dehong State, Yunnan, China)
–
主創建築師: 黃迪(Di Huang)
主創建築師郵箱: di.huang@parallect-design.com
設計團隊: 楊楠,王乙童,張世傑,陳雪琦(Nan Yang, Yitong Wang, Shijie Zhang, Xueqi Chen)
委托方: 羽辰美容會所(Yuchen Beauty Club)
攝影師: 王一翔(Yixiang Wang)




































