該項目是在盧森堡莫塞爾地區的一個釀酒廠的延伸,是一個兩層高,71米長的混凝土和木材建築。將葡萄酒店、品酒室和活動室的新酒廠功能結合起來。
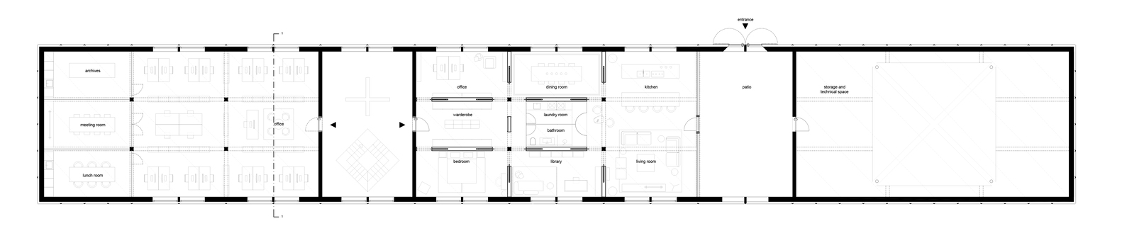
該項目的主要挑戰之一是如何將各種功能和諧地結合在一起,並將其置於因其長度和地形而受到限製的狹窄地點。該計劃在每個層麵上都以具體方式對這一挑戰作出了回應:一般的做法是通過調整侵入原則來創建一個特殊的順序。在底層,通過連續繪製45度旋轉的房間,擴大了這一戰略。
建築的移動避免了直線走廊,從而避免了長度感。它打開對角角度,減少了對狹窄的感知。在第一層,一個由18個相同的正交單元組成的網格,彼此相鄰,對計劃進行分層。底層房間45度的旋轉與鋸齒形屋頂的方向平行。
屋頂的傾斜度和高度的雙重材料選擇進入了直接的對話與鄰近的原始釀酒廠。建築師特別注意材料的選擇;將它們放在結構、形式和氣候控製方麵最有意義的地方。在選擇來自附近河流的混凝土集料時,確實十分謹慎,以盡量減少其環境足跡,並強調釀酒廠與莫塞爾地區的緊密聯係。
∇ 平麵圖
版權聲明:本站所有文章除投稿授權發布外,其他文字內容均為原創,享有著作權保護,未經許可不得以任何形式進行轉載(包括且不限於:媒體、網站、公眾號等)。所有項目照片/設計圖形版權歸原作者所有。本站部分內容源自網絡公開資源或用戶分享,如若侵犯了原作者的合法權益,可聯係我們進行處理。

































