LOFT中國感謝來自 HAD上海灣流建築設計谘詢有限公司 的改造項目案例分享:
灣流國際將項目地址選定於上海黃浦區四川中路63號一棟舊樓,要將此處打造成灣流國際旗下MARINA係列高端公寓項目,項目地理環境十分優越穿過馬路就是風靡世界的外灘萬國建築群,坐擁外灘金融繁盛景象與陸家嘴的璀璨之景,生活在濃厚曆史底蘊十裏洋場的海派發祥地,見證下一個上海盛世,同時也即將成為未來世界的生活主場。
HAD設計院在項目修舊與翻新設計中進行取舍,海派文化,它趨時求新、多元包容、又善於揚棄、勇敢創新。在HAD設計團隊的推敲和磨合下,灣流國際攜手HAD設計院耗時半年完成了這座海派東方風格的高端公寓。
無論時代的車輪前行得多快,曆史總能以其特有的方式邀請人們一次次回顧來路。
外灘:洋氣又懷舊,摩登又複古。不僅是舊上海時期的金融外貿中心,素有萬國建築博覽群之稱,隔江相對的浦東,更有上海標誌性建築東方明珠、金茂大廈、上海環球金融中心等,一座城市的發展及曆史皆濃縮於此。
說到海派風格,很多人腦子裏都沒有一個明確的概念,但如果將海派風格與上海聯係起來,相信很多人就會明白了,海派風格帶著鮮明的時代印記,海納百川,兼收並蓄,博百家之長是海派風格的最大特色,將西方住宅文化與本地居住理念融合於裝飾設計的設計理念,使海派風格打上了地域與人文內涵的烙印。
∇ 海派風格
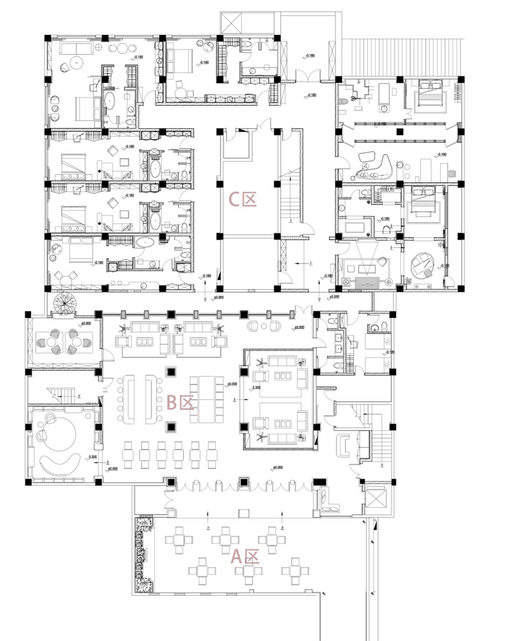
灣流國際MARINA@外灘院子首層平麵整體由三個區域組成,三個區域之間層層遞進,A區為入口門廊,B區為共享公共空間,C區為房間。
走到A區入口門廊,濃濃的海派氣息撲麵而來,像極了老上海時期的洋房門廊,拱形的門廊造型搭配落地複古門窗,充滿著儀式感,地麵的花磚圖案點綴更是豐富了整個空間,走入這個門;外麵浮華的城市氣氛會突然安靜,讓你瞬間穿越回複古的海派生活。
∇ 灣流國際MARINA@外灘院子地麵拚花
∇ 灣流國際MARINA@外灘院子入口門廊
走進門廊之後便是B區的一個共享空間,深色的護牆板搭配古銅色線條點綴,讓古樸穩重的空間多了一份摩登,地麵采用的是人字拚的地磚,美觀又耐久;你可以在這裏喝上一杯咖啡,靜靜的享受這歲月的安好,也可以叫上三五好友,暢談人生,遠離這城市的喧鬧,穿越至那段老時光。
∇ 灣流國際MARINA@外灘院子局部圖
∇ 灣流國際MARINA@外灘院子綜合休閑對比區
∇ 灣流國際MARINA@外灘院子水吧台
水吧台運用了水磨石與古銅金的材質衝撞,地麵則采用了馬賽克花磚,天花上車邊的木作線條配搭金屬線條,更是體現出了海派風格的精髓,使得空間顯得沉穩又精致。
HAD設計師把這片土地所蘊藏的尊貴氣質融入到空間的設計裏,他讓海派人文與與藝術相信相融,一切如時間般,在這裏模糊了界限。
曆史文化的韻味,悠遠流長,懷舊,複古摩登的情懷,讓人沉醉。在這樣的空間裏,仿佛坐上了一台時光機,逆轉了時光,回歸那座傳奇摩登之城。
∇ 灣流國際MARINA@外灘院子綜合休閑區
∇ 灣流國際MARINA@外灘院子局部
整個共享空間通過木飾麵、藝術漆與古銅色不鏽鋼的渾然釋放各自材質的細膩與溫潤,陽光透過大麵玻璃窗灑進,同時空間也由窗戶延伸到室外的連廊,模糊了界限,卻開闊了視野。
皮質的沙發搭配實木的茶幾,再添上些雕塑,形成了獨特的美學力量,讓客人可以在此享受不一樣的休憩時光。
∇ 灣流國際MARINA@外灘院子局部局部
紅酒雪茄吧氣質凝練而彰顯氣度,以深色的木作和高級灰為主,家私上采用複古的皮質沙發,局部點綴灰綠色的單椅。能營造出內斂平和的商談氛圍,也有著內涵深邃的文化風貌。
也可以在這裏,聆聽留聲機緩緩流淌周旋的歌聲,或是看一場老電影,或是品味一杯紅酒。
書吧也是共享空間組成的一部分,徜徉書海之內,時間仿佛定格在日光中,在九宮格黑胡桃木的書架之間,HAD設計師安放了諸多座位,手捧心愛的書卷,隨處落座,細細品讀,歲月靜好,而你可以在書籍裏與自己的靈魂來一次深切的交談。
一杯咖啡,一本好書,徘徊在書影之間,或細讀,或靜默,或冥想,仿佛變成了電影中的少年派,正開啟一場茫茫書海中的奇幻漂流……
穿過了一條室內采光走廊,便來到了C區。
走入公共走道,HAD設計師在配色上大麵運用了粉綠色的牆麵搭配暖白色肌理漆,加深了空間的遞進與門洞的高長效果。粉綠+白色,會把我們帶到海派的氛圍中,綜合掉深色地磚和厚重的木製門套的嚴肅感覺,點綴上彩繪玻璃的發光門牌燈,節奏變得輕鬆明快。
房間內通過木地板、柔和燈光、酒瓶綠和深色木飾麵護牆板,以及黃銅裝飾細節,營造出溫馨愜意的居住空間以及懷舊的海派印象,我們希望通過這次翻新,讓更多追求品味的各地租客感受上海的人文風景。
衛生間色彩和氣味使懷舊氣息更加濃重,酒瓶綠和古銅金,在老上海的電影裏隨處可見。你可以在這樣有情調的衛生間中,享受一次泡泡浴,聆聽百年海關鍾聲。
∇ 灣流國際MARINA@外灘院子衛生間局部細節
富有情調的屋頂花園,都能讓你仿佛穿越時空,回到上世紀那個絢麗霓虹閃爍,江邊光影流動,歌舞升平,如五線譜上跳躍音符的上海灘,一個優雅的紳士,推開神秘的大門。
∇ 灣流國際MARINA@外灘院子屋頂花園改造前
∇ 灣流國際MARINA@外灘院子屋頂花園改造後
∇ 灣流國際MARINA@外灘院子屋頂花園改造前後
生活中最美好的辰光是屬於家的
家的模樣,就是你對待生活的樣子
有一個懂你的家,享受輕奢,寵愛自己
有一份情懷,為宜居而來
在環境優美的國際社區
延續海派文化的精髓,精致而獨具品味
這樣的生活,無疑讓人心動
完整項目信息
項目名稱:灣流國際MARINA高端公寓上海外灘院子項目
設計方:HAD上海灣流建築設計谘詢有限公司
聯係郵箱:sunqing@harbourhome.sh.cn
項目設計 & 完成年份:2019年1月
主創及設計團隊:劉欣旎 黃思俊 孫青 羅倩芸 杜斌彥
項目地址:上海市黃浦區四川中路63號
建築麵積:3486M²
攝影版權:灣流國際
合作方:三盛亦合藝術設計顧問(北京)有限公司
客戶:灣流國際









































評論(1)
照著芬明抄,可惜用料都是便宜的, 連插座麵板都是淘寶款