秘境浮現 Reappearance
當海水逐漸褪去,隱藏在海底的沉船慢慢浮現,深處的秘境會隱藏著怎樣的風景?
穿越精致的木船艙門,追隨燈柱的指引,沿著悠長的廊道踏向未知的旅程。蜿蜒的道路高高低低,不同的拐角後麵隱藏著不同的門,每一扇門背後都是一個特別的世界。
這一個個獨特的空間,由萬社設計從蘊含多重寓意的中國傳統色彩中提取金色、朱紅、翡綠、黛紫四個顏色來打造。
四種濃烈的顏色與不同的材質互相碰撞,創造出獨一無二的色彩世界。
壹– 隱世
滿潮薈是一間經營高端中式海鮮火鍋的頂級餐廳,位於深圳最繁華區域——深圳灣湖畔的一座高端商業綜合體裏,為這座城市的精英人群提供奢華、精致、高端餐飲服務。中式、奢華、精致、私密、富貴、彩頭、熱鬧、高級,是業主方給予的關鍵詞。以餐廳主營的高級海鮮為切入點,萬社設計以隱秘海底的木船再現為設計意向,為食客們營造了一段“秘境再現”的沉浸之旅。
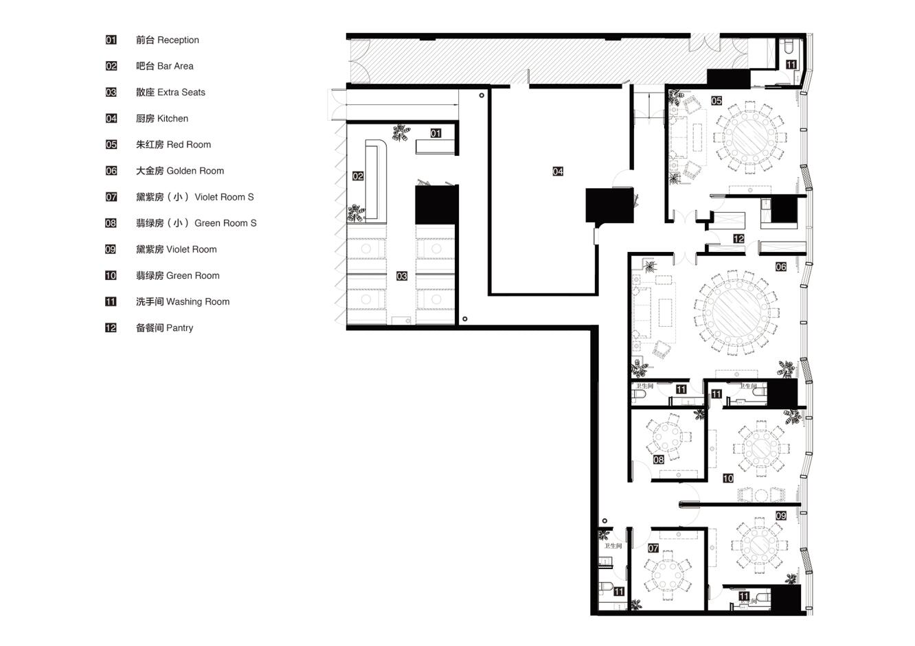
僅333平方米的室內麵積需要容納多個房間、吧台、散座區、備餐間、洗手間等,而餐飲空間以宴請為主,首先需要考慮多間獨立包房的硬性需求。因此有限的空間與多樣的功能會讓空間規劃變得相對不局促且固定。
如何在硬性的平麵布局上打破常規包房空間給人的固定印象、創造獨特的體驗感,是萬社團隊思考的重點。此項目通過對動線與材料的推敲及研究,創造出多重體驗,弱化空間的局促感。
貳– 尋覓
空間外立麵上的結構可如船艙門般旋轉打開,通過不同的角度展示著內部的氛圍。散座區的門扇側向開啟,巧妙地引入店外的空間,店內的熱鬧與繁華同時吸引著聞聲而來的人們。
幽深昏暗的長廊透露著神秘感,木質牆壁給予人們觸感上的溫暖。屋頂隱藏著另一個反射的世界,稍顯不真實的朦朧感中,盡頭,是明亮的光柱,為探索者指引著方向。
行走其中,昏黃的光使人恍惚,仿佛與現實的鋼筋水泥世界隔離。透過“船艙”往外看,各式的海鮮魚兒映入眼簾,似乎預示著即將享受的海鮮盛宴是何其的豐富與新鮮。往下一看,地麵上的花紋由千萬條小魚圖樣構成,如同被魚兒們簇擁著,慢慢遊向另一個世界。
拐彎處,聽到窸窣的談話聲。轉眼望去, 多種木紋拚花吧台,明麗豐富的屏風……在重疊的光影下,你可以輕嚐小酌,也可以肆意大醉。
轉身,私密的小空間卡座給予探索者安全感,如燭光般靜謐的光亮讓駐足者遺忘了時間的流逝。在暗調的燈光中聚會,一切都顯得那麼愜意。
繼續往下前行,沿著仔細推敲的斜度和曲折的天花,視野悄無聲息地擴大或聚焦,帶給探索者微妙的體驗感。
沉穩的木調、適當的燈光、搖曳的綠植給予了空間高級的質感及場景感,隱藏在這門後的確是繁華的鏡麵世界。
探索路上,多扇相同樣式的門漸次呈現,而每扇門上都帶有不同顏色的海棠花圖樣,尋找到你的專屬顏色,那就是最終目的地。
叁– 赴宴
到達目的地,推門而入,映入眼簾的是一派舒適熱鬧的景象。
充滿對抗張力的元素在有趣的搭配下,會有強烈的個性表現,那也是每個空間的特別之處。
鬆、台燈、屏風,花樣的圖案元素,這些統東方語境下的元素,當它們以鏡麵作為媒介相互呼應搭配,來客便獲取一種置身於大宅院落中的熟悉感。而材料上夾帶著的濃厚現代氣息,矛盾且融合。
四種顏色 4 Colors
不同的房間以不同的顏色材質區分,賦予空間個性的同時也期望能傳遞美好的寓意。
朱紅 予以吉祥如意
純正的朱紅色搭配鏡麵屏風的多重反射、紫色的絨布沙發、定製圖樣的地磚,在多種色彩和材料的碰撞融合之下,空間層次顯得豐富且充滿質感。
翡綠 意味生機盎然
新鮮與生命,是高端食材的根本,翡翠般的綠色代表健康與活力。
金黃 代表富貴正統
地之色也,天玄而地黃。中國自古有“黃生陰陽”的說法,把黃色奉為彩色之主。因此最大的包房,予以金色作為居中位的正統顏色,大氣且低調。
每個房間內的獨立洗手間色調上也與房間色相互呼應,如金色空間。
黛紫 寓意祥瑞高貴
帛黑赤色也。古有“紫氣東來”之詞,乃祥瑞之意,莊重之色,民間有“畫梁紫燕,對對銜泥,飛來又去”。
濃烈的色彩與不同的材質互相碰撞,重新闡述傳統顏色的美好寓意,營造出獨特而高級的氛圍感。
東方符號 Oriental Symbols
從東方美學中提取圖樣與顏色,創造一種從容的東方奢華感,它沒有時間的界限,也沒有流行的束縛,可以被稱之為現代,也可以說是未來或古典。
通過傳承與創造賦予的矛盾對比以及張力,是萬社希望在此項目中傳遞的。“因為空間自始自終就是一個承載故事發生的地方。”
海棠花圖樣提取於中國傳統花窗的形態,設計通過新的形態及材質將此細節呈現在空間各處,予以空間自身辨識度的同時也增加了趣味性。於是,看似傳統的元素通過新的演繹呈現出新的生命力及儀式感。
而錦鯉則是中國千年傳承文化中意味幸運、吉祥的元素。重複的圖樣以毛筆的筆觸勾勒出活靈活現的形象,此趣味靈活的圖樣遍布於為此項目定製的地磚及家具布料等不同的物料中。
五十種材料 50 Materials
提取並重新演繹的“海棠花”、“錦鯉”等中式元素,遍及空間的地麵、門窗、家具陳設之中,呼應著傳統飲食文化中團聚,喜慶的氛圍及東方的審美文化。除了此外,設計團隊在這個300多平方米的空間使用了超過50種材料及顏色。
“材質的豐富性跟項目麵積未必是最直接的關係,純粹的空間美學與多樣性的空間層次表達的情感根本上是完全不一樣的。在這個項目,我們需要更加濃烈且豐富的空間氛圍,除了對應業主方一開始的設計要求之外,我們自身想要表達的,
是項目的精致感以及在固化場景下的趣味性,不過時的美學體係以及東方語境下多樣的表現方式。”
∇ 50種材料圖示
∇ 平麵圖
項目信息
委托方 Client:滿潮薈 Man Chao Hui
地址Location:深圳市喜之郎大廈XIZHILANG Building, Shenzhen
狀態Status :完成於2021.08 Completed in Aug. 2021
設計公司Design Firm :萬社設計 Various Associates
項目負責人Project Leader:林倩怡 Q Lin、楊東子 Dongzi Yang
設計團隊Design Team:李詩琪 Shiqi Li、林誌超 Zhichao Lin、陳慧敏 Chenchen(實習生)
平麵團隊 VI Team:SenseTeam 感觀體
施工監造 Construction Supervisor:勞兆欽 Zhaoqin Lao、孔繁盛 Fansheng Kong
攝影團隊Photography Team:榫卯建築攝影 SFAP





















































