建築空間從不局限於被潮流定義,從黑暗到光明、從原始到現代、從樸素到深邃,建築作為人工自然的產物,架構起不同的物質形態,借由藝術的精神完成自由跨越。
由帝凱設計執筆的飛鵬海岸城售樓處,以“藝術力場”概念承載物與自然的合鳴,將建築、空間、自然的呼應關係置入同一網格中思考。
室內建築化的藝術手法突破想象力的束縛,傾斜、穿插、扭曲、切割,視覺的失重激發深度的情緒體驗,在建築體之內鐫刻出一座具有雕塑感的藝術空間。
旋轉樓梯直達天花,玻璃、金屬與曲線賦予它柔韌的雕塑感,擺脫重力向上延展,穿梭於不同的存在狀態,交纏共生製造出戲劇般的衝突。
藝術以坦白的材料和純淨的形式強烈地觸動著我們,空間釋放出建築雕塑形體的原始力量。
宛如藝術曆程中充滿奇異變數的情節,忽而被卷入其中尋找夢境的出口。逐漸認清迷霧中困鎖的生命本體,藝術讓我們重新認知掩埋的自我。
秉持對生命的尊重和敬畏,與精神共同回歸自由,藝術在未來的人居生態中成為不可或缺的一部分。
移步換景,身體的運動同時參與到空間的流動之中。來者的感受被藝術引領,從都市的喧囂之中懸置,逐漸融入在地空間,而不是當作疏離的旁觀者。
時虛時實的隔牆編織光線運動的節奏,遊曆或停駐,忽疏忽密的量度讓人們重新理解空間的屬性。
一味追求潮流的時代已遠去,植入空間的藝術品渾然天成,恰如其分地在光影裏流轉。
亦或映照空間轉換色彩,冷峻中透露精致,亦或附著自然天光,糅合率性的色澤,不同種類金屬回歸材料的本真,折射出凝聚在空間裏的藝術精神。
鬥轉星移,浮光掠影,用當代的手法演繹出空間、造型、質感與光環境交織的藝術體驗,釋放凝結在曖昧情緒之間的張力,它可以張揚銳性,也可以愜意平和,冷淡與溫暖並存。
倘若我們將空間視為場,簡約的藝術手法便將其中純粹的能量提煉,其他的省略,穿過含蓄的屏障滲透進日常無法醒覺的感受。
借由架空二層辦公體塊,洽談區水平向展開,空間流穿透視野的邊緣,緩緩走過。
沙盤區交叉使用的直線與曲線雕琢空間界麵的層次,木材與石材引導豐富的敘事,令人心馳神往。
橫亙的建築線條界定空間網格的勢能,似動而靜的棱角架構力量的邊界,錯位的體塊突破桎梏將原始的空間解構,為底層的水平運動帶來隱秘的自由。
空間敘事放大藝術之能量,簡單的幾何形體碰撞出極具雕塑感的氣場。
貫通空間與身體的界限,藝術為不變的空間帶來因人而異的感受,承托生活應有的想象。
都市幻化如鱗次櫛比的鋼鐵森林,物質與精神的困鬥令人們重新思考生活的本性,或鬆弛,或肅穆,藝術的抽離喚醒遺忘已久的心靈感悟。
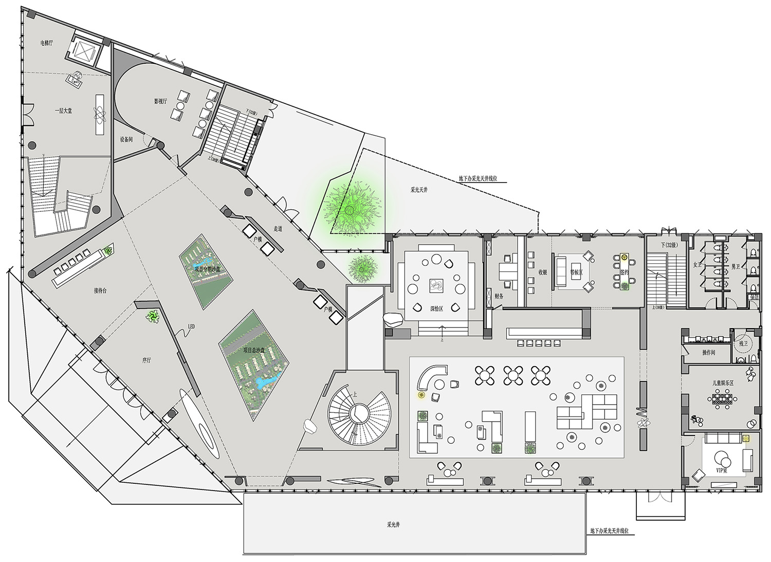
∇ 平麵圖
項目信息
項目名稱:飛鵬海岸城
項目地址:廣東省茂名市電白區海濱三路飛鵬海岸城
設計麵積:1500平方米
設計時間:2021年1月
完工時間:2021年7月
項目業主:茂名飛鵬投資有限公司
甲方指導:楊曉聰
硬裝設計:深圳市帝凱室內設計有限公司
硬裝團隊:徐樹仁、李進念、莊祥高、羅瑞、張文磊
軟裝設計:深圳市帝凱室內設計有限公司
軟裝團隊:李靖雲、彭燁、餘洋陽
項目攝影:彥銘











































