LOFT中國感謝來自 杭州路得裝飾工程設計有限公司 的商業項目案例分享:
本案位於四川省眉州市,眉山是唐宋八大家中“一門三父子”的蘇洵、蘇軾、蘇轍的故鄉,三蘇中的蘇東坡(蘇軾)更是人盡皆知、膾炙人口,弘揚東坡文化、共享古法養生是東坡足道核心的理念,而本案的設計,也是圍繞著東坡文化而展開的。
The project is located in Meishan, China, which is the hometown of Three Sus. Three Sus refers to Su Xun, Su Shi and Suzhe, who are very famous literators in Song dynasty. Among them, Sus Shi, who is also known as Su Dongpo, is well known and popular in particular. Carrying forward Su Dongpo’s culture and sharing ancient Chinese regimen are the core philosophy of this foot spa, and the interior space is also built based on Dongpo culture.
步入大堂,前台的背景就是在藝術圈出名的《蘇東坡赤壁吟嘯圖》,畫中的蘇東坡正是那個與朋友們月夜泛舟遊赤壁的蘇東坡,他的冠帶、美髯都有被清風吹拂過的感覺,在搖曳動態中顯出一種瀟灑自在,正印證著蘇東坡在《赤壁賦》中所崇仰的:惟江上之清風,與山間之明月,……,取之無禁,用之不竭,是造物者之無盡藏也。
In the lobby, the background of front desk is the famous painting called “Shu Dongpo Reciting in Red Cliff”. In the painting, Su Dongpo is travelling in Red Cliff by boat with his friends on a moonlit night. His hat belt and beard have been blown by the breeze, showing a sense of chic and self-satisfaction. The painting conveyed that what Su Dongpo admires are breeze off the river and the moon in between mountains, which are endless treasure of nature.
左邊是用鐵鏽板製成的中式窗花格圖案,花格上又錯落地放置了一些石頭,這無疑是用現代的新表現形式去詮釋傳統的元素,本案整體正是采用這種新中式風格來表現東坡文化,古中有新,亦古亦新,產生出特殊的設計感。
On the left, there are traditional Chinese lattice window patterns made of rust plate. Some stones are placed on the lattice at random, which is a modern expression of traditional elements. The whole project adopts this new Chinese style to expresses Dongpo culture, in which the new and old are combined in a balanced way. Thus, it turns out to be a special and unique design.
移形換影,樓梯休息平台上掛滿了極具東坡文化意蘊的牌匾,比如其中的“是父是子”是清乾隆年間眉州知州蔡宗建所書,意思是說“這樣的父親這樣的兒子!”,表達了對三蘇特別是蘇東坡由衷的讚歎;“文峰鼎峙”、“浩然正氣”……不同字體不同風格的牌匾都既傳達了東坡文化,也營造了本案豐厚的文化底蘊。
When it comes to staircase rest area, plenty of plaques with cultural significance of Dongpo have fully covered the space. The plaques have different calligraphy types but all convey Dongpo culture, adding a rich cultural heritage to the space.
內斂冷靜的材質色彩與通透靈動的燈光設計也都是圍繞這一點展開,靜謐的茶道空間、博古架上的書卷、大江東去等蘇東坡著作書法背景牆、三個象征三蘇父子的缸……這些元素交相輝映,更添異彩;而燈光設計中既有古典燈籠造型的安謐,也有荷塘月色的清雅,更有足道服務空間內柔和偏暗的光影撫慰熨帖著來客的身心。而全案中,根雕、樹木、屏風乃至石獅子造像,質樸中有著精致,訴說著設計者的巧思,仿佛從古典流淌而來的木石前緣。
Both the low-key material and color, as well as the transparent and flexible lighting design are based on Dongpo culture, such as the quiet tea room, scrolls, calligraphy on Su Dongpo’s poems, and three jars which stand for Three Sus. All these elements enhance each other’s beauty and enrich the overall cultural atmosphere. While the lighting design has both the quietness of classical Chinese lantern and the elegance of moonlight in lotus pond, the soft and shaded light and shadow in the foot spa room can soothe the body and mind of the visitors. Other details like root carvings, trees, screens and even stone lion statues are exquisite in simplicity, showing the designer’s ingenuity in design.
“可使食無肉,不可居無竹。無肉令人瘦,無竹令人俗。”竹子是蘇東坡一生的酷愛,也是木石前緣的靈魂,設計者把竹子元素也引入設計之中,在現代化理念的燈光效應下營造出“林斷山明竹隱牆”這樣既具古典美感又有自然氣息的體驗,脫俗出塵之感油然而生。
Su Dongpo once said: “Without meat is thin, without bamboo is vulgar.” Su loves bamboo a lot in his life. So, the designer brought bamboo elements into the space. Under the lighting effect of modern concept, the designer built a scene that bamboos are hidden behind the wall, creating a classical aesthetic and natural atmosphere.
蘇東坡說得深刻透徹“安心是藥更無方”,設計者選擇的新中式不是外在植入而是從文化中內生,這樣才真正使得設計的結果對抗俗世的浮躁,贏得內心的安泰。
Su Dongpo had a profound opinion that ” A peaceful mind is the only best way of recovery”. In this project, the new Chinese style chosen by the designer is not implanted ponderously but revealed from culture. Only in this way can the design really withstand fickleness of the world and win the inner peace.
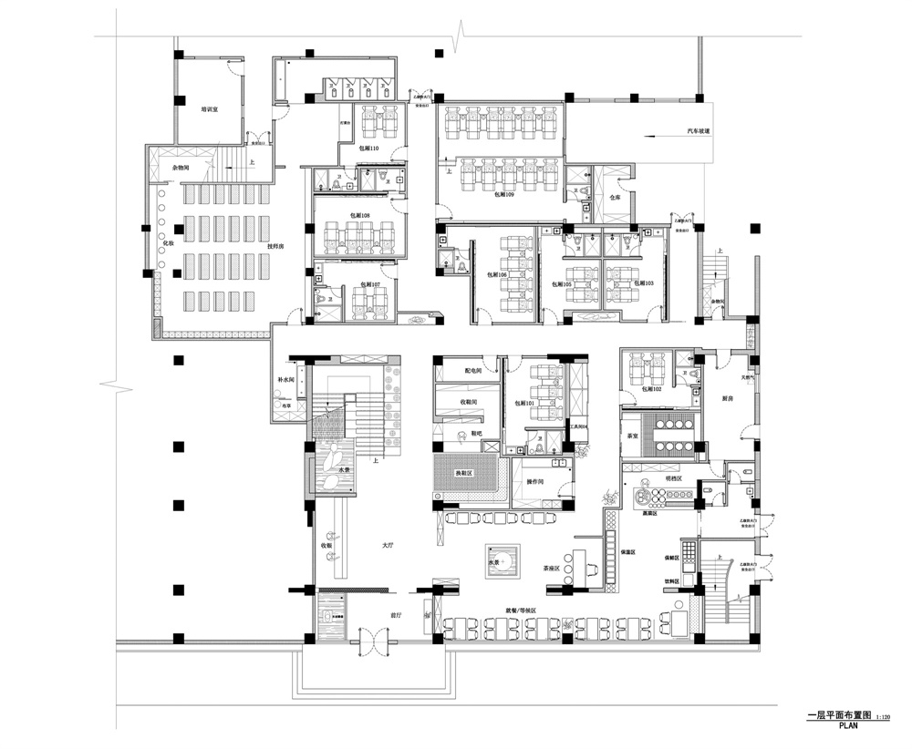
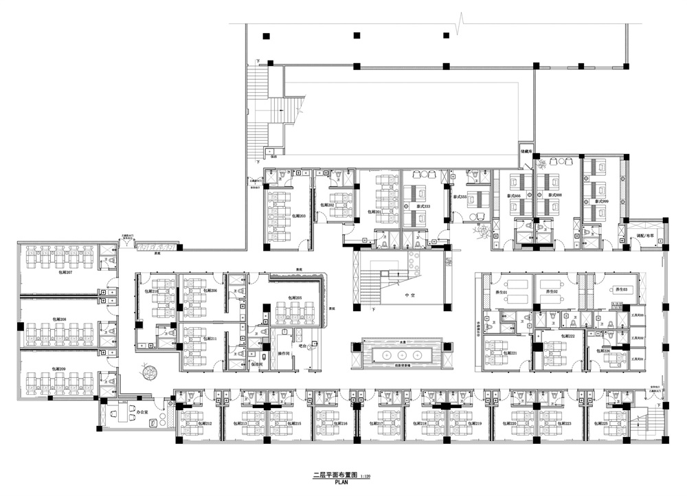
∇ 平麵布置圖
完整項目信息
項目名稱:東坡足道明星店
設計公司:杭州路得裝飾工程設計公司
設計師:劉斌
網站:www.ludezs.com
郵箱:lude99@163.com
完工時間:2019.7
建築麵積:2480㎡
項目地址:四川省眉山市明星北路103號
攝影師:三像攝 陸彬www.3images.cn
品牌:海邦家具、蝶影花藝、瓷磚:簡一、竹木纖維板/臻尚、潔具/TOTO
































