MAD公布了北京舊城改造項目“胡同泡泡218號”。MAD對位於北京前門東區的一座清末四合院進行的修複、改造——在恢複四合院原有三進格局的同時,創造性地加入了三個不同形態、猶如天外來物的“泡泡”。藝術輕觸社區,新與舊、傳統與未來在老城裏創造了新的對話空間。
MAD Architects, led by Ma Yansong, has completed the restoration and reconstruction of a 305 sqm traditional courtyard house that dates back to the Qing Dynasty. “Hutong Bubble 218” is a continuation of MAD’s exploration into urban renovations as a means of revitalizing the Chinese capital’s old neighborhoods that have been confronted with degradation and demolition as a result of rapid development. MAD’s renovation demonstrates how small-scale, artistic interventions can provide new spaces and programs for these adverse areas, creating a dialogue between the old and the new.
2006年,MAD在威尼斯建築雙年展上提出關於未來北京的暢想—“北京2050”。其中的“胡同泡泡”提案,提出舊城改造不一定需要推倒重建,而是通過加入猶如超越時空的“泡泡”,像磁鐵一樣更新社區生活條件、激活鄰裏關係。“這是一種“微觀烏托邦”式的理想,我希望這些“泡泡”像新生的細胞一樣具有生命力,賦予老建築一種活力,並通過改變局部而達到整體社區的複蘇。” 馬岩鬆說。2009年,MAD首個“胡同泡泡”在北兵馬司胡同32號成為現實;十年後2019 年,“胡同泡泡218號”建成。
In 2006, at the Venice Architecture Biennale, MAD proposed ideas for the future ambitions of Beijing, whose urban landscape, as a result social and economic developments, had started to alter, eroding the city’s delicate urban tissue. “Beijing 2050” imagined different scenarios for the city, including the ‘Future of Hutongs’. With the ideology that progress does not necessarily require large-scale change and construction, MAD conceived a network of metallic bubbles to be cultivated in Beijing’s historic neighborhoods. Inserted into the city’s existing urban fabric, they were envisioned to attract new people, activities and resources back to these aging and neglected communities.
“This is a micro-utopian ideal. I hope that these bubbles will serve as vital newborn cells, giving the traditional hutong new life, and revitalizing the community.” – Ma Yansong
In 2009, MAD’s first hutong bubble was realized in Beibingmasi hutong. Now, ten years later, “Hutong Bubble 218” has emerged.
西打磨廠街218號院的修複、改造,起源於2014年由天街集團、天安時間當代藝術中心以及北京市建築設計研究院共同主辦的舊城更新研究計劃“城南計劃——前門東區2014”。MAD在此研究項目中對舊城更新規劃提出了不動、更密、針灸、精神四個原則。後來218號院成為了這個研究的試驗點。
“Hutong Bubble 218” is the result of MAD’s participation in the Old City Renewal Research Program which launched in 2014. Co-sponsored by Tianjie Group, the Beijing Center for the Arts and Beijing Architectural Design and Research Institute, the initiative invited domestic and international architects to renovate several sites in Beijing’s historic city center. For this research project, MAD focused on four principles: historic preservation, urban regeneration, re-energizing the community spirit and small-scale intervention.
院子位於前門東區西打磨廠街西段路南,占地469平方米,坐南朝北,為晚清建築。一百多年來,建築從最初史載的外國醫院,變成了改造前20多戶居民聚居的大雜院。院子經曆了不同曆史時期的多重加建、改建,院落的原本格局已十分模糊。至近代,由於院子的居住條件的逐漸敗落,原來的住戶也大多搬走,院子逐漸失去了曆史院落原有的生氣。
Located in the Qianmen East area, close to important cultural landmarks like the Forbidden City and Tian’anmen Square, “Hutong Bubble 218” embeds itself into the neighborhood just off Xidamochang alley. The building was erected in the latter part of the Qing Dynasty. Covering an area of 469 sqm, it originally served as the city’s first international hospital for over 100 years, before being converted into a residence inhabiting more than 20 families. Overtime, the courtyard underwent restructuring on multiple occasions. Residents also created their own make-shift additions, eventually leading to structural degradation. With the gradual decline in living standards, the building lost its charm, deteriorating and becoming vacant, as most of the households moved out.
【針灸】
MAD在院子裏加入了三個由不鏽鋼打磨製作而成的泡泡。其中一個是一處獨立的會客室/共享工作空間;另一個除了會客及共享空間的功能外,還可讓人們通過“泡泡”內的回旋樓梯自由穿梭於一二層之間。
泡泡猶如來自未知時空的小精靈,在舊城環境中閃現“靈氣”——泡泡光滑的表麵折射著院子裏古老的建築、樹木以及天空,賦予了老建築新的生命,形成了麵向未來的全新的空間;同時與周圍的舊城環境相得益彰,以新穎的藝術筆觸讓社區的曆史與未來開啟對話。MAD同時對院子作了維護與修複。
MAD’s design introduces several sculptural art objects – ‘bubbles’ – onto the site.
One connects the first and second floors with a staircase. Puncturing through the roof landscape, it emerges onto the terrace and functions as an independent meeting room/shared workspace, and flows over the edge into the front courtyard. Another bubble appears as if it has landed on the rooftop of the building. While they may seem foreign in their historic context, a mysterious aura emanates from these futuristic and surrealistic forms. Their smooth mirrored surfaces reflect the ancient buildings, trees and sky within the vicinity, blending into the environment. Instead of interrupting the existing urban fabric, the old and new complement one another.
【不動】
沿街立麵:老北京四合院的古樸氣質必須透過灰牆灰瓦來展現,因此MAD保留了沿街立麵原有的色調。入口立麵的窗調整為單扇的透明玻璃,由此增大了采光麵,讓建築在古樸中透出一點現代的氣息。
MAD’s scheme not only realizes a new construction, but also conserves and restores the authentic architectural aesthetic of the courtyard building to their original glory. The aesthetic temperament of the old Beijing courtyard is retained through the use of gray bricks, which have come to define hutong building constructions. The glazing along the street front has been replaced with single transparent glass, maximizing the amount of natural light that floods the interior. From here, no one suspects the existence of the bubbles beyond.
第二進院:內院部分拆除了院內後來的加建亂建,恢複了原有格局空間。
第三進院:庭院裏有清朝時歐式院落特有的裝飾性木雕房簷,MAD對可以保留的木雕去除表麵汙痕,重新恢複光澤,不能保留的按同樣的尺寸花紋重新製作,最後恢複了這一立麵特色。門窗部分則恢複了原來的木格扇,保留了原來的圖案與開啟方式,采用木和窗的結合,形成開敞立麵。實牆麵部分同樣采用水刷石立麵,整體恢複了原有立麵的古樸風格。
The inner courtyard was restored following the original layout of the space. The wood filigree panels that lined the inner courtyard have been stripped of their stains and returned to their original luster, with replacement sections reproduced with the same size and motif. The pattern and arrangement of the wooden door and window frames has also been retained, forming an elevation that is open.
老舍曾說:“老北京的美在於建築之間有‘空’。”北京舊城改造,如何保持讓這份“空”可以繼續自由發展,同時以藝術的方式從功能及精神層麵活化社區,將是MAD舊城改造繼續研究及試驗的方向。
As Chinese writer Lao She once said: “The beauty of old Beijing lies in the gaps and voids between the buildings.”“Hutong Bubble 218” demonstrates how art and architecture can come together to renew a city. Through the insertion of small-scale interventions, people are attracted to return to traditional life, metabolizing the old district and creating a conversation between tradition and the future, nature and humanity, expressed in a freehand artistic way.
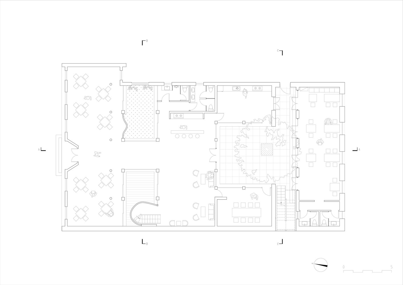
∇ 一層平麵圖
∇ 屋頂平麵圖
∇ 剖麵圖
主要項目信息
項目名稱:北京胡同泡泡218號
項目位置:中國北京
項目類型:建築改造/胡同改造
項目麵積: 305.1㎡
完成年份: 2019
建築公司: MAD建築事務所
主持建築師:馬岩鬆、黨群、早野洋介
設計團隊:何威、李元皓、尚荔、傅昌瑞、王濤、Dmitry Seregen、Cesar D. Rey
甲級設計院:北京市建築設計研究院EA4
建造商:北京大龍建設集團有限公司第一古建工程處
使用方:“打磨場”城市更新項目
業主:天街集團
攝影師: 田方方



























