場地的條件是建築設計中最重要的變量之一。但是,即使麵對是一塊很值得探索的場地,建築師也很少去了解其局限性和背後的限製,並在此基礎上設計穩妥的建築方案,然後買下這塊場地、推進建築項目。對於承受著很大的時間和費用壓力的小型住房和商品房項目而言,尤其如此。
綜合考慮服裝設計、銷售的工作和撫養兩個孩子的日常生活,這對夫婦選擇自建房屋,將此前相距很遠的生活和工作區域聯係起來,實現他們理想中的“接近工作的生活”。我們看中的場地位於京畿道九裏市山上的一個村落,土地形狀為三角形,麵積僅為95平方米左右,但是由於與空地相鄰,視覺效果上並不狹窄。已經轉移給經紀人的區域內的最大建築麵積,看起來似乎可以滿足家庭居住和夫妻辦公室的需求,甚至可能還有用於出租的空間。
我忙於簽訂土地合同,然後找到建築師。但是,與預期不同的是,北方太陽光線高度的限製和大麵積的公告(超過1米)嚴重限製了高層地板的固定和土地使用;考慮到所需的單獨地下入口、兩個停車位以及與相鄰房屋的心理距離,實際可用的土地很少。因此,該項目的重要目標,是在放棄出租打算後仍然很緊張的住宅空間中,尋找可利用的最大麵積和最佳條件。
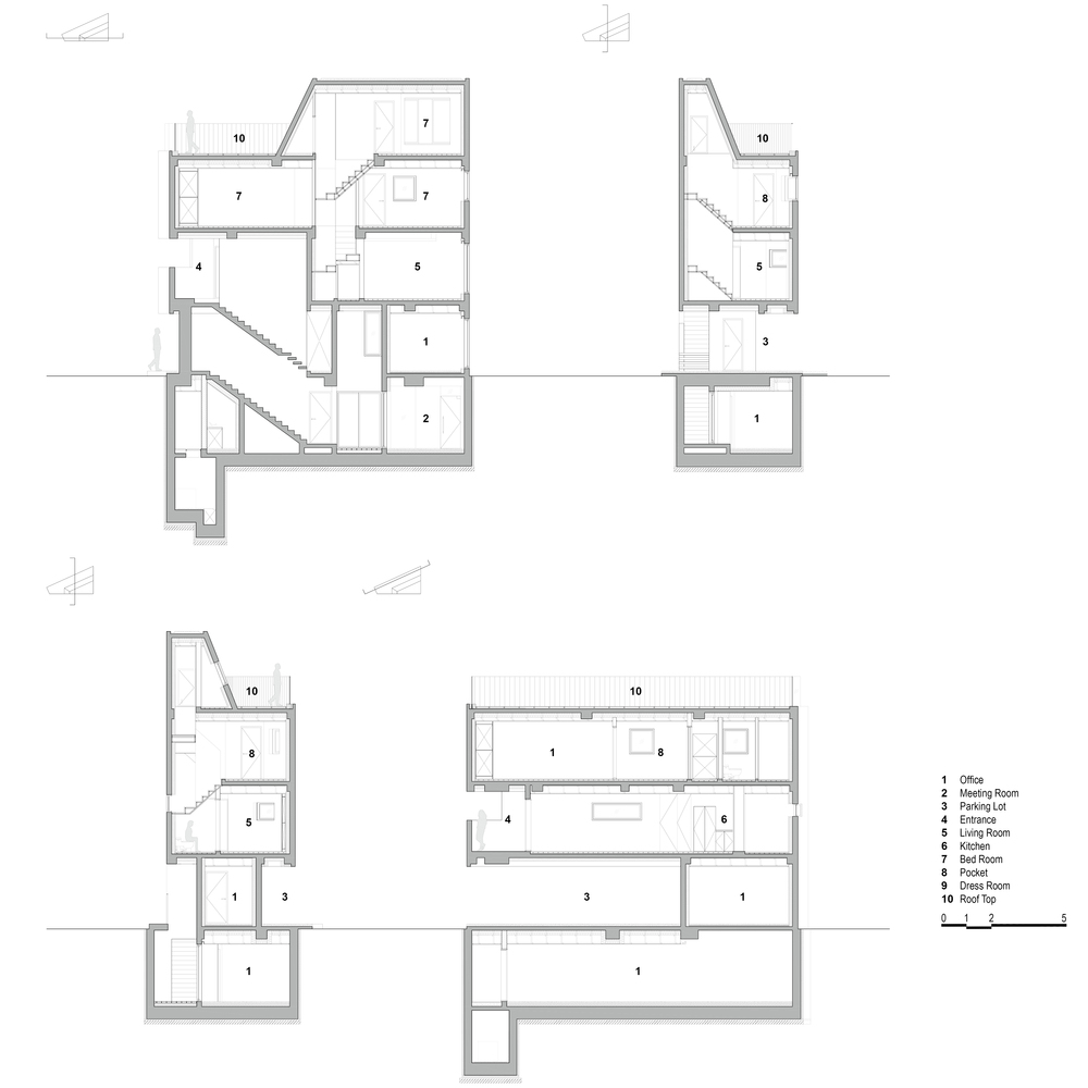
對該家庭的居住空間(第二,第三和第四層)的設計,試圖找到一種適合三角形土地的形態,盡管該建築內包含了各種各樣的房屋形態。 Oroot 使用以北側太陽光線高度為標準的限製線為設計圖案,使建築的上半部分符合法定邊界,並將該限製線的張力延伸到建築物的每個部分。從四層的露台,橫跨兩層樓通往前門,再到下方的樓梯間,這一限製被轉換成形式的亮點。為了保持清晰的線條概念,並滿足建築師對純淨紋理的期望,設計方案中所有圍繞該線的部分隻包括裸露的混凝土和窗戶。
在靠近場地距離較長的一側時,一個小的架空結構連接停車場,而傾斜的間隙和懸臂台階則將視線自然地引向二層。二樓有一個客廳,裸露的混凝土牆延伸到其內部;三樓有一個供全家人使用的更衣室,兩個臥室,一個額外的房間;四樓有一個帶屋頂的浴室。考慮到與之相鄰的寬闊道路和其他建築物,建築師盡可能將某些重要的窗戶放大以滿足采光和通風需求,而對剩餘的窗戶則進行了相應的縮小。建築的混凝土外牆保障了安全性和隱私性。
對這對夫婦的工作室、展廳和包括會議室和倉庫在內的位於地下和一樓的購物區的設計,旨在優化地下空間的麵積和環境,並確保覆蓋區域不會割裂場地間的聯係。一樓的空間一分為二,在背對背的停車場架空區域和前方的道路之間形成一個緩衝空間。通過設置小衛生間、鍋爐房、工作室和辦公室的組成部分等功能室,位於三角形狹窄部分的空間也發揮了作用。此外,設計師還在主樓梯的下坡處設置開口,由此可以通向單獨的地下室,在地麵留下另一個縫隙;在此過程中,主樓梯間的擋牆延伸到下部,仿佛它來自天花板,這確保了開口部分的安全性,並且無需設置鐵欄杆。如果你走下樓梯,就會看到前麵有一個小的凹陷區域,如果你從右側的凹坑區域進入地下,將通往一間工作室和一間會議室,這提供了光線和通風空間。
土地的不同情況就像形態各異的新生兒一樣,建築項目中不存在完美的、沒有束縛的場地。 Slit House 在建造過程中,建築師從容地對待土地的情況,根據土地的情況和有關法律調整設計方案,這說明建築的非常規形式往往是根據場地最基本的自然特征而自然生發的。
主要項目信息
項目名稱:Slit House
項目位置:韓國九裏
項目類型:住宅空間/私人住宅
項目麵積:213.06平方米
完成年份:2019
設計公司:Architects H2L
攝影:Woochul Jung
文本:archdaily




































