LOFT中國感謝來自 多棵設計 的律師事務所辦公室項目案例分享:
至合律師事務所是上海一家新成立的律所,由數十位極富經驗和專業能力的律師精英合夥人創辦。當他們找到我們為其設計新的辦公空間時,我們明顯地感受到至合合夥人之間共有的一種團隊氣質,那就是:“愉快、合作、公平”。愉快是人與人之間的溝通氛圍,合作是他們工作的方法,公平是他們決策和分配的標準。
Zhihe Partners is a Shanghai-based law firm, newly founded by a group of experienced professional lawyer partners. When they found and invited us to design their new office, we had a mighty impression that there is a common team spirit among their partners, that is: “Joyful, Cooperation, and Justice”. “Joyful” is the communication atmosphere among people; “Cooperation” is the way how they work; “Justice” is the standard how they making decisions.
∇ 入口 Entrance ©肖灑
∇ 前台接待 Reception ©肖灑
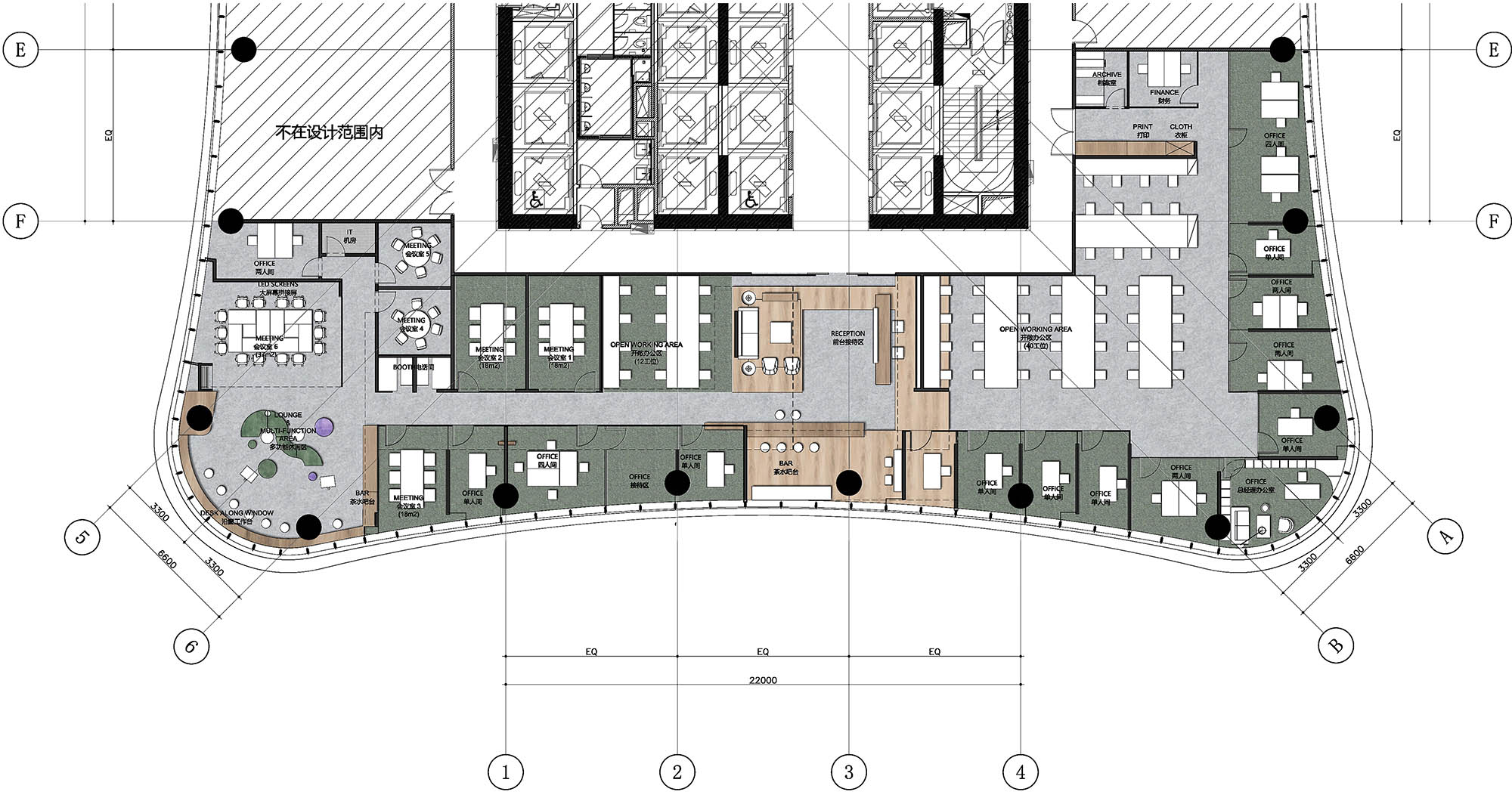
律師事務所特有的合夥人性質,使得每一位合作人律師都同屬於事務所這一個大的平台之下,但又獨立執業接案,自負盈虧。這樣的行業特點,在功能上對於小型獨立辦公室的需求較多。另外,該辦公室所在的辦公樓擁有上海最好的景觀視野,所以自然租金價格不菲。作為新成立的公司,客戶的預算也是有限的。他們在設計之初就一再要求我們盡量縮小獨立辦公室的麵積,以及增加獨立辦公室的數量,以便每一位合夥人能分攤到盡量低價的,容易接受的單間租金價格。
The partnership structure of this law firm, which let every lawyer belongs to the company’s big platform, but each partner is also independent financially to take case, work with their client etc. This characteristic of company’s structure requires a large number of small independent offices. Furthermore, inside the office, you can see the best skyline view of Shanghai, which means, the rent is expensive. As a newly-founded company, the client’s budget is tight. At the beginning of design, they repeatedly required us to reduce the area of each independent office, and increase the number of the offices, in order to lower each partner’s rent pressure to a level that each of them can afford.
如何處理好麵積小且數量多的獨立辦公室與整個辦公環境的關係?太小的獨立辦公室是否會讓人在裏麵感覺壓抑?太多的獨立辦公室是否會形成與開敞辦公區的明顯分隔對立,進而造成管理層與員工的分隔對立?主管們都希望自己的辦公室靠外窗,享受景觀和自然光線,如何平衡主管層與員工之間對於景觀視野與自然光線的享用權利?帶著這些挑戰,我們進行了設計。
How to deal with the relationship between those many small offices and the entire office environment? Will people feel depressed in a very tiny independent office? Will these many small offices obviously separate themselves with the open area, and further separate the manager level and the staff? All the managers want their office to locate along the exterior window for a better view and natural light, how to balance the right to enjoy view and natural light between managers and staff? By taking these challenges, we started our design work.
∇ 前台接待 Reception ©肖灑
∇ 等候休閑區 Waiting Lounge ©肖灑
∇ 等候休閑區 Waiting Lounge ©肖灑
首先,我們按照經濟實用,節約空間的原則,確定了單個獨立辦公室的房間最小尺寸。其次,我們將這些辦公室組合,但是分散來布置,使其與開敞區有一定程度的咬合和融合。這樣做,避免了較大的實體體量對於整個空間的壓迫,也避免了管理層與員工之間的“分立”,能更有效地促進團隊的凝聚力。所有的辦公室中,平行於外窗的牆麵都是通透的玻璃,自然光線可以更大地進入到建築的內部。為了進一步消解這種封閉感和對自然光線的阻擋,我們甚至在辦公室垂直於外窗方向的隔牆端部,也設置了寬度600mm的透明玻璃。
Firstly, based on the principle of using the space economically, we calculated the minimum size for each partner’s independent office. Then, we grouped these offices, but in a scattered way, making them inter-locked with the open area. By doing this, we avoid to create the spatial tension which a bigger volume may bring, also avoiding the “separation” between the manager level and ordinary staff, however to link them together instead. In every office, the partitions parallel to the exterior window are designed to be transparent glasses. Natural light can comes into the building, and reach to a deeper area. In order to alleviate the strong sense of enclosure and avoid the blocking of natural light, we even designed a 600mm wide transparent glass panel at the end of partitions which perpendicular with the exterior window.
一些公共的區域被穿插在辦公室之間。入口處設置了一個擁有超長吧台的共享休憩空間,讓人一進入就能感受到歡迎和友好的氛圍。在景觀視野最好的東南角,也設置了一個共享的活動空間,可用於非正式會議、講座、茶歇等,以及遠望窗外的城市天際線。這幾個共享的休閑空間,平衡了主管和員工在景觀視野,自然光線上的使用權利,在緩解大家工作疲勞和壓力的同時,也是人和人交流的場所。
Several public spaces are inserted between the offices. We created a communal waiting lounge at the entrance of the big space, which let people feel the welcoming and friendly atmosphere once they enter the space. At the south-east corner, where has the best view, a communal activity area is located. It can be used for formal and informal meetings, lectures, drinking coffee, and enjoying the city’s best skyline view. These public areas balanced the right to enjoying view and natural light between managers and staff. They are also place where people can meet and communicate with each other.
∇ 開敞辦公區 Open Working Area ©肖灑
∇ 走道與電話間 Corridor and Phone Booth ©肖灑
空間采用一係列橫向展開的板片來劃分。這些板片由木板、瓷片、地毯等組成,它們的組合、排列,再現了至合的名稱中的首字母“Z”和“H”。它們在限定空間的同時,保持了空間的開放性和流動性品質。橫向展開的板片,也可以使人在行進過程中,一直觀賞到窗外壯觀的城市天際線景觀且視線不被打斷,猶如置身於高空中的飛行頭等艙。它突出了現代高層景觀辦公室這一場所特點。
The space is divided and formed by a series of slabs which expanding horizontally. These slabs are made of wood, ceramic tiles, carpet etc. The combination and location of them represent the first letter “Z” and “H” of the company name: “Zhi He”. These slabs confine the spaces, but not losing the quality of openness and linking. Horizontally-expanded slabs, also make sure people can enjoy the spectacular exterior view while walking, just like being inside of a first-class airplane above the sky. It emphasizes the place character as a modern high-rise view office.
∇ 共享活動區 Communal Area ©肖灑
“愉快、合作、公平”,這三個詞是至合團隊給我們的最初印象。我們設計了一個現代、輕鬆、開放、透明的辦公空間去承載這樣的企業文化,平衡了獨立辦公室太小且多帶來的封閉與壓抑。在這裏,所有的空間都是透明性的,流動的,是公平,透明和開放的體現。
“Joyful, Cooperation, and Justice”, these three words are the first impression which the Zhihe team gave to us. We designed a modern, relax, open, and transparent office space to accommodate this company spirit, balanced the weakness of the many tiny independent offices. All the space here is transparent and flowing, that is the representation of justice, transparent and open.
∇ 共享活動區 Communal Area ©肖灑
∇ 共享活動區 Communal Area ©肖灑
∇ 共享活動區 Communal Area ©肖灑
∇ 家具細節 Furniture Detail ©肖灑
∇ 會議室 Meeting Room ©肖灑
∇ 標誌背景牆 Logo Wall ©肖灑
∇ 會議室 Meeting Room ©肖灑
∇ 會議室名稱 Meeting Room Name ©肖灑
∇ 草圖 sketch
∇ 平麵圖 plan
完整項目信息
項目名稱:至合律師事務所辦公室
客 戶:至合律師事務所
室內設計:多棵設計 (www.studio-dotcof.com)
設計團隊:陳曦、藍蘭、李蓉、李目、王衛風
VI設計:田裏設計研究室
項目地址:中國上海市虹口區東大名路501號白玉蘭廣場
項目類型:室內設計-辦公類
項目麵積:645 m2
完成時間:2019.09
攝 影 師:肖灑
所使用的材料及品牌:
1.Mohawk方塊地毯
2.品逸陶瓷
3.Okamura辦公家具
4.沃望德辦公家具
Project Name: Zhihe Partners Lawyers Office
Client: Zhihe Partners
Interior Designer: Studio DOTCOF (www.studio-dotcof.com)
Design Team: Xi Chen, Lan Lan, Rong Li, Mu Li, Weifeng Wang
VI Design: Tianli Design and Research Lab
Address: Sinar Mas Center, No.501 East Damin Rd, Hongkou District, Shanghai, China
Category: Interior Design – Office
GFA: 645 m2
Completion Time: 2019.09
Photographer: Sa Xiao
Materials & Brands used:
1.Mohawk Modular Carpet
2.Pinyi Ceramics
3.Okamura Office Furniture
4.Work Wanders Furniture



























