位於荷蘭阿姆斯特丹的La Cervecería是由Modijefsky工作室改造設計後的新酒館。Modijefsky工作室的一位設計師簡述:酒館將傳統的南歐色調與現代風格融合在一起,為“當地人提供度假休閑的感覺,又讓南部的國際遊客有賓至如歸的感覺”。
You wouldn’t know it when stepping into La Cervecería in Amsterdam, a new Studio Modijefsky. The bar teams a traditionally Southern European palette with modern patterns to create a space for ‘locals to feel on holiday and for Southern internationals to feel at home’, says a Studio Modijefsky spokesperson.
室內設計-參考了典型的啤酒館,提供cañas和pinchos的休閑空間,依靠多樣化的座位布置來創造活力感。客人可以在酒吧裏坐下,在高腳桌旁聚會,或者在一個更私密的用餐地點獨自坐下。同樣具有活力感的是裝飾品的色彩:暖色調的橡木和青銅欄杆與鏡麵牆壁和圖形地磚並置。
The interior – which references typical cervecerías, casual spaces that serve cañas and pinchos – relies on variegated seating arrangements to create a sense of dynamism. Guests can take a seat at the bar, gather around a high table or settle into a more intimate dining spot. Equally dynamic is the material palette: warm-toned oak wood and bronze railings are juxtaposed with mirrored walls and graphic floor tiles.
為了給室內空間帶來“新穎和有趣的感覺”,Modijefsky工作室將cheeky的插圖張貼在室內的桌麵與櫃牆麵上。根據工作室的說法,所有的設計都是為了“把你帶到cervecerias的世界”。
To bring a ‘fresh and funny touch to the table’, Studio Modijefsky added a graphic layer on top of the scheme through cheeky illustrations. According to the studio, everything is designed to ‘bring you to the world of cervecerías’’.
∇ 酒館標誌圖
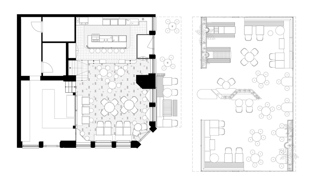
∇ 平麵圖
主要項目信息
項目名稱:La Cervecería酒館
項目位置:荷蘭阿姆斯特丹
項目類型:餐飲空間/酒館設計
完成時間:2019
設計公司:Studio Modijefsky




























