阿那亞海灘邊,YIN Hotel酒店旁,一間極具現代工業風的TÜRBOBRAU特博酒餐吧便隱匿於此。小隱隱於野,大隱隱於市,外麵是阿那亞海灘旅遊勝地的喧囂,裏麵是酒餐吧靜謐的角落與啤酒的清香。
A modern industrial TÜRBOBRAU restaurant & bar is tucked away at the YIN Hotel on Anaya Beach. Small hidden in the wild, hidden in the market, outside is the noise of Anaya beach resort, inside is the quiet wine bar and the smell of beer.
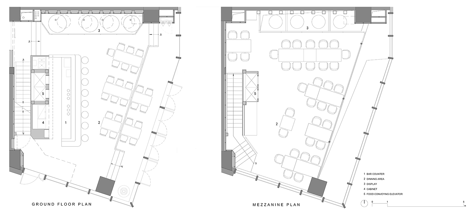
在最初現場勘察時,我們發現,本項目雖然位於建築角落的位置,卻整體麵朝大海方向,有著極佳的視野。因此在設計中,麵朝大海一側,我們全部采用通高的玻璃幕牆,並將室內空間重新細分,通過局部地麵抬高,局部增加二層,設置不同高度及屬性的座位等手段,讓空間更具層次的同時,保證店內每一位顧客都可以隨時享受到波瀾壯闊的海景。
During the initial site analysis, we found that although the project is located in the corner of the building, it has an excellent view towards the sea. Therefore, we use double-height glass curtain walls on the side facing the sea, and re-subdivide the interior space. By raising the ground locally, adding two floors locally, and setting seats with different heights and attributes, we make the space more hierarchical, and ensure that every customer in the store can enjoy the magnificent sea view at any time.
吧台作為室內核心區域,在首層倚牆而設,我們考慮其材質與燈光應為定義空間的主色調。吧台後方展櫃,采用鍍膜長虹玻璃背藏燈帶的做法,橙色的氛圍燈,輕奢嚴肅又能透出一絲曖昧。灰色大理石拋光台麵,純手工打磨鋁板桌麵、台麵收邊,柚木地板牆麵、地麵、餐桌等細節,亦是營造出有年代感的酒餐吧空間,仿佛曆久彌新。
In the core area of the space, the bar is set near the wall on the first floor. We consider its material and lighting as the main color to define the space. Behind the bar display cabinet, the use of coated Changhong glass, at the back hidden light belt. Orange atmosphere, light luxury serious and can give a trace of ambiguity. Gray marble polished table, hand polished aluminum table. table edge, teak floor wall, ground, dining table and other details, create a sense of time, as if the wine bar space.
TÜRBOBRAU特博品牌啤酒多為自釀造啤酒,我們考慮,其釀造罐可作為空間重要的展示及組成元素。經與品牌方協商,最終選擇將其置於就餐區旁,四組釀造罐倚整麵牆而靠,兩層通高,平時承擔自釀啤酒功能,方便快捷。從視覺體驗上,鋁製罐體的鏡麵反射,更是強化了室內現代工業的空間質感。
TURBOBRAU is a brand of self-brewing beer, and we considered the brewing tank as an important display and component of the space. After consultation with the brand owner, we finally choose to set it next to the dining area. Four groups of brewing tank are leaning against the whole wall, with two layers of double height. It is convenient and fast to bear the function of self-brewing beer. From the perspective of visual experience, the mirror reflection of the aluminum tank strengthens the space texture of modern indoor industry.
∇ TÜRBOBRAU酒餐吧剖透視圖
∇ TÜRBOBRAU酒餐吧平麵圖
項目信息
項目名稱:TÜRBOBRAU特博酒餐吧室內設計
設計公司:北京複合建築設計谘詢有限公司
完成年份:2021
建築麵積:305㎡
項目位置:河北省秦皇島市昌黎縣阿那亞·黃金海岸社區
攝影師:吳學文,張鵬
設計團隊:複合建築 X 百年建築,主持建築師:羅丁、張鵬 ,董文淵,建築師:賀茂華,魏寧,駐場建築師:張雪瑩
客戶:北京天地大美酒店管理有限公司
合作方:建設方:百年建築裝飾工程(北京)有限公司
材料:鋁板,柚木地板,大理石,長虹玻璃,海吉布
品牌:TÜRBOBRAU




















