Foodhallen美食廣場最早在2014年阿姆斯特丹成立開業 ,經常是在荷蘭首都人們的美食餐飲和酒吧休閑的空間首選之地。但它不是唯一一個你能找到受歡迎的食品市場、酒吧和活動場所的城市,在鹿特丹和現在的海牙都設立了這美食廣場。海牙的美食廣場是由Studio Modijefsky設計的占地1,256平方米的場地,通過其深思熟慮的、以社會服務為中心的設計,延續了第一個美食廣場的吸引力。
Founded in Amsterdam in 2014, food-and-drink destination Foodhallen regularly tops recommendation lists for the Dutch capital. But it’s not the only city you can find the popular food market, bar and event space in, with a post in Rotterdam and now The Hague. The latter, a 1,256-sq-m venue devised by Studio Modijefsky, carries on the appeal of the first locations by way of its thoughtful, social-focused design.
每個Foodhallen美食廣場都首先要為(饑餓的)公眾服務的場所。 因此,在構思該項目的同時,Studio Modijefsky的女性領導的團隊開始研究城市景觀中的典型實例:廣場。考慮到歐洲古老的城鎮和城市空間的社會功能,設計師是希望將海牙的Foodhallen美食廣場改造成一個繁華的城市縮影。
Each Foodhallen is meant to serve first and foremostly as a welcoming place for the (hungry) public. So, while conceptualizing the project, the female-led team at Studio Modijefsky took to studying archetypal examples within urban landscapes: piazzas. Crediting the social function of the age-old town and city spaces in Europe, the designers set their target on building Foodhallen The Hague as a bustling microcosm of its own.
該廣場橫跨三個相鄰的建築,以前是一個由圓柱,橫梁和樓梯構成的混亂的空間結構,形成了一個黑暗和低矮的室內空間。但是現在,這個空間已經通過圖形化的細節,明亮的材料裝飾風格和七個典型的城市廣場元素而發生了變化:地標、醒目的人行道、噴泉、商人攤位、遊樂場、樓梯和雕像小品。作為概念性的建築組件,這些元素是設計的組成部分,因為它們是用來鼓勵遊客之間的交互而設計時不可或缺的。
Spread across three adjoining buildings, the site was formerly a chaotic grid of columns, beams and staircases, which made for a dark and low interior. But the space now has been transformed by graphic details, a bright material palette and seven defining elements typically found in urban squares: landmarks, striking pavement, fountains, merchant stalls, playgrounds, stairs and statues. Used as conceptual architectural components, these elements are integral to the design as they’re built to encourage interaction between visitors.
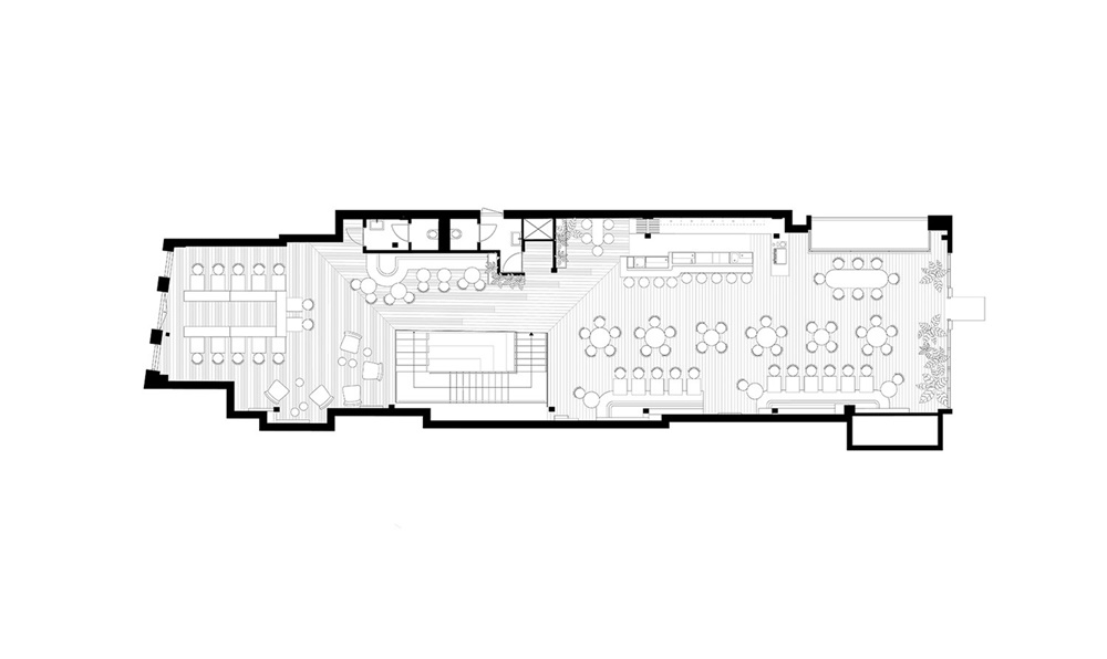
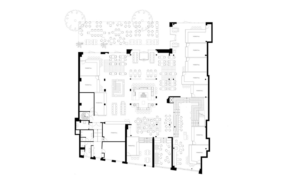
∇ 平麵圖
主要項目信息
項目名稱:Foodhallen美食廣場
項目位置:荷蘭海牙
項目麵積:1,256平方米
項目類型:餐飲空間/改造設計
完成時間:2019
設計公司:Studio Modijefsky
攝影:MAARTEN WILLEMSTEIN



































